Найти в Дзене
Берег Песочной

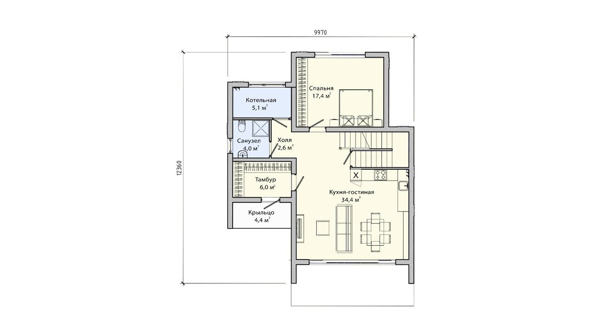
Проект ПБ-176 — это индивидуальный жилой дом в современном стиле, выполненный из панелей БЭНПАН Премиум

Описание проекта: современный дом ПБ-176 🏠 Проект ПБ-176 — это индивидуальный жилой дом в современном стиле, выполненный из панелей БЭНПАН Премиум. Этот коттедж идеально подойдет для семьи из 6-7 человек, объединяя комфорт и стиль! ✨ 🔹 Первый этаж: Тамбур 🚪 Совмещенная кухня и гостиная 🍽🛋 — с лестницей, ведущей на второй этаж Кладовая 🗄 под лестницей Общий санузел 🚻 Котельная 🔥 Гостевая спальня 🛏 🔹 Второй этаж: Холл 🛋 Санузел 🚿 3 спальни, одна с собственным санузлом 🛏🚽 Этот дом — отличное решение для уютной и функциональной жизни! 🌟 🔗 Подробнее о проекте → https://beregpesochnoy.ru/construction/lot-no10b/?utm_source=dzen
🤔 Заинтересовались этим проектом? Хотите узнать больше о планировке или стоимости? Звоните или пишите! 📞 +7 (495) 241-50-64 А вы мечтаете о доме с просторными спальнями или современной кухней? Какой дизайн вам ближе — классика или модерн? Делитесь в комментариях! 💬 #строительство #доммечты #частныйдом #современныйдом #индивидуальныйпроект #коттедж

Описание проекта: современный дом ПБ-176 🏠

Проект ПБ-176 — это индивидуальный жилой дом в современном стиле, выполненный из панелей БЭНПАН Премиум. Этот коттедж идеально подойдет для семьи из 6-7 человек, объединяя комфорт и стиль! ✨

-2
-3
-4
-5

🔹 Первый этаж:

Тамбур 🚪

Совмещенная кухня и гостиная 🍽🛋 — с лестницей, ведущей на второй этаж

Кладовая 🗄 под лестницей

Общий санузел 🚻

Котельная 🔥

Гостевая спальня 🛏

🔹 Второй этаж:

Холл 🛋

Санузел 🚿

3 спальни, одна с собственным санузлом 🛏🚽

Этот дом — отличное решение для уютной и функциональной жизни! 🌟

🔗 Подробнее о проекте → https://beregpesochnoy.ru/construction/lot-no10b/?utm_source=dzen

🤔 Заинтересовались этим проектом? Хотите узнать больше о планировке или стоимости? Звоните или пишите! 📞 +7 (495) 241-50-64

А вы мечтаете о доме с просторными спальнями или современной кухней? Какой дизайн вам ближе — классика или модерн? Делитесь в комментариях! 💬

#строительство #доммечты #частныйдом #современныйдом #индивидуальныйпроект #коттедж #архитектура #дизайндома #строимдом #проектПБ176 #уютныйдом