Добавить в корзинуПозвонить
Найти в Дзене
Философия дизайна

Дизайн проект квартиры под сдачу. Ход работ

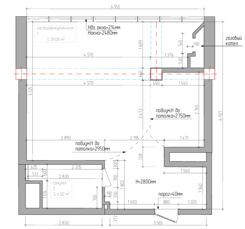
Всем доброго времени суток, начнем конечно же с планировки и плана от застройщика. Заказчику было предложено несколько вариантов планировочного решения, ниже приложу что выбрали. После того как определились с планировкой, я проработала остальные чертежи, необходимые для начала ремонта, а именно: план теплых полов, план электрически выводов, розеток, осветительных приборов, план сантехнических выводов, план заполнения дверных проемов( с подбором межкомнатных дверей), план напольных покрытий, план потолков, план настенных покрытий, развертки по помещениям, раскладка плитки, и многое другое. Когда согласовали все чертежи и материалы, я приступила к визуализации проекта. Самая интересная часть- ведь все идеи и задумки воплощаются в реалистичных картинках. Здесь я применила стеновые панели с древесным декором, мой один из любимых приемов - только на этот раз я решила добавить швы, чтобы придать некую графичность. На полу я использовала керамогранит, так как в проекте применен теплый пол вод

Всем доброго времени суток, начнем конечно же с планировки и плана от застройщика.

Квартира была с ремонтом, сделанным в нулевых. Заказчик купил квартиру с целью приезжать отдыхать самому в Сочи и под сдачу в аренду. Поэтому задачи стояли конкретные, отделить спальное место, сделать комфортную зону кухни и гостиной, сделать продуманные места для хранения, сделать полноценный санузел с душем и другими наполняющими.
Квартира была с ремонтом, сделанным в нулевых. Заказчик купил квартиру с целью приезжать отдыхать самому в Сочи и под сдачу в аренду. Поэтому задачи стояли конкретные, отделить спальное место, сделать комфортную зону кухни и гостиной, сделать продуманные места для хранения, сделать полноценный санузел с душем и другими наполняющими.

Заказчику было предложено несколько вариантов планировочного решения, ниже приложу что выбрали.

-2

После того как определились с планировкой, я проработала остальные чертежи, необходимые для начала ремонта, а именно: план теплых полов, план электрически выводов, розеток, осветительных приборов, план сантехнических выводов, план заполнения дверных проемов( с подбором межкомнатных дверей), план напольных покрытий, план потолков, план настенных покрытий, развертки по помещениям, раскладка плитки, и многое другое.

Когда согласовали все чертежи и материалы, я приступила к визуализации проекта. Самая интересная часть- ведь все идеи и задумки воплощаются в реалистичных картинках.

Визуализация гостиной.
Визуализация гостиной.

Здесь я применила стеновые панели с древесным декором, мой один из любимых приемов - только на этот раз я решила добавить швы, чтобы придать некую графичность.

-4

На полу я использовала керамогранит, так как в проекте применен теплый пол водяного типа. А когда теплый пол водяной-то большинство напольных покрытий отпадает из за температур, нагреваемых полом, и дабы избежать усыхания, разбухания напольного материала - выбрали керамогранит, плюс это бюджетный материал, что не мало важно в квартире под сдачу.

-5

Цветовая гамма в проекте теплая, это древесная текстура, это цвет оливы, это цвет белого песка.

-6

Кухня в проекте не большая, но вместительная и обладает всем необходимым для комфортного проживания. Это мини холодильник, расположенный под столешницей, посудомоечная машина, свч, достаточная зона для готовки.

Картину для проекта я как всегда написала в подарок для заказчика. Все цвета подбирала к подобранным материалам.

-7

В спальне получилось небольшое отдельное местечко, где можно посидеть , почитать книжку, выпить кофейку, и полюбоваться прекрасным видом из окна.

Для проникновения света в спальню запланирована перегородка из стеклоблоков разных по рисунку. Честно говоря, жду этот момент больше всего, когда начнут их укладку.

-8

-9

За кроватью я опять повторила прием с панелями , но изменила раскладку со швами.

-10

В прихожей опять повторяем панель, тут она уже не только декоративную роль выполняет но и роль настенной вешалки. В этом проекте хочу использовать нашумевший дуб каселла, который так полюбился многими дизайнерами, жду образцы от мебельщиков.

-11

Санузел. Здесь я сочетала 2 формата керамогранита, это 60х60 и 6Х28. Тоже жду, когда начнут укладку, так как цвет нереально красивый, болотный, оливковый.

-12

На этом пока и все. Сейчас на объекте идет реализация, обязательно буду выкладывать фото с авторского надзора.

До скоры встреч на Ваших объектах.