Найти в Дзене
Берег Песочной

Это двухэтажный индивидуальный жилой дом общей площадью 151,9 м², созданный для комфортного проживания семьи из 5–6 человек

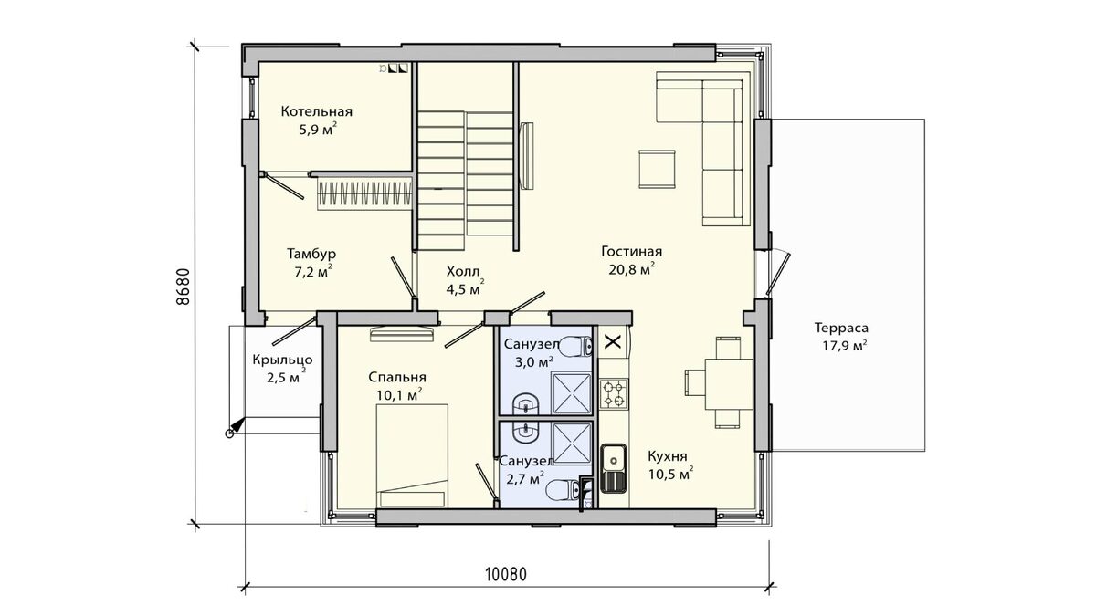
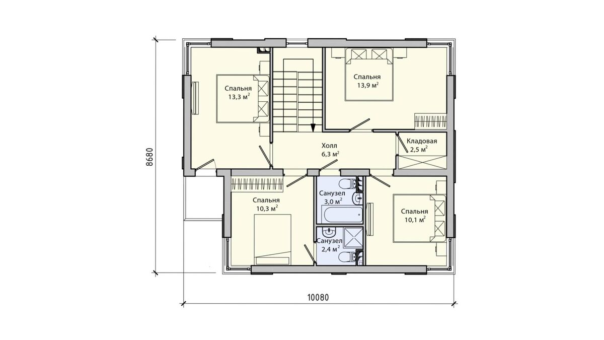
🏡 Представляем проект — ПБ-136/2! 🌟 Это двухэтажный индивидуальный жилой дом общей площадью 151,9 м², созданный для комфортного проживания семьи из 5–6 человек. Дом построен из панелей БЭНПАН Премиум с тиснением в сочетании с Апексом, что обеспечивает прочность и стильный внешний вид. 💪✨ 🔑 Вход оформлен тамбуром, из которого можно пройти в котельную и холл. Из холла есть доступ к гостевой спальне, санузлу и просторной гостиной, объединенной с кухней — идеальное решение для уютных вечеров и семейных встреч. 🍽🛋 На втором этаже расположены три спальни, кладовая и общий санузел. Одна из спален оснащена собственным санузлом, что добавляет удобства и приватности. 🛏🛁 Хотите узнать больше о деталях этого проекта? Перейдите по ссылке: https://beregpesochnoy.ru/construction/lot-no124/?utm_source=dzen
📞 Интересуетесь этим домом? Пишите или звоните: +7 (495) 241-50-64 А какой дизайн дома вам ближе — классический или современный? Какие функции должны быть в идеальном доме для вас? Делите

🏡 Представляем проект — ПБ-136/2! 🌟

Это двухэтажный индивидуальный жилой дом общей площадью 151,9 м², созданный для комфортного проживания семьи из 5–6 человек. Дом построен из панелей БЭНПАН Премиум с тиснением в сочетании с Апексом, что обеспечивает прочность и стильный внешний вид. 💪✨

-2
-3
-4
-5

🔑 Вход оформлен тамбуром, из которого можно пройти в котельную и холл. Из холла есть доступ к гостевой спальне, санузлу и просторной гостиной, объединенной с кухней — идеальное решение для уютных вечеров и семейных встреч. 🍽🛋

На втором этаже расположены три спальни, кладовая и общий санузел. Одна из спален оснащена собственным санузлом, что добавляет удобства и приватности. 🛏🛁

Хотите узнать больше о деталях этого проекта? Перейдите по ссылке: https://beregpesochnoy.ru/construction/lot-no124/?utm_source=dzen

📞 Интересуетесь этим домом? Пишите или звоните: +7 (495) 241-50-64

А какой дизайн дома вам ближе — классический или современный? Какие функции должны быть в идеальном доме для вас? Делитесь в комментариях! 💬

#строительстводома #индивидуальныйдом #проектдома #комфортноежилье #доммечты #архитектура #строительствоподключ #дизайндома #современныйдом #недвижимость