Добавить в корзинуПозвонить
Найти в Дзене
KPD Дизайн Интерьера

Чем смарт-планировка отличается от «дизайна

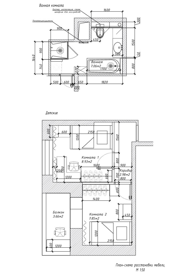
» Я не делаю красивые картинки ради Pinterest. Я делаю план, по которому можно строить. (А потом красивые картинки.) 😉 С мебелью реальных размеров. С понятными перегородками. С логикой движения по квартире. Это не про «вау». Это про «удобно каждый день». Если вы не хотите платить за визуализации, но хотите понятную рабочую основу для ремонта — смарт-планировка именно про это. Трости и гвозди

Чем смарт-планировка отличается от «дизайна»

Я не делаю красивые картинки ради Pinterest.

Я делаю план, по которому можно строить. (А потом красивые картинки.) 😉

С мебелью реальных размеров.

С понятными перегородками.

С логикой движения по квартире.

Это не про «вау».

Это про «удобно каждый день».

Если вы не хотите платить за визуализации, но хотите понятную рабочую основу для ремонта — смарт-планировка именно про это.

Трости и гвозди