Добавить в корзинуПозвонить
Найти в Дзене
ДОМ с умом

Проект "Полина"

В нашу компанию обратилась семья с одним ребёнком. Они поставили чёткую задачу: спроектировать одноэтажный дом с тремя спальнями. При этом заказчики сразу подчеркнули, что ценят простоту и рациональный подход к пространству. Мы отталкивались от этого в работе. В итоге планировка получилась логичной и продуманной — всё на своих местах, каждая зона работает на комфорт семьи. Дом компактный, но при этом очень удобный для жизни. Общая площадь - 108,3 кв.м
Жилая площадь - 97,9 кв.м
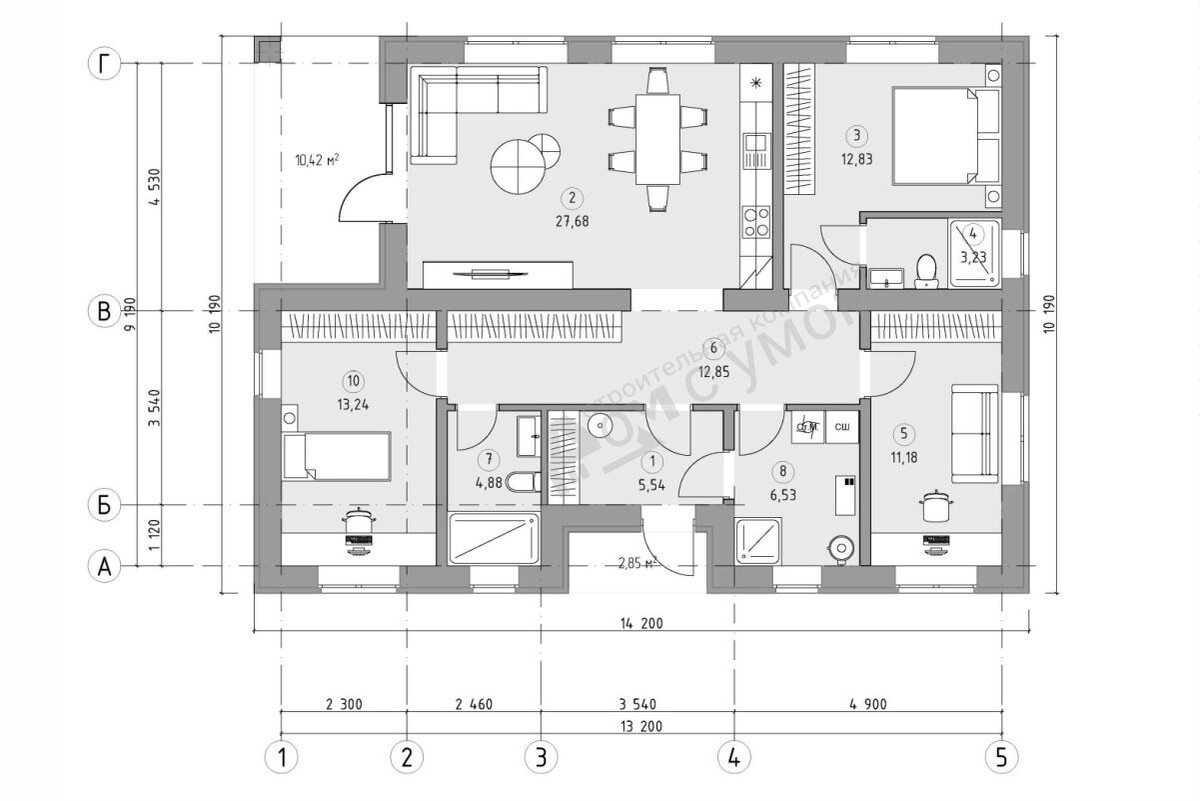
Габариты: 14,2 х 10,2 м
Фундамент: монолитная железобетонная плита
Стены: керамзитоблок 400 мм, утеплитель 100 мм
Отделка фасада: штукатурка и планкен
Межэтажное и чередачное перекрытие - железобетонные плиты перекрытия
Крыша - из металлочерепицы по деревянной стропильной системе Пространство организовано просто и логично. Центр дома - светлая кухня-гостиная, где хватит места и для готовки, и для отдыха. Отсюда можно выйти на террасу – идеальное место для утреннего кофе или вечерних посиделок. Три спальни, вклю
Оглавление

В нашу компанию обратилась семья с одним ребёнком. Они поставили чёткую задачу: спроектировать одноэтажный дом с тремя спальнями. При этом заказчики сразу подчеркнули, что ценят простоту и рациональный подход к пространству. Мы отталкивались от этого в работе. В итоге планировка получилась логичной и продуманной — всё на своих местах, каждая зона работает на комфорт семьи. Дом компактный, но при этом очень удобный для жизни.

Характеристики:

Общая площадь - 108,3 кв.м
Жилая площадь - 97,9 кв.м
Габариты: 14,2 х 10,2 м
Фундамент: монолитная железобетонная плита
Стены: керамзитоблок 400 мм, утеплитель 100 мм
Отделка фасада: штукатурка и планкен
Межэтажное и чередачное перекрытие - железобетонные плиты перекрытия
Крыша - из металлочерепицы по деревянной стропильной системе

Планировка:

Пространство организовано просто и логично. Центр дома - светлая кухня-гостиная, где хватит места и для готовки, и для отдыха. Отсюда можно выйти на террасу – идеальное место для утреннего кофе или вечерних посиделок. Три спальни, включая изолированную хозяйскую с собственной ванной, обеспечивают комфорт для всей семьи.

-2

📌Жилая площадь – 97,9 кв.м
📌Кухня-гостиная – 28,2 кв.м
📌Спальни – 3 шт.
📌Терраса – 10,4 кв.м