Добавить в корзинуПозвонить
Найти в Дзене

Представляем вашему вниманию проект дома в стиле хай-тек.

Лаконичность природы и технологий.
Представляем вашему вниманию проект дома в стиле хай-тек. Это идеальный баланс между смелой архитектурой, комфортом и функциональностью.
Характеристики объекта:
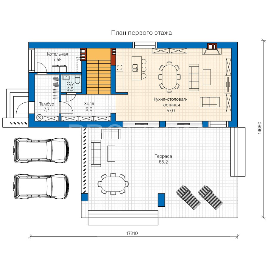
Площадь: 215 м² (2 этажа)

Лаконичность природы и технологий.

Представляем вашему вниманию проект дома в стиле хай-тек. Это идеальный баланс между смелой архитектурой, комфортом и функциональностью.

Характеристики объекта:

Площадь: 215 м² (2 этажа)

Материал стен: Газобетонные блоки (375 мм) — тепло и надежно.

Перекрытия: Монолитные железобетонные.

Фундамент: Монолитная ж/б плита.

Крыша: Плоская, с наплавляемой кровлей.

Архитектурные акценты:

Особую атмосферу этому дому придает сочетание современных материалов в отделке фасада: натуральное дерево, камень и фактурная штукатурка.

-2

-3

Зона отдыха:

Общая площадь террас составляет впечатляющие 116.54 м²! Это огромное пространство для летних вечеров на свежем воздухе или обедов под открытым небом.

-4

-5

Хотите такой же?

Рассчитайте стоимость строительства под ваш участок на нашем сайте: profdom.ru

Или позвоните нам для консультации: +7 962 684 54 71

Строим в Санкт-Петербурге, Ленинградской области и Москве.

#проектдома #хайтек #современныйдом #строительствоспб #строительстводомов #домстеррасой #архитектура