Добавить в корзинуПозвонить
Найти в Дзене
БОРУС

Torus House Романа Леонидова: как мы делали уличные конструкции 20 лет назад.

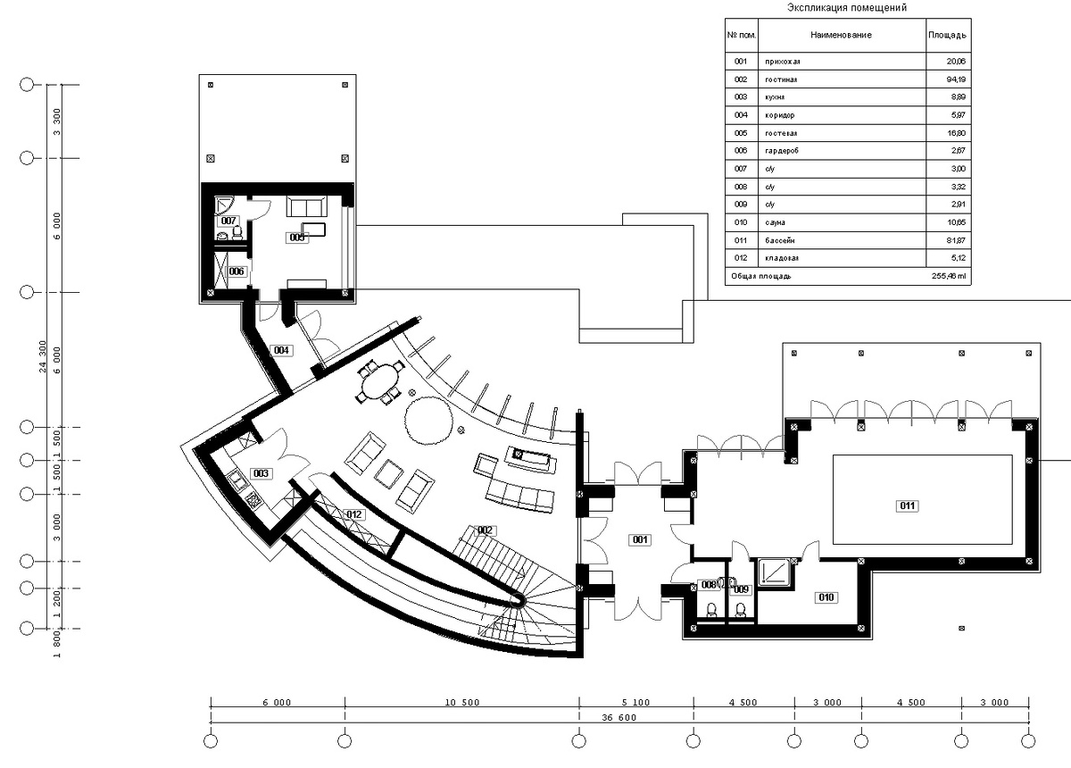
В нашем архиве нашёлся проект 2006 года, которым хочется поделиться. Torus House архитектора Романа Леонидова — один из тех объектов, где эстетика и инженерия работают в паре.
Для этого дома мы изготовили: входную и межкомнатные двери и перегородки, лестницу (ступени и ограждения), стеклянный стол для кабинета и скинали для кухонной зоны, зеркала и уличные конструкции.
И если интерьерные вещи со временем обновляются вслед за тенденциями, то уличные должны прочно стоять годами в том виде, в котором их смонтировали.
Наружные конструкции :
— ограждения из стали
— козырьки из стекла Секрет долговечности изделий:
— нержавеющая сталь высокого качества;
— закалённое стекло и триплекс, устойчивые к перепадам температур;
— продуманные узлы крепления — запас прочности закладывали ещё на стадии проектирования;
Если вам нужен подрядчик, которому можно доверить сложные задачи - мы будем рады обсудить их.
Оглавление

В нашем архиве нашёлся проект 2006 года, которым хочется поделиться. Torus House архитектора Романа Леонидова — один из тех объектов, где эстетика и инженерия работают в паре.

Для этого дома мы изготовили: входную и межкомнатные двери и перегородки, лестницу (ступени и ограждения), стеклянный стол для кабинета и скинали для кухонной зоны, зеркала и уличные конструкции.
И если интерьерные вещи со временем обновляются вслед за тенденциями, то уличные должны прочно стоять годами в том виде, в котором их смонтировали.

Наружные конструкции :
— ограждения из стали
— козырьки из стекла

Уличные металлические ограждения.
Уличные металлические ограждения.

Секрет долговечности изделий:
— нержавеющая сталь высокого качества;
— закалённое стекло и триплекс, устойчивые к перепадам температур;
— продуманные узлы крепления — запас прочности закладывали ещё на стадии проектирования;

Дом Torus house, Подмосковье.
Дом Torus house, Подмосковье.

Проект Torus House существует уже 20 лет, и мы гордимся, что наши конструкции остаются надежными!

Если вам нужен подрядчик, которому можно доверить сложные задачи - мы будем рады обсудить их.

Контакты для обсуждения:
📞+7(495)255-12-21 / +7(969)255-12-21
💻www.pskb.ru
📩pskb@pskb.ru