Добавить в корзинуПозвонить
Найти в Дзене
Все о ремонте квартир

Тёплый, уютный, качественный ремонт 3-комн. квартиры 100 м2

Просторная светлая квартира находится в городе Сочи, ее владельцами стала молодая семейная пара с двумя детьми. Эта недвижимость в новом доме и на момент покупки была на стадии черновой отделки, капитальный ремонт в ней был выполнен по дизайн проекту студии ДД. Реализацией проекта хозяева занимались самостоятельно — с вниманием к деталям и следованием первоначальной задумке. Так действительно бывает довольно часто, заказчики после согласования проекта и получив на руки альбом с полным комплектом чертежей для строителей, 3Д визуализацией и спецификацией мебели, оборудования, отделочных материалов и т. д.(где, что и сколько купить), сами контролируют процесс ремонта и занимаются закупкой всех материалов, либо делегируют этот процесс компетентной, грамотной бригаде строителей. Кстати, сейчас хорошие строительные бригады, в том числе и частные, не берутся за ремонт без проекта/чертежей. Особой перепланировки в квартире не было, лишь увеличили площадь гостевого санузла за счет коридора
Оглавление

Просторная светлая квартира находится в городе Сочи, ее владельцами стала молодая семейная пара с двумя детьми. Эта недвижимость в новом доме и на момент покупки была на стадии черновой отделки, капитальный ремонт в ней был выполнен по дизайн проекту студии ДД.

Реализацией проекта хозяева занимались самостоятельно — с вниманием к деталям и следованием первоначальной задумке.

Так действительно бывает довольно часто, заказчики после согласования проекта и получив на руки альбом с полным комплектом чертежей для строителей, 3Д визуализацией и спецификацией мебели, оборудования, отделочных материалов и т. д.(где, что и сколько купить), сами контролируют процесс ремонта и занимаются закупкой всех материалов, либо делегируют этот процесс компетентной, грамотной бригаде строителей.

Кстати, сейчас хорошие строительные бригады, в том числе и частные, не берутся за ремонт без проекта/чертежей.

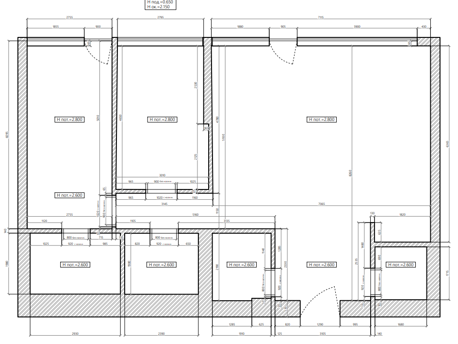
План квартиры от застройщика

План до
План до

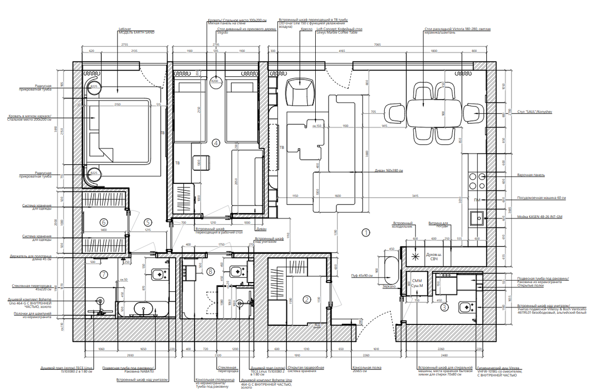
Особой перепланировки в квартире не было, лишь увеличили площадь гостевого санузла за счет коридора и перенесли дверные проемы. В остальном планировка от застройщика вполне устраивала заказчиков.

План квартиры после перепланировки и установки мебели

План после
План после

Кухня-гостиная

Мне очень понравился дизайн этой квартиры: светлый основной фон, которому придает динамики тёмный шпон благородного оттенка и крупноформатный керамогранит с выразительным природным рисунком — именно они задали характер всему интерьеру кухни-гостиной.

Зона гостиной
Зона гостиной

Пространство получилось гармоничным, собранным и комфортным, а за счет использования теплого света и терракотовых акцентов – тёплым и уютным.

Вид на гостиную
Вид на гостиную

Необычный декор, словно повторяет форму рисунка на керамограните за ТВ и вносит свою изюминку общей атмосфере пространства.

Вид на акцентную стену гостиной
Вид на акцентную стену гостиной

Не смогла пройти мимо этой квартиры с восхитительными видами за панорамными окнами и, конечно, решила поделиться с вами этой красотой.

Вид из прихожей
Вид из прихожей
Мягкие уютные кресла - располагают к семейному отдыху у камина, общению или совместному просмотру фильма
Мягкие уютные кресла - располагают к семейному отдыху у камина, общению или совместному просмотру фильма

В кухонной зоне использовали шикарное сочетание в отделке фасадов: дерево, металл и белый цвет, которые красиво смотрятся на фоне выразительного рисунка керамогранита.

Кухня
Кухня
Вид на кухню от окна
Вид на кухню от окна

Большие окна с прекрасными видами, наполняют комнату естественным светом, именно возле них, расположили обеденную группу с большим овальным столом, форму которого поддерживает светильник над ним.

Обеденная зона
Обеденная зона

Прихожая и коридор

Прихожая
Прихожая
Коридор
Коридор

Спальня

Здесь главным акцентом, конечно, выступает кровать с терракотовой обивкой – она задает настроения всему пространству.

-13

Мягкий текстиль, текстура обоев и дерева придают тепла и уюта. В спальне царит расслабляющая атмосфера спокойствия, отдыха и комфорта.

-14
-15
-16
-17
Функциональная гардеробная с открытыми системами хранения и встроенной подсветкой - довольно удобны для повседневного использования. А большие зеркала визуально расширяют пространство и придают глубины не слишком большому помещению.
Гардеробная
Гардеробная

Открытая терраса-лоджия

Как же красиво! На море можно смотреть часами и наслаждаться - моя любовь!
Как же красиво! На море можно смотреть часами и наслаждаться - моя любовь!

Санузлы

В квартире три санузла (смотрите план): гостевой, детский и хозяйский, который расположен с входом из спальни родителей.

Все эти помещения получились очень эффектными: в их отделке использовали крупноформатный керамогранит (светлый и темный) с выразительным природным рисунком. Бронзовые элементами в сантехнике и светильниках добавляют интерьеру тепла и благородства.

-20
-21

Понравилось то, что сделали несколько сценариев освещения: встроенное, которое отвечает за функциональность и декоративные светильники с помощью которых можно создать уютную интимную атмосферу.

-22
-23

Хорошее фото довольно сложно сделать в маленьком помещении, особенно если учесть, что хозяева квартиры делали их самостоятельно. Но, думаю, главную идею, атмосферу и дизайн им передать удалось!

-24

На мой взгляд, квартира получилась стильной и функциональной с красивым природным интерьером, который потрясающе гармонирует с морскими видами из окон.

Спасибо, что заглянули в мою студию! Понравилось ставьте лайки, пишите комментарии! Желаю всем Добра и Удачи!