Найти в Дзене
DIVAN.RU

Создали атмосферу загородного дома в студии 32 кв.м

Удивительно, но вдохновение для этого проекта дизайнер нашла в своем детстве, а точнее — в интерьере собственной дачи. Там, где собирались вещи, уже не нужные в основном доме, рождалась совершенно особенная, ни с чем не сравнимая атмосфера уюта. Посмотрим, реализовалась эта идея. Объект: студия 32 кв.м, г. Москва (потолки 2,6 м) Автор проекта: хоумстейджер Мария Дерендяева, автор фото Татьяна Казакова Бюджет проекта: 1,48 млн рублей На момент покупки квартира была с ремонтом от застройщика. Это нетипичная студия: 32 квадрата с гардеробной и полноценной ванной в санузле. Заказчики просили обустроить именно исходную планировку, избегая стройки. Для зонирования единственной комнаты использовали цвет: спальня и кухня стали акцентными, остальные зоны — спокойные. Типовую отделку сохранили, добавили лишь МДФ-панели на стену в спальне. Кухонный гарнитур без верхнего яруса изготовлен на заказ. Каркас и фасады пеналов выполнены из ЛДСП Egger, фасады нижнего яруса — из терракотового МДФ. Угловой
Оглавление

Удивительно, но вдохновение для этого проекта дизайнер нашла в своем детстве, а точнее в интерьере собственной дачи. Там, где собирались вещи, уже не нужные в основном доме, рождалась совершенно особенная, ни с чем не сравнимая атмосфера уюта. Посмотрим, реализовалась эта идея.

Объект: студия 32 кв.м, г. Москва (потолки 2,6 м)

Автор проекта: хоумстейджер Мария Дерендяева, автор фото Татьяна Казакова

Бюджет проекта: 1,48 млн рублей

Пожелания заказчиков

  • Интерьер на базе ремонта от застройщика.
  • Концепция колористики: природные тона с акцентами на зеленый и терракоту.

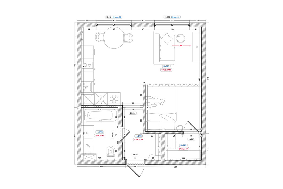
Планировочное решение

На момент покупки квартира была с ремонтом от застройщика. Это нетипичная студия: 32 квадрата с гардеробной и полноценной ванной в санузле. Заказчики просили обустроить именно исходную планировку, избегая стройки.

Планировочное решение и расстановка мебели
Планировочное решение и расстановка мебели

Для зонирования единственной комнаты использовали цвет: спальня и кухня стали акцентными, остальные зоны — спокойные. Типовую отделку сохранили, добавили лишь МДФ-панели на стену в спальне.

Зона кухни

Кухонный гарнитур без верхнего яруса изготовлен на заказ. Каркас и фасады пеналов выполнены из ЛДСП Egger, фасады нижнего яруса — из терракотового МДФ.

Угловой гарнитур включает два высоких пенала напротив окна со встроенными холодильником, духовым шкафом с СВЧ и местами для хранения. В нижнем ярусе расположены посудомоечная машина, сушка и ящики. Гарнитур не доходит до конца стены с окном из-за труб. Зеркало от пола до потолка на этой стене визуально расширяет пространство и добавляет света.

Крупноформатный керамогранит на фартуке создает эффект единого полотна благодаря тонким швам. Яркая стена над ним, несмотря на первоначальные сомнения автора проекта, стала удачным акцентом, выделившим кухню. Современный гарнитур дополняют ретро-бра и художественные полотна в гипсовых багетах барочного стиля.

-4

Над обеденной зоной висит винтажная люстра «Шапка Мономаха». Для ее установки, из-за веса более 10 кг, мастер разрезал натяжной потолок и закрепил люстру на шуруп-крюк в бетонном перекрытии. Остальное потолочное освещение нейтральное.

«Эклектика — вот точное определение для стилистики этой квартиры, — утверждает автор проекта. — Я сознательно использовала классические элементы, такие как обеденная группа из натурального дерева и шпона, контрастный черно-белый шахматный пол в санузле и насыщенный зеленый оттенок стен, чтобы создать базу. Затем добавила ретро-акценты, например, винтажную люстру и картину в стиле барокко, чтобы придать интерьеру уникальный характер».

Зона гостиной

Диван Динс Мини от бренда divan.ru в ткани Olive Mola зонирует комнату. Напротив него — ТВ-тумба Кейлет, подобранная под цвет стен в гостиной.

➡️Товары бренда divan.ru

«Ковер в зоне отдыха связывает воедино напольное покрытие санузла и черные акценты всего интерьера, — отмечает дизайнер. — Золотой металлический журнальный стол в африканском стиле создает композицию с люстрой. Вместо стандартного потолочного светильника от застройщика мы выбрали модель с регулировкой яркости, которая идеально вписывается в интерьер, не нарушая общей гармонии».

Зона спальни

Спальная ниша (5,5 кв.м) закрыта шторами для приватности. Чтобы не штробить стену ради бра, электрик присоединил к выбранному настенному светильнику прозрачный сетевой шнур с вилкой и выключателем.

Кровать Вилена 140 от divan.ru в ткани Terra Ultra оказалась очень практичной для небольшого пространства. Во-первых, у нее есть подъемный механизм, а под матрасом находится большой бельевой ящик. Во-вторых, цвет обивки хорошо гармонирует с кухонными фасадами. В объеме кровать выглядит значительно эффектнее, чем мы предполагали по образцу ткани.

➡️Товары бренда divan.ru

Из-за плотного расположения кровати к двери, вместо тумбы используется приставной стальной столик в цвет стен. Яркое спальное место дополнено базовым сатиновым постельным бельем в полоску и текстильным декором.

Лайфхак от хоумстейджера: для экономии на текстильном оформлении можно использовать скатерть вместо дорогостоящих покрывал и пледов. В данном проекте нижнюю часть кровати декорировали плотной скатертью из рогожки.

Обратите внимание: главная особенность спальни — скрытая за дверью гардеробная. Дверь замаскировали бюджетным способом: вместо скрытого монтажа использовали МДФ-панели под покраску, которые напоминают традиционную вагонку. Монтаж выполнили следующим образом: демонтировали наличники, произвели шпаклевку поверхности, зафиксировали панели на жидкие гвозди, выполнили грунтование и финишную окраску.

Прихожая

Прихожая оформлена в нейтральных тонах. Вместо шкафа использовали готовую систему хранения. Ее дополнили оливковым стулом, полкой и шторой на телескопической штанге. Напротив разместили декоративные рамки для ретро-настроения.

Санузел

На пол в санузле уложили черно-белый керамогранит в шахматном порядке. Стены сохранили оригинальные, обновив их путем окрашивания межплиточных швов. Чтобы уйти от типового вида, в зоне раковины смонтировали дюрополимерные панели поверх существующей плитки. Их окрасили в тон стен квартиры и покрыли полуглянцевым лаком.

При ремонте решили оставить ванну и унитаз от застройщика. Экран под ванной, раковину и щит с коммуникациями обновили. Дополнительное место для хранения организовали с помощью шкафа с подсветкой в нише и тумбы под раковиной.

🛍🛒 Пусть зима запомнится удачными покупками! Весь февраль отдаём с выгодой до 50% мебель и товары для дома. Всё ждет в наличии на divan.ru >>

-11

============================

Оцените статью в комментариях, а если материал понравился — не забудьте поставить лайк👍

🖤divan.ru — не только блог про интерьеры, но и производитель доступной дизайнерской мебели. Ищите новые идеи и переходите на сайт, чтобы воплотить их в жизнь.