Добавить в корзинуПозвонить
Найти в Дзене
ГосземляРФ

Название: Крестьянские (фермерские) хозяйства или сельскохозяйственные организации, заинтересованные в предоставлении земельных участков и

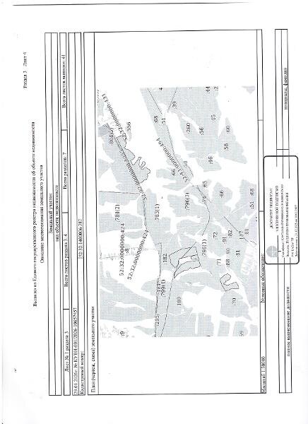
являющихся получателями государственных поддержек, в течении 30 (тридцати) дней со дня опубликования настоящего извещения, могут подать заявления о намерении участвовать в аукционе по продаже аренды данных земельных участков. Канал: Госземля Нижегородская область Область: обл Нижегородская Район: м.о. Дальнеконстантиновский Населенный пункт: с Таможниково Российская Федерация, Нижегородская область, муниципальный округ Дальнеконстантиновский, примерно 1.04 км на юг от границы с. Таможниково Локация: Смотреть на карте ВРИ: Сельскохозяйственное использование Кадастровый номер: 52:32:1400006:787 Кадастровая стоимость: - Вид сделки: Аренда Площадь: 1374072 м² Начальная цена: - руб. Дата завершения: 23.03.2026 Подробнее: ГИС ТОРГИ #госземля #земляотгосударства #земля #земельныйучасток #земельныеторги #торги #аукцион #арендаземли #аренда #нижегородскаяобласть

Название: Крестьянские (фермерские) хозяйства или сельскохозяйственные организации, заинтересованные в предоставлении земельных участков и являющихся получателями государственных поддержек, в течении 30 (тридцати) дней со дня опубликования настоящего извещения, могут подать заявления о намерении участвовать в аукционе по продаже аренды данных земельных участков.

Канал: Госземля Нижегородская область

Область: обл Нижегородская

Район: м.о. Дальнеконстантиновский

Населенный пункт: с Таможниково Российская Федерация, Нижегородская область, муниципальный округ Дальнеконстантиновский, примерно 1.04 км на юг от границы с. Таможниково

Локация: Смотреть на карте

ВРИ: Сельскохозяйственное использование

Кадастровый номер: 52:32:1400006:787

Кадастровая стоимость: -

Вид сделки: Аренда

Площадь: 1374072 м²

Начальная цена: - руб.

Дата завершения: 23.03.2026

Подробнее: ГИС ТОРГИ

#госземля #земляотгосударства #земля #земельныйучасток #земельныеторги #торги #аукцион #арендаземли #аренда #нижегородскаяобласть