Найти в Дзене

Продолжаем разбор

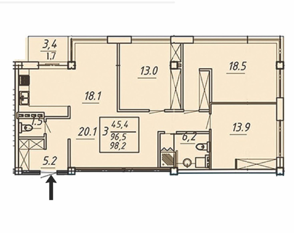
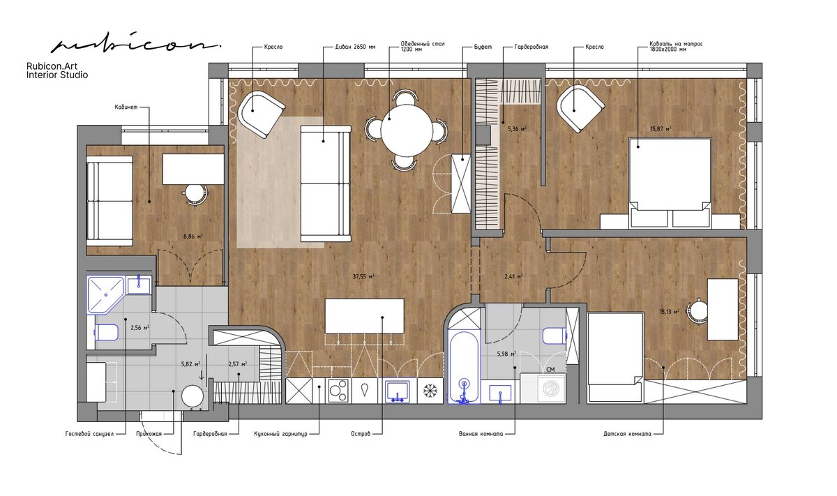
✍ #исправляемпланировку Первый кейс — трёшка и двушка из прошлого поста. Сразу честно: двушку спасти не удалось. Основная проблема — слишком много панорамных окон. Из-за этого манёвра для нормальной перепланировки почти нет. В таких случаях я честно говорю клиентам — лучше поискать другой вариант. И вот тут важный момент 👇 Первое касание с квартирой — самое главное. Очень часто люди влюбляются в вид, двор, рекламу… а планировку смотрят в последнюю очередь. Именно поэтому у нас есть консультация перед покупкой: разбираем несколько вариантов, смотрим плюсы и минусы, считаем потенциал перепланировки и сразу понимаем — стоит брать или нет. Если актуально — напишите в личные сообщения или под этим постом. Теперь про трёшку. Тут получилось интересно 👇 После перепланировки: ✅ полноценная гардеробная при входе ✅ второй санузел с душевой ✅ кабинет с удобным доступом (не через всю квартиру) ✅ кухня с островом ✅ диван больше не в проходе ✅ изолированный детский блок и мастер-спальня с г

Продолжаем разбор ✍

#исправляемпланировку

Первый кейс — трёшка и двушка из прошлого поста.

Сразу честно:

двушку спасти не удалось. Основная проблема — слишком много панорамных окон. Из-за этого манёвра для нормальной перепланировки почти нет. В таких случаях я честно говорю клиентам — лучше поискать другой вариант.

И вот тут важный момент 👇

Первое касание с квартирой — самое главное.

Очень часто люди влюбляются в вид, двор, рекламу… а планировку смотрят в последнюю очередь.

Именно поэтому у нас есть консультация перед покупкой:

разбираем несколько вариантов, смотрим плюсы и минусы, считаем потенциал перепланировки и сразу понимаем — стоит брать или нет.

Если актуально — напишите в личные сообщения или под этим постом.

Теперь про трёшку.

Тут получилось интересно 👇

После перепланировки:

✅ полноценная гардеробная при входе

✅ второй санузел с душевой

✅ кабинет с удобным доступом (не через всю квартиру)

✅ кухня с островом

✅ диван больше не в проходе

✅ изолированный детский блок и мастер-спальня с гардеробной

Вот это уже похоже на комфорт-класс.

Как вам результат?

Стало логичнее или вы бы сделали иначе? 👇

-2