Найти в Дзене
DIVAN.RU

Ретро-шик в современном прочтении: как преобразили квартиру 58 кв.м для семьи с двумя детьми

Инга — поклонница винтажа и атмосферы 60-х. В дизайне ее трешки сочетаются современные тренды и элементы mid-century. Хозяйка умело соединила актуальную отделку с ретро-деталями, создав интерьер, который словно «переносит» в прошлое. Посмотрим ближе. Объект: трехкомнатная квартира 58 кв.м, г. Санкт-Петербург Бюджет ремонта: 2 млн рублей Автор съемки: Александра Хлебникова — Когда у нас родился первый ребенок (в 2014 году), мы купили эту квартиру в новостройке, — делится хозяйка квартиры Инга. — Когда в 2024 году родился второй малыш, переезжать не стали, чтобы остаться в знакомом районе рядом с детским садом, школой и кружками. Вместо этого затеяли перепланировку и второй ремонт. Сэкономленные на покупке жилья деньги мы вложили в строительство загородного дома, про который я уже рассказывала >> В 2014 году мы приобрели эту квартиру «в бетоне». Планировка предусматривала три спальни и кухню-гостиную, окна на две стороны. Несущая стена у спальни и колонна в центре оказались удачным решен
Оглавление

Инга — поклонница винтажа и атмосферы 60-х. В дизайне ее трешки сочетаются современные тренды и элементы mid-century. Хозяйка умело соединила актуальную отделку с ретро-деталями, создав интерьер, который словно «переносит» в прошлое. Посмотрим ближе.

Объект: трехкомнатная квартира 58 кв.м, г. Санкт-Петербург

Бюджет ремонта: 2 млн рублей

Автор съемки: Александра Хлебникова

— Когда у нас родился первый ребенок (в 2014 году), мы купили эту квартиру в новостройке, — делится хозяйка квартиры Инга. — Когда в 2024 году родился второй малыш, переезжать не стали, чтобы остаться в знакомом районе рядом с детским садом, школой и кружками. Вместо этого затеяли перепланировку и второй ремонт. Сэкономленные на покупке жилья деньги мы вложили в строительство загородного дома, про который я уже рассказывала >>

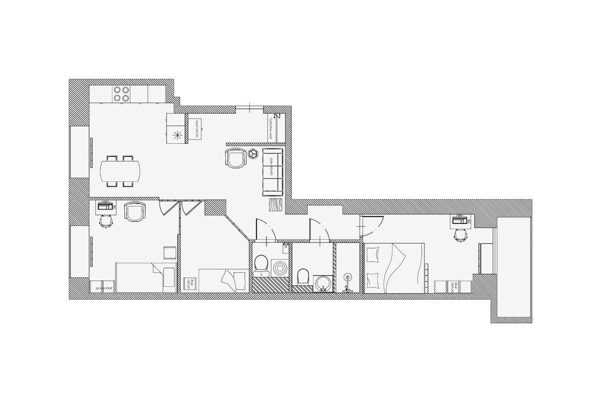
Планировочное решение

В 2014 году мы приобрели эту квартиру «в бетоне». Планировка предусматривала три спальни и кухню-гостиную, окна на две стороны. Несущая стена у спальни и колонна в центре оказались удачным решением для организации пространства гостиной, холла и детской.

Перепланировка 2024 года включала две задачи:

  1. Разделение длинной комнаты стеклянной перегородкой с металлическим каркасом на две изолированные детские с отдельными входами и максимальным естественным освещением.
  2. Организацию входной зоны и разделение кухни-гостиной на «приготовительную», столовую и диванную зоны.
Планировочное решение и расстановка мебели
Планировочное решение и расстановка мебели

Концепция проекта

Я обожаю винтаж, дизайн в духе mid-century и атмосферу 60–70-х годов. Однако такой подход предполагает просторные помещения и солидные вложения в редкие, эксклюзивные предметы. А еще с двумя детьми ну очень сложно создать аутентичное пространство для жизни. Мы остановились на современных материалах и мебели, но в цветах и текстурах, вызывающих ассоциации с той порой: терракотовый, горчичный, желто-зеленый тона, вельвет, дерево, орнаменты, немного экокожи.

Кухня-гостиная

Стены в этой комнате оформлены однотонными обоями Loymina Milassa (коллекция Ambient) с горизонтальной поклейкой. Двухуровневая техника — характерный прием в mid-century. Акцентная стена с перфорацией из акустического гипсокартона. Этот материал вызывает ассоциации с детством, музыкальным залом дома творчества, виниловыми пластинками, диско-шарами и прочей атрибутикой. Данная стена выполняет роль как узорчатого, так и фактурного элемента. На полу SPC ламинат Fargo «Дуб Робуста» в технике «елочка», плинтусы — черные.

В нашей проходной гостиной много времени уделяется чтению и работе. Диван Сите от бренда divan.ru задает настроение: оливковый велюр отлично смотрится на фоне терракотовых обоев, а наклонные ножки и пуговки — маленькие отсылки к ретро. Когда в «Конструкторе» на сайте я заприметила вельветовое кресло Пайл лососевого оттенка, совсем забыла о размерах гостиной. Несмотря на внушительные габариты, кресло идеально подошло для нашего главного требования — возможности сидеть в нем с ногами. Теперь это мое любимое отдыха.
-3

Кофейный столик, с его характерными наклонными ножками и двухярусной столешницей, является явной отсылкой к дизайну 60-х годов. Основным источником света в этой зоне служит торшер с рельефной линзой и регулируемым абажуром. Несмотря на наличие встроенного потолочного освещения и долгожданной люстры в форме шляпы, мы предпочитаем использовать только нижний свет.

Мебель от divan.ru сыграла решающую роль в воплощении нашей концепции. Мы нашли высококачественные винтажные модели по оптимальной цене, а «Конструктор» мебели обеспечил идеальное соответствие дизайна нашим задумкам.

➡️Товары бренда divan.ru

Фасады с деревянным декором «елочка» из IKEA стали базой кухни с каркасами на заказ. Я сознательно отказалась от массивного хранения, оставив минимум необходимого. В стилистике все основано на ассоциациях: керамическая раковина IKEA напоминает эмалированные ванночки, а верхние шкафы не доходят до потолка, создавая ощущение, будто верхняя и нижняя части кухни принадлежат к разным стилям.

-5

Белая эмалированная плитка с контрастной затиркой на фартуке — знаковый элемент кухонь середины XX века. Винтажный чайник Delonghi дополняет эту ностальгию. Однако, чтобы не «перегрузить» интерьер, бытовая техника выбрана современная, хотя металлические ручки СВЧ и духовки служат тонкой отсылкой к прошлому. Встроенный холодильник и дополнительное хранение скрыты в пенале, который для меня — чистая ассоциация с 70-ми.

Радиаторы Arbonia белого цвета в эмали идеально вписались в интерьер, заменив старые, которые не соответствовали нашему дизайну.

Черный обеденный стол от divan.ru теперь украшает нашу столовую. Несмотря на его компактность, за ним с комфортом размещаются четверо человек. Стол легкий, но при этом очень устойчивый. Разнообразие стульев — с подлокотниками, декором из кнопок, обивкой из букле и кожзама — напоминает мне о рабочих пространствах, собраниях и многообразии личностей. Новинка от divan.ru — черный стул Берри стал гармоничным дополнением интерьера.

Спальня

Бежевые обои в спальне такие же, как и в гостиной. Чтобы добавить насыщенности и уравновесить комнату, одна стена выделена терракотовым цветом.

Бюджетная кровать Дарлайн от divan.ru с компактным каркасом позволила разместить матрас 180 см, несмотря на ограниченное пространство. Вместо тумб используем полки Чейз и Элод для мелочей и репродукций.

Шкаф Кимбол с полками, ящиками и штангой удачно вписался в узкое пространство между кроватью и стеной, экономя каждый сантиметр. Чтобы замаскировать глухой и не очень красивый торец, установили перегородку из стеклоблоков с декором «параллель» и «линза».

Мой домашний кабинет оснащен столом-стеллажом, достаточным для работы с ПК. Полки заполнены личными предметами, искусством и литературой о Петербурге. Поворотно-откидное кресло IKEA планирую беречь очень долго. Шторы из легкого костюмного вельвета обеспечивают полный блэкаут и минималистичный вид.

➡️Товары бренда divan.ru

Детская старшего сына

Стеклянная перегородка разделяет комнаты для разновозрастных детей, давая каждому личное пространство. Решение не совсем бюджетное и сложное в исполнении, но эффективное. Шумоизоляция достаточная, хотя при желании можно улучшить, выбрав более толстый стеклопакет и профиль большей толщины.

Функциональный шкаф Нордик со штангой, бельевым ящиком и полками хорошо подходит для подростка, вмещая повседневную одежду, спортивную форму и школьные принадлежности. Комплект дополняют прикроватная тумба Ивейн и надежная кровать Дарлайн (90 см) с жестким матрасом, которая обеспечивает здоровый сон. Минималистичная организация пространства способствует поддержанию порядка.

Письменный стол со стеллажом Маранг от divan.ru вместил все для учебы, принтер и декор. Настольная лампа Рибе создает красивый пучок света и приятное свечение. Реечные панели на стенах, выкрашенные в терракотовый, напоминают мягкие стеновые панели из экокожи 80-90-х годов.

➡️Товары бренда divan.ru

Детская младшего сына

Небольшая площадь детской комнаты младшего сына не вызывает беспокойства. Учитывая возраст ребенка, такого пространства вполне достаточно: основную часть времени он проводит за играми в общих зонах квартиры, а в своей комнате отдыхает и хранит игрушки. Отсутствие необходимости в рабочем месте для учебы позволяет оптимизировать планировку под текущие потребности.

Светлые обои в детской дополнены объемными наклейками в акцентных цветах. Функциональную зону организовали с помощью шкафа Нордик для одежды и стеллажа Талдом от divan.ru для игрушек. Единая коллекция мебели дополнена яркими акцентами: оранжевой тумбой и ротанговым декором от La Redoute.

➡️Товары бренда divan.ru

Прихожая

Грамотное зонирование прихожей с ограниченным пространством имеет свои преимущества: уменьшается объем уборки, а временное беспорядок остается незаметным при выключенном свете. Вместо индивидуального заказа мы выбрали стандартный распашной шкаф Кимбол от divan.ru в черном цвете с полками и штангами. Черная входная дверь гармонично сочетается с межкомнатными. Пуф Клаум из вельвета, легко моющийся и устойчивый, чаще всего располагается в прихожей. Напольный керамогранит с метлахским узором создает атмосферу старинного особняка, напоминая о парадных холлах домов начала прошлого века.

Санузлы

Совмещенный санузел оформлен с акцентом на функциональность: просторная душевая, подвесной унитаз с инсталляцией и тумба с прочным покрытием. Керамогранитная отделка стен и пола в теплой гамме дополнена стильным принтом терраццо с природными оттенками. Отказ от мелкоформатной плитки в душевой сэкономил время и деньги. Черные смесители и фурнитура придали интерьеру выразительности.

Рядом находится гостевой санузел с постирочной, вмещающий стиральную и сушильную машины, унитаз и небольшую раковину.

🛍🛒 Пусть зима запомнится удачными покупками! Весь февраль отдаём с выгодой до 50% мебель и товары для дома. Всё ждет в наличии на divan.ru >>

-15

============================

Оцените интерьер в комментариях, а если материал понравился — не забудьте поставить лайк👍

🖤divan.ru — не только блог про интерьеры, но и производитель доступной дизайнерской мебели. Ищите новые идеи и переходите на сайт, чтобы воплотить их в жизнь.