Добавить в корзинуПозвонить
Найти в Дзене

✅Сколько стоит ремонт ванной в 2026: 3 реальные сметы для санузла 4 м²

Ремонт ванной в этом году бьет по карману сильнее, чем год назад. Цены на плитку выросли, хорошие сантехники в дефиците, а стоимость работы за квадрат снова поднялась. Чтобы вы не попали в ловушку «сначала косметика, а потом капиталка», предлагаю примерить три конкретных проекта на ваши квадратные метры. Пойдем от простого к сложному. Подпишитесь на наш канал! Здесь эксперты-практики делятся схемами и сметами, которые уже сработали в сотнях квартир. Без воды, только цифры и технологии. Возьмем за основу реальный совмещенный санузел в панельном доме площадью до 4 м². Те самые типовые метры, где нужно уместить и ванну, и унитаз, и стиралку, и шкаф для хранения Разберем, сколько стоит ремонт ванной в 2026 году на примере трех разных подходов к отделке. Точную стоимость всего ремонта, вы можете получить в этом калькуляторе Domeo -> https://domeo.ru/remont Это ремонт для тех, кому «сделать и забыть». Никакого дизайнерского изыска, только база. Стены выравниваются штукатуркой по маякам, но б
Оглавление

Ремонт ванной в этом году бьет по карману сильнее, чем год назад. Цены на плитку выросли, хорошие сантехники в дефиците, а стоимость работы за квадрат снова поднялась. Чтобы вы не попали в ловушку «сначала косметика, а потом капиталка», предлагаю примерить три конкретных проекта на ваши квадратные метры. Пойдем от простого к сложному.

Текст помог составить сметчик Domeo
Текст помог составить сметчик Domeo
Подпишитесь на наш канал! Здесь эксперты-практики делятся схемами и сметами, которые уже сработали в сотнях квартир. Без воды, только цифры и технологии.

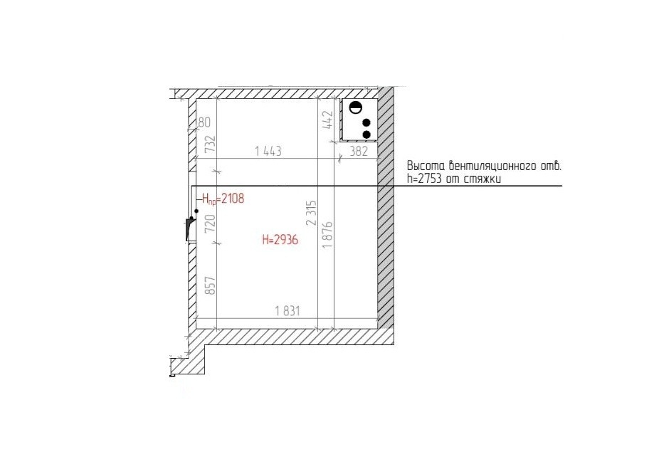
Возьмем за основу реальный совмещенный санузел в панельном доме площадью до 4 м². Те самые типовые метры, где нужно уместить и ванну, и унитаз, и стиралку, и шкаф для хранения Разберем, сколько стоит ремонт ванной в 2026 году на примере трех разных подходов к отделке.

Планировка квартиры
Планировка квартиры

Нужен ремонт всей квартиры? Рассчитайте стоимость под ключ БЕСПЛАТНО уже сейчас👇

-3

Точную стоимость всего ремонта, вы можете получить в этом калькуляторе Domeo -> https://domeo.ru/remont

КАЛЬКУЛЯТОР

Бюджетный вариант: чисто, сухо, функционально

Это ремонт для тех, кому «сделать и забыть». Никакого дизайнерского изыска, только база. Стены выравниваются штукатуркой по маякам, но без фанатизма – плитка скроет мелкие огрехи. На пол идет хорошая гидроизоляция в два слоя, стяжка с уклоном к трапу (даже если трапа нет, вода не должна застаиваться).

Плитка: Российский или белорусский керамогранит 30х60 см на стены, 30х30 см на пол. Светлые тона визуально расширяют пространство.

Сантехника: Акриловая ванна 170 см, простой смеситель с душем, подвесной унитаз с инсталляцией (эконом-сегмент).

Коммуникации: Полипропиленовые трубы, скрытая разводка. Проводка отдельным кабелем на стиральную машину и освещение.

Итог по работам и материалам: От 280 000 до 350 000 рублей. Основная экономия здесь – на санфаянсе и отсутствии сложных дизайнерских решений вроде пеналов и скрытых дверей.

Комфорт-класс: эстетика и продуманное хранение

Здесь в дело вступает грамотное зонирование. Уже на визуализации увидим четкую структуру: крупноформатная плитка «под бетон» на стенах и теплый деревянный фасад тумбы. Это задает тон.

Проект Domeo
Проект Domeo

Отделка: Плитка 60х120 см укладывается с минимальным швом. Совет: Под такой формат стены должны быть выведены в ноль жестко, иначе углы «гуляют». На полу – керамогранит с текстурой светлого дерева.

Мебель: Вместо простой тумбы монтируется пенал. В него встраивается стиральная машина, а сверху – закрытые и открытые полки для полотенец и бытовой химии. Подвесная тумба под раковину с ящиками.

Сантехника: Хромированные смесители, качественная инсталляция Geberit или аналоги.

Стоимость в 2026 году: От 450 000 до 600 000 рублей. Дороже за счет мебели на заказ (или готового пенала) и сложной укладки крупного формата.
Фото проекта с ремонтом от DOMEO
Фото проекта с ремонтом от DOMEO

Премиум-реализация: интерьер под ключ

Тот случай, когда ремонт не видно, но чувствуется. Глядя на фото готовых работ, цепляет взгляд именно детали. На одной из планировок видно решение со скрытой дверью под плитку. Это стоит серьезных денег, но именно такие приемы создают ощущение монолитного пространства.

Фишки: Дверное полотно скрытого монтажа облицовывается той же плиткой, что и стены. Коробка утапливается, наличников нет. Матово-черные или бронзовые смесители, верхний душ (тропический ливень).

Ниша инсталляции: Здесь она облицована более светлой плиткой, что создает акцент и зрительно углубляет зону унитаза.

Освещение: Многоуровневое. Точечные светильники плюс подсветка зеркала.

Стоимость реализации: От 650 000 до 950 000 рублей и выше. Сюда входит и премиальная сантехника, и сложные электромонтажные работы, и установка двери скрытого монтажа (которая сама по себе стоит как бюджетный унитаз с инсталляцией).

Фото проекта с ремонтом от DOMEO
Фото проекта с ремонтом от DOMEO

Ремонт такого уровня можно заказать в DOMEO - лучшей компании Москвы!👇

Точную стоимость всего ремонта, вы можете получить в этом калькуляторе Domeo -> https://domeo.ru/remont

КАЛЬКУЛЯТОР

Пошаговый расчет сметы: от стяжки до затирки

Чтобы у вас не случилось инфаркта, когда прораб назовет итоговую цифру, держите план работ с ценами на этот год. Цены указаны за работу (материалы оплачиваются отдельно, если не оговорен подряд «под ключ»).

Демонтаж и вывоз: Снять старую плитку, унитаз, ванну, вынести мешки. От 12 000 до 18 000 руб.

Процесс ремонта квартиры. Проект Domeo
Процесс ремонта квартиры. Проект Domeo

Сантехника-черновые работы: Штробление стен под трубы, разводка канализации (32-я и 50-я труба), монтаж фитингов. От 20 000 руб.

Процесс ремонта квартиры. Проект Domeo
Процесс ремонта квартиры. Проект Domeo

Электрика: Прокладка кабеля до щитка, установка подрозетников, вывод под свет. От 8 000 до 12 000 руб.

Фото проекта с ремонтом от DOMEO
Фото проекта с ремонтом от DOMEO

Выравнивание (штукатурка): Стены под плитку должны быть без ям. Цена за м² около 500 руб. На стандартную ванную выходит 18 000–22 000 руб.

Фото проекта с ремонтом от DOMEO
Фото проекта с ремонтом от DOMEO

Стяжка пола: Обязательно с гидроизоляцией. Важно сделать бортики на стенах (загиб гидроизоляции вверх на 15–20 см). От 8 000 руб.

Процесс ремонта квартиры. Проект Domeo
Процесс ремонта квартиры. Проект Domeo

Укладка плитки: Самая затратная часть. На стены – от 1400 руб./м², на пол – от 1200 руб./м². Итого за площадь около 25 м² выйдет 35 000–45 000 руб.

Фото проекта с ремонтом от DOMEO
Фото проекта с ремонтом от DOMEO

Монтаж сантехники (чистовой): Установка ванны, унитаза, раковины, смесителей. От 20 000 руб. за комплект.

Установка мебели и аксессуаров: Зеркала, полки, штанги, пеналы. От 8 000 до 15 000 руб.

Проект Domeo
Проект Domeo
❗Важно! Прибавляйте к любой смете 15% на непредвиденные расходы. Вскрыли пол, а там труба гнилая? Или стена «пустая» – пришлось грунтовать в три слоя. Это жизнь.

Сложно разобраться самому в тонкостях ремонта? Оставьте решение сложных вопросов профессионалам! Вам сделать всего 2 простых шага👇

-15
1. Заранее узнайте стоимость вашего ремонта в 3-х вариантах. Бесплатно рассчитайте тут: ✅ domeo.ru/remont
2. Выбрать подходящего дизайнера для визуализации своих идей! Бесплатно выберите своего дизайнера здесь: ✅ domeo.ru/design
-16

Не пытайтесь угадать стоимость ремонта по фотографиям в Pinterest. То, что выглядит как «просто серая плитка», на деле оказывается итальянским керамогранитом по 5–7 тысяч за квадрат и работой плиточника с соответствующими запросами. Составляйте смету последовательно: черновые материалы, плитка, сантехника, мебель, работа. И только потом принимайте решение!

Подписывайтесь на канал, чтобы своими глазами увидеть, как делают ремонт профи!

Читайте еще на канале:👇