Добавить в корзинуПозвонить
Найти в Дзене
ДОМ с умом

Проект "Виталина"

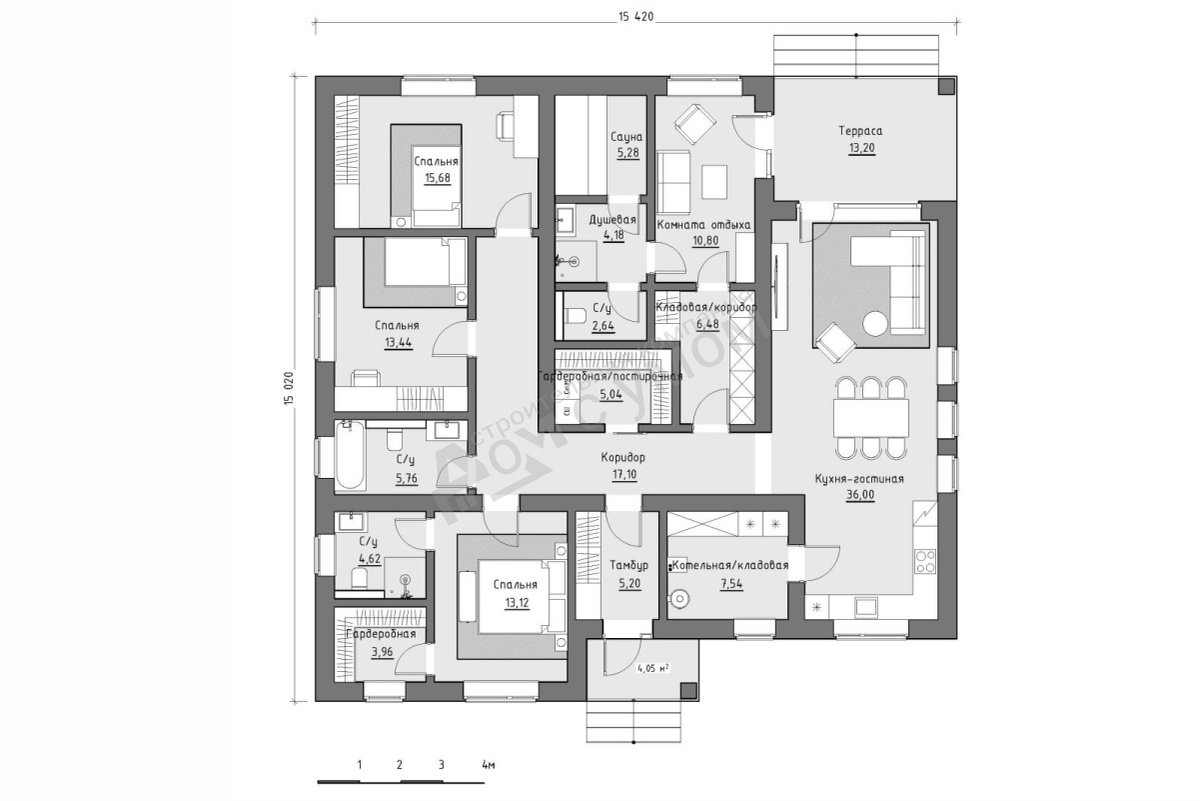
Это стильный коттедж для семьи с 3 детьми. Большая площадь личных пространств, грамотное зонирование, собственный банный комплекс - все это сделает комфортным ежедневный быт. Общая площадь - 170 кв.м
Жилая площадь - 156,8 кв.м
Габариты - 15 х 15,4 м
Фундамент: монолитная железобетонная плита
Стены: газобетонный блок 400 мм, утеплитель 50 мм
Отделка фасада: штукатурка и планкен
Чердачное перекрытие - по деревянным балкам
Крыша - из металлочерепицы по деревянной стропильной системе Планировка: Планировка дома включает просторную кухню-гостиную с выходом на террасу, три спальни комфортной площади, одна из которых мастер-спальня, гардеробную, кладовую, три санузла и котельную. Фишка дома - собственная спа-зона, включающая в себя сауну, душевую и комнату отдыха. 📌Жилая площадь – 156,8 кв.м
📌Кухня-гостиная – 36 кв.м
📌Спальни – 3 шт.
📌Терраса – 13,2 кв.м

Это стильный коттедж для семьи с 3 детьми. Большая площадь личных пространств, грамотное зонирование, собственный банный комплекс - все это сделает комфортным ежедневный быт.

Характеристики:

Общая площадь - 170 кв.м
Жилая площадь - 156,8 кв.м
Габариты - 15 х 15,4 м
Фундамент: монолитная железобетонная плита
Стены: газобетонный блок 400 мм, утеплитель 50 мм
Отделка фасада: штукатурка и планкен
Чердачное перекрытие - по деревянным балкам
Крыша - из металлочерепицы по деревянной стропильной системе

Планировка:

Планировка дома включает просторную кухню-гостиную с выходом на террасу, три спальни комфортной площади, одна из которых мастер-спальня, гардеробную, кладовую, три санузла и котельную. Фишка дома - собственная спа-зона, включающая в себя сауну, душевую и комнату отдыха.

-2

📌Жилая площадь – 156,8 кв.м
📌Кухня-гостиная – 36 кв.м
📌Спальни – 3 шт.
📌Терраса – 13,2 кв.м