Найти в Дзене

Двушка 68 м² со спокойным гармоничным интерьером для супружеской пары

Этот интерьер я разрабатывала для замечательной пары, чьи дети уже выросли и живут своей жизнью. Теперь основное пространство квартиры предназначено для них двоих, но, конечно, я учла, что иногда будут приезжать гости, дети или внуки, и важно было предусмотреть для них комфортные места. Адрес: ЖК Зиларт Кол-во комнат: 2 Площадь: 68 м² Стиль: современный Листайте галерею, посмотрите, как выглядит планировка с расстановкой мебели.👇 В интерьере заказчикам хотелось лёгкости, современного звучания и при этом присутствия цвета. Не броского и не кричащего, а такого, который добавляет настроения, но не перегружает пространство. Я искала оттенки, которые будут работать акцентами, оставаясь при этом спокойными и гармоничными. В основе - пастельные оттенки светло-розового и бежевого: они создают мягкую и уютную атмосферу. Центральным элементом стал встроенный стеллаж с открытыми полками. На верхних мы разместили книги и декор - для настроения, а нижние отвели под обувь, чтобы всё нужное было под
Оглавление

Этот интерьер я разрабатывала для замечательной пары, чьи дети уже выросли и живут своей жизнью. Теперь основное пространство квартиры предназначено для них двоих, но, конечно, я учла, что иногда будут приезжать гости, дети или внуки, и важно было предусмотреть для них комфортные места.

Текст помогла составить дизайнер компании Domeo
Текст помогла составить дизайнер компании Domeo

О проекте:

Адрес: ЖК Зиларт
Кол-во комнат: 2
Площадь: 68 м²
Стиль: современный

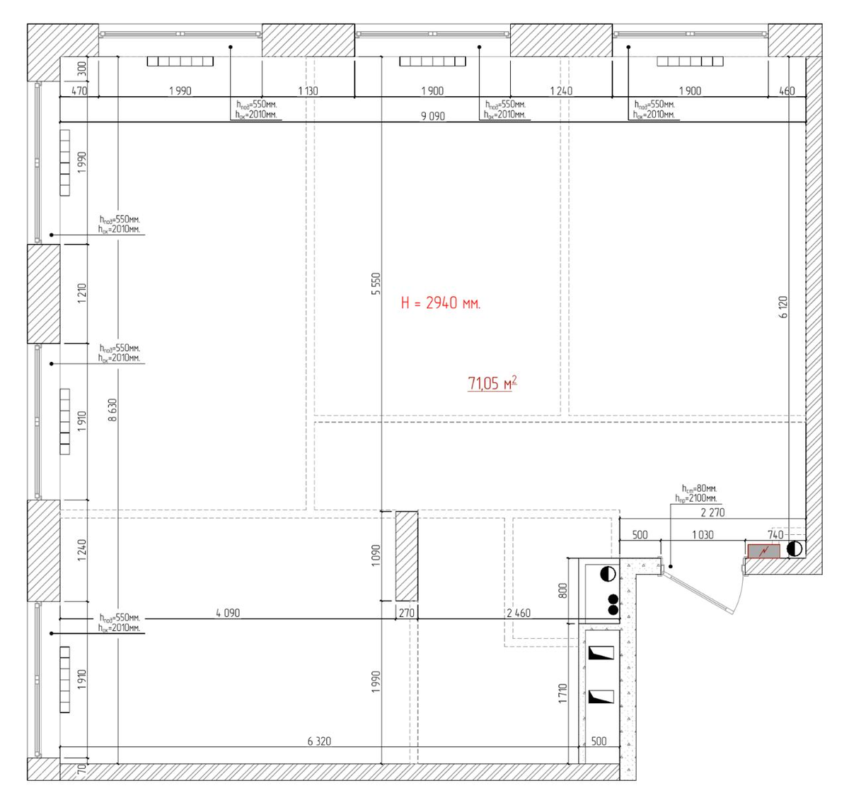
Планировка квартиры

Листайте галерею, посмотрите, как выглядит планировка с расстановкой мебели.👇

В интерьере заказчикам хотелось лёгкости, современного звучания и при этом присутствия цвета. Не броского и не кричащего, а такого, который добавляет настроения, но не перегружает пространство. Я искала оттенки, которые будут работать акцентами, оставаясь при этом спокойными и гармоничными.

ПРИХОЖАЯ

В основе - пастельные оттенки светло-розового и бежевого: они создают мягкую и уютную атмосферу.

Фото проекта с ремонтом от DOMEO
Фото проекта с ремонтом от DOMEO

Центральным элементом стал встроенный стеллаж с открытыми полками. На верхних мы разместили книги и декор - для настроения, а нижние отвели под обувь, чтобы всё нужное было под рукой, но не создавало беспорядка.

Фото проекта с ремонтом от DOMEO
Фото проекта с ремонтом от DOMEO

Слева предусмотрели вешалку для верхней одежды, справа - небольшой пуф, на котором так удобно переобуваться. Светлый пол поддержал общую воздушную гамму, а живое растение в углу добавило свежести и природного уюта.

Фото проекта с ремонтом от DOMEO
Фото проекта с ремонтом от DOMEO

Хотите дизайнерский интерьер?👇

-6

Точную стоимость всего ремонта, вы можете получить в этом калькуляторе Domeo -> https://domeo.ru/remont

КАЛЬКУЛЯТОР

КУХНЯ-ГОСТИНАЯ

Кухня-гостиная спроектирована как единое светлое пространство, где удобно и готовить, и отдыхать. За основу взят белый и светло-серый - они визуально расширяют комнату и наполняют её воздухом.

-7

А бирюзовые акценты, которые появились в обивке стульев и декоре, добавили интерьеру свежести и лёгкости, не перегружая его.

Фото проекта с ремонтом от DOMEO
Фото проекта с ремонтом от DOMEO

Зоны я разделила мягко, без глухих перегородок.

Фото проекта с ремонтом от DOMEO
Фото проекта с ремонтом от DOMEO

Компактный круглый стол собрал вокруг себя обеденную группу, диван создал уютный уголок для отдыха, а встроенные шкафы позаботились о порядке - всё нужное под рукой, но ничего не бросается в глаза.

Фото проекта с ремонтом от DOMEO
Фото проекта с ремонтом от DOMEO

Особое внимание уделила освещению: подвесные светильники с геометричными формами поддержали современный стиль и добавили графичности.

А завершили образ цветочные композиции и пастельный текстиль - они сделали интерьер по-настоящему тёплым и живым.

Фото проекта с ремонтом от DOMEO
Фото проекта с ремонтом от DOMEO

ГОСТЕВАЯ СПАЛЬНЯ

Эта гостевая спальня создана для того, чтобы гости чувствовали себя желанными и окружёнными заботой. Светлая гамма наполняет комнату воздухом и спокойствием, а мягкий диван располагает к отдыху после долгой дороги.

Фото проекта с ремонтом от DOMEO
Фото проекта с ремонтом от DOMEO

Вдоль одной из стен я расположила шкаф с открытыми полками. На них нашли своё место книги и небольшие декоративные предметы - так комната выглядит жилой, но не перегруженной. Абстрактная картина на стене добавила интерьеру характера и художественной нотки.

Фото проекта с ремонтом от DOMEO
Фото проекта с ремонтом от DOMEO

Освещение продумано так, чтобы можно было создать разное настроение: стильная люстра даёт общий свет, а настенное бра - мягкий, приглушённый для вечернего чтения. Небольшой столик в углу с вазой сухоцветов завершает образ, добавляя пространству тепла и природной естественности.

Фото проекта с ремонтом от DOMEO
Фото проекта с ремонтом от DOMEO

Сколько стоит ремонт квартиры в 2026 году?👇

Точную стоимость всего ремонта, вы можете получить в этом калькуляторе Domeo -> https://domeo.ru/remont

КАЛЬКУЛЯТОР

СПАЛЬНЯ И ГАРДЕРОБНАЯ

Спальню я разделила на две функциональные зоны: основную и гардеробную. Основная зона предназначена для отдыха, поэтому мы сделали её в светлых тонах с использованием мягких, спокойных текстур.

Фото проекта с ремонтом от DOMEO
Фото проекта с ремонтом от DOMEO

Установила кровать с тканевым изголовьем светло-зелёного оттенка. Для освещения выбрали светильники с золотистыми деталями - они добавляют интерьеру завершённости.

Фото проекта с ремонтом от DOMEO
Фото проекта с ремонтом от DOMEO

Гардеробную зону я решила сделать контрастной, чтобы визуально отделить её от спальной части. Тёмные двери и светлая мебель создают выразительный и запоминающийся образ.

Фото проекта с ремонтом от DOMEO
Фото проекта с ремонтом от DOMEO

Чтобы пространство не казалось тесным, добавила зеркала - они визуально расширяют границы и добавляют света.

Фото проекта с ремонтом от DOMEO
Фото проекта с ремонтом от DOMEO

ВАННАЯ И САНУЗЕЛ

Ванная комната сделана максимально функциональной, но при этом визуально лёгкой. Для отделки стен и пола я выбрала светлую плитку - она визуально расширяет пространство и создаёт ощущение чистоты. Чтобы сэкономить место, установила компактную сантехнику: угловую раковину и подвесной унитаз.

Фото проекта с ремонтом от DOMEO
Фото проекта с ремонтом от DOMEO

Над стиральной и сушильной машинами предусмотрен встроенный шкаф - он позволяет хранить бытовую химию и принадлежности, не занимая лишнего объёма. Зеркало с подсветкой сделано не только для удобства, но и чтобы добавить света. Декор свели к минимуму - только самое необходимое.

Фото проекта с ремонтом от DOMEO
Фото проекта с ремонтом от DOMEO

В санузле я решила отойти от привычной светлой классики и сделать акцент на фактуре. Для стен выбрали плитку под бетон - она задаёт стильный фон и добавляет интерьеру характера. Серый цвет отлично работает в паре с белой сантехникой и тумбой: получается чистый, графичный контраст без лишней строгости.

Фото проекта с ремонтом от DOMEO
Фото проекта с ремонтом от DOMEO

Чтобы пространство не казалось холодным, добавила зелёные растения. Они смягчают бетонную текстуру и привносят в интерьер тепло и естественность. Освещение сделала мягким, с акцентом на зеркало, - так комнату наполняет уютный свет.

Фото проекта с ремонтом от DOMEO
Фото проекта с ремонтом от DOMEO
-24

Domeo советует начать свой ремонт с 2-х простых шагов:

1. Заранее узнайте стоимость вашего ремонта в 3-х вариантах. Бесплатно рассчитайте тут: ✅ domeo.ru/remont
2. Выбрать подходящего дизайнера для визуализации своих идей! Бесплатно выберите своего дизайнера здесь: ✅ domeo.ru/design
-25

Не хотите высказать свое мнение по поводу этого проекта в комментариях? Интересно узнать, что выдумаете.🧡

Секреты стильного ремонта – у нас! Подпишитесь на DOMEO и узнайте их первыми!

Смотрите больше наших проектов:👇