Найти в Дзене
Формула Ремонта

Насмотрятся Pinterest, как молодежь, потом локти кусают! 6 этапов ремонта, пропуск которых грозит проблемами и переделками

Если говорить честно, ремонт редко пугает сам по себе. Пугает неопределённость. С чего начать? Кому доверить? Что делать первым — стены или электрику? Именно в этот момент и совершается большинство ошибок: человек начинает реализовывать идеи без чёткой системы. Хороший ремонт начинается не с демонтажа и не с выбора плитки. Он начинается с понимания логики будущего пространства. И чем спокойнее и последовательнее вы выстроите последовательность шагов, тем меньше переделок и разочарований будет потом. Первое, что действительно стоит сделать, трезво посмотреть на свой образ жизни. Не на красивые картинки из интернета, не на тренды, а на реальные привычки. Сколько времени вы проводите дома? Нужен ли вам большой обеденный стол, или вы чаще ужинаете на кухонном острове? Работаете ли из дома? Планируете ли расширение семьи? Ответы на эти вопросы формируют планировку куда точнее любого дизайн-каталога. Интерьер — это не декорация. Это инструмент. И если его спроектировать без учёта повседневн
Оглавление

Если говорить честно, ремонт редко пугает сам по себе. Пугает неопределённость.

С чего начать? Кому доверить? Что делать первым — стены или электрику? Именно в этот момент и совершается большинство ошибок: человек начинает реализовывать идеи без чёткой системы.

Хороший ремонт начинается не с демонтажа и не с выбора плитки. Он начинается с понимания логики будущего пространства.

И чем спокойнее и последовательнее вы выстроите последовательность шагов, тем меньше переделок и разочарований будет потом.

6. Начните не со стен

Первое, что действительно стоит сделать, трезво посмотреть на свой образ жизни. Не на красивые картинки из интернета, не на тренды, а на реальные привычки.

Сколько времени вы проводите дома? Нужен ли вам большой обеденный стол, или вы чаще ужинаете на кухонном острове? Работаете ли из дома? Планируете ли расширение семьи? Ответы на эти вопросы формируют планировку куда точнее любого дизайн-каталога.

Интерьер — это не декорация. Это инструмент. И если его спроектировать без учёта повседневных процессов, он будет выглядеть эффектно, но жить в нём окажется неудобно.

-2

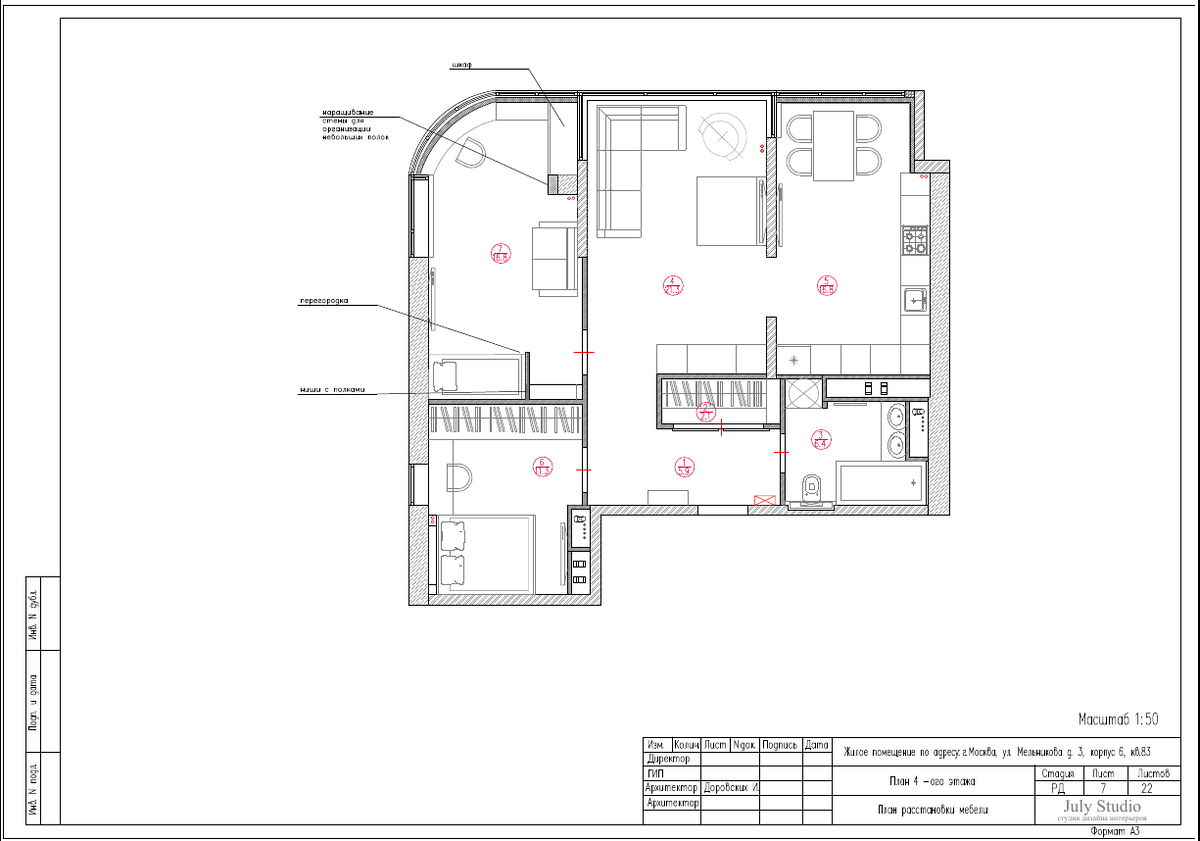
5. Планировка — фундамент

Цвет стен можно изменить за выходные. Расположение розеток — уже нет.

Поэтому до начала любых работ необходимо продумать расстановку мебели, сценарии освещения, расположение техники.

  • Сколько розеток потребуется на кухне? Где будет стоять зарядка для робота-пылесоса? Какой ширины должны быть проходы? Эти вопросы кажутся мелочами, но именно они формируют комфорт.

Когда планировка продумана заранее, пространство функционирует логично. Нет лишних движений, нет ощущения тесноты, нет постоянного раздражения из-за неудобных решений.

В нашем Телеграм-канале (нажмите) разобрали пример реальной квартиры со свободной планировкой — показали, как на 83 м² удалось грамотно разместить две детские, спальню родителей, кухню-гостиную и два санузла без ощущения тесноты.
-3

4. Хранение

На этапе пустых стен квартира кажется просторной. Но как только появляются вещи, пространство быстро заполняется.

Поэтому системы хранения нужно закладывать сразу: встроенные шкафы, ниши, продуманная организация гардеробных зон.

Когда хранение спроектировано заранее, интерьер остается аккуратным, а пространство лёгким.

И это не про эстетику ради эстетики. Это про удобство повседневной жизни.
-4

3. Бюджет

Следующий шаг — определить бюджет. Не ориентировочную сумму «примерно столько», а понятный диапазон. Это позволяет принимать решения без нервозности и резких компромиссов.

Мы всегда рекомендуем распределять средства осознанно. Инженерия, электрика, сантехнические узлы — это база, на которой держится весь ремонт.

Экономить здесь, значит закладывать риск будущих переделок. А вот отделочные детали, текстиль или декоративные элементы можно корректировать и выбирать бюджетнее (при необходимости).

Правильно спланированный бюджет убирает добрую часть тревоги.

Проблема стоимости ремонта в 2025-2026 является одной из наиболее популярных в последнее время. Мы долго думали и решили сформировать ПАМЯТКУ, в которой расписали:

  • во сколько обойдется базовый ремонт под сдачу при ограниченном бюджете;
  • сколько сейчас тратят те, кто хочет сделать дизайнерский ремонт;
  • на что обратить внимание, если вам озвучили стоимость работ ниже рыночной.

Чтобы получить ПАМЯТКУ, достаточно перейти в Телеграм и нажать кнопку «НАЧАТЬ». Специально для читателей Дзена мы сделали ответы автоматическими, никакие данные оставлять не нужно.

-5

2. Освещение

Очень часто свету уделяют внимание в последнюю очередь. А между тем, именно освещение задает настроение дому.

Мы рекомендуем продумывать освещение сценариями: общий свет, рабочий и акцентный. Тёплый свет делает зону отдыха уютной, направленный — помогает сосредоточиться, мягкая подсветка добавляет глубину интерьеру.

Грамотно спроектированная система освещения может визуально изменить пространство без перепланировки и дорогих материалов.

  • И это один из самых недооцененных инструментов на старте ремонта.
-6

1. Спешка

Есть еще один важный момент, о котором редко говорят. Ремонт — это процесс, где скорость почти всегда враг качества.

Иногда лучше потратить дополнительное время на согласование проекта, нежели исправлять поспешные решения.

Продуманная последовательность: проектирование, расчёты, подбор материалов, и только потом реализация.

-7

С чего начать ремонт в квартире? С понимания своих привычек. С точной планировки и продуманной инженерии. Всё остальное (цвет, фактуры, декор) логично подстраиваются под эти решения.

Когда подход выстроен грамотно, ремонт перестаёт быть испытанием. Он превращается в управляемый процесс создания пространства, в котором реально удобно жить.

Ставьте лайк и подписывайтесь на канал!