Найти в Дзене

Проект "На все времена" 180 м2 дома с гаражом на 2 авто и 3 спальнями из газосиликата

Этот проект, как и УАЗ "Буханка" уже идеален на столько, что в нём не надо на протяжении уже 100 лет, изобретать изменения и апгрейды. Проект поправлен на самый популярный формат газосиликатного блока 300х200х600 мм с облицовкой 1Нф. Такой гараж хорош, если у Вас большая и подвижная семья, чтобы там хранить горнолыжные комплекты, велосипеды, квадроциклы, лодки, ну и конечно автомобили. Всеми любимая вальмовая крыша из металлочерпицы. Автомобиль - для масштабности дома. Подсветка на террасе, как и по периметру дома играет важную роль.
Оглавление
3D Визуализация №1
3D Визуализация №1

Этот проект, как и УАЗ "Буханка" уже идеален на столько, что в нём не надо на протяжении уже 100 лет, изобретать изменения и апгрейды.

Проект поправлен на самый популярный формат газосиликатного блока 300х200х600 мм с облицовкой 1Нф.

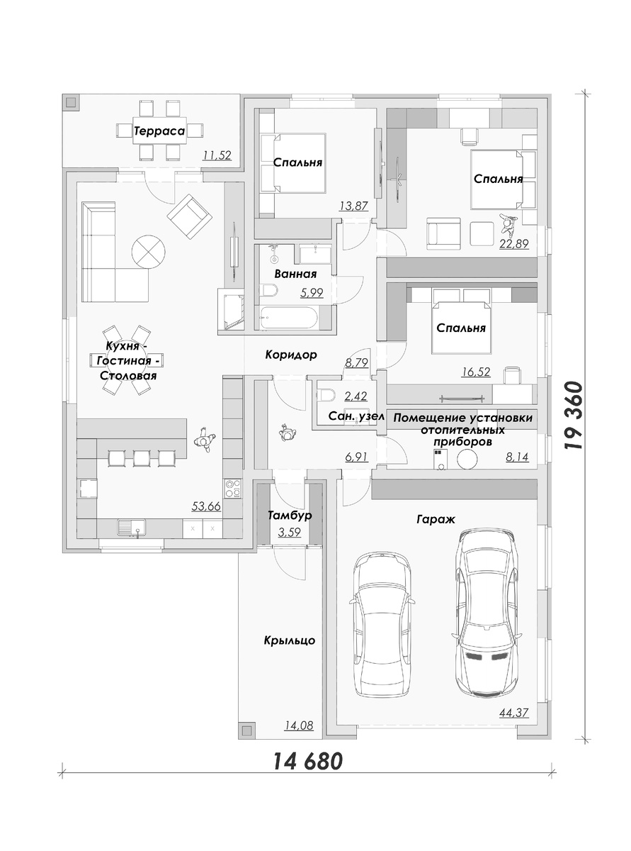
Планировка
Планировка

Такой гараж хорош, если у Вас большая и подвижная семья, чтобы там хранить горнолыжные комплекты, велосипеды, квадроциклы, лодки, ну и конечно автомобили.

3D Визуализация №2
3D Визуализация №2

Всеми любимая вальмовая крыша из металлочерпицы.

3D Визуализация №3
3D Визуализация №3

Автомобиль - для масштабности дома.

3D Визуализация №4
3D Визуализация №4

Подсветка на террасе, как и по периметру дома играет важную роль.

3D Визуализация №5
3D Визуализация №5

Для тех кто не знаком ещё до сих пор с нами.

У нас есть магазин на OZON и WB. Там по цене чашки кофе и половины эклера можно купить готовые, распечатанные проекты на формате А3 и плюс PDF.

Ссылки в комментариях оставляем.