Найти в Дзене
DIVAN.RU

Поп-арт, культовые комиксы и «Криминальное чтиво»: нестандартная семейная двушка 55 кв.м

Владельцы этой квартиры — молодые супруги, фанаты старого кино и поп-культуры. С дизайнером они сразу договорились: никаких бежевых стандартов, только яркий, харизматичный интерьер. Посмотрим, что получилось. Объект: двухкомнатная квартира 55 кв.м в ЖК «Нагатино Ай-Ленд», г. Москва (потолки 3,6 м) Автор проекта: дизайнер Екатерина Мищенко, руководитель студии EmiHome; автор фото: Михаил Чекалов «Эта квартира создавалась для семьи врачей с одним ребенком и перспективой пополнения, — делится дизайнер. — Интерьер выполнен в современном стиле с элементами поп-арта, вдохновленного эстетикой комиксов и фильмов 90-х, что проявилось в графике и неоновых акцентах. Цветовая палитра контрастна, но гармонична: в кухонной зоне преобладают терракотовый, голубой и лимонный на сером фоне; спальня оформлена в глубоких синих и пудрово-розовых тонах; детская комната наполнена светлыми и солнечными оттенками; а ванная комната выделяется желтым потолком и насыщенным синим акцентом». Квартира была передана
Оглавление

Владельцы этой квартиры — молодые супруги, фанаты старого кино и поп-культуры. С дизайнером они сразу договорились: никаких бежевых стандартов, только яркий, харизматичный интерьер. Посмотрим, что получилось.

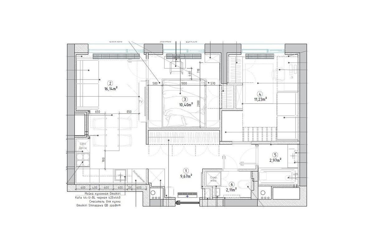
Объект: двухкомнатная квартира 55 кв.м в ЖК «Нагатино Ай-Ленд», г. Москва (потолки 3,6 м)

Автор проекта: дизайнер Екатерина Мищенко, руководитель студии EmiHome; автор фото: Михаил Чекалов

«Эта квартира создавалась для семьи врачей с одним ребенком и перспективой пополнения, — делится дизайнер. — Интерьер выполнен в современном стиле с элементами поп-арта, вдохновленного эстетикой комиксов и фильмов 90-х, что проявилось в графике и неоновых акцентах. Цветовая палитра контрастна, но гармонична: в кухонной зоне преобладают терракотовый, голубой и лимонный на сером фоне; спальня оформлена в глубоких синих и пудрово-розовых тонах; детская комната наполнена светлыми и солнечными оттенками; а ванная комната выделяется желтым потолком и насыщенным синим акцентом».

Пожелания заказчиков

  • Яркий, позитивный дизайн.
  • Детская на двоих.
  • Просторная кухня-гостиная для общения в кругу семьи и друзей.
  • Спальня с зоной для работы.
  • Максимум скрытых мест для хранения.

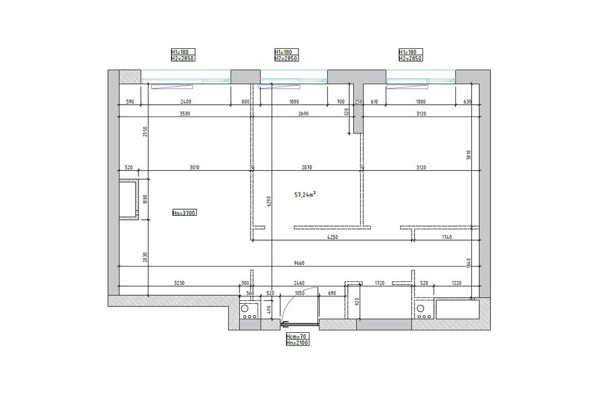
Планировочное решение

Квартира была передана жильцам на этапе черновой отделки, без внутренних перегородок. Планировку от застройщика скорректировали: появились встроенные ниши для хранения, туалет расширили и объединили с постирочной. В спальне и детской возвели вторые ярусы. Зонирования добились за счет цветовых акцентов, освещения и разных уровней потолка.

«Многоуровневый подход стал незаменимым инструментом для функционального зонирования в условиях ограниченного пространства, — отмечает автор проекта. — В спальне это позволило выделить отдельный кабинет на первом уровне, а в детской — обустроить полноценную игровую зону».

Кухня-гостиная

Зоны готовки и отдыха разделены за счет продуманного цветового решения: терракота, голубой и лимонный создают динамичные акценты, а серый фон служит «успокаивающей» основой, который объединяет пространство.

Угловой кухонный гарнитур спроектировали до потолка. Фартук из керамогранита под мрамор визуально углубляет комнату. Вся бытовая техника встроена, а обилие систем хранения обеспечивает порядок на рабочих поверхностях.

Обратите внимание на двухуровневый потолок из гипсокартона. Радиусы скругления строителям пришлось вымерять в несколько итераций. Интегрированная подсветка позволяет создавать разнообразные световые сценарии.

Стены квартиры в основном окрашены. Для создания акцентов использовали художественную роспись: в гостиной это графичные линии, плавно перетекающие из ТВ‑зону на шкаф в прихожую. В зоне отдыха внимание привлекает постер, который вдохновлен фильмом «Криминальное чтиво».

Диван Сваут от divan.ru выбрали за лаконичную геометрию, удобную посадку и широкий выбор обивок. в  онлайн-конструкторе.
Диван Сваут divan.ru
Диван Сваут divan.ru

➡️Товары бренда divan.ru

Спальня

Для отдыха хозяев предусмотрена двухуровневая комната. Первый «этаж» служит кабинетом с откидным столом и диваном, а на втором обустроена спальня. Выделить отдельную гардеробную в квартире не удалось. Проблему решили другим способом. При возведении перегородок выстроили ниши между детской и спальней, в которых разместили встраиваемые шкафы.

-6

Основные цвета спальни — насыщенный синий и сложный розовый. Арт-акцентом интерьера стал силуэт Бэтмена, расположенный за диваном.

Несмотря на терракотовый цвет, потолок не кажется громоздким; он скорее способствует созданию приятной, уютной атмосферы.
-7

Обратите внимание на неоновую вывеску (она в галерее ниже). Этот художественный объект был специально разработан, чтобы служить эмоциональным ориентиром и задавать настроение комнате.

Детская комната

Двухуровневая детская спроектирована с расчетом на будущее пополнение в семье. Здесь есть место для дополнительной кровати, а встроенные шкафы в нише обеспечат достаточно места для хранения детских вещей.

Обратите внимание: мини-скалодром и сетка на втором ярусе — это то, что превращает комнату в полноценное игровое пространство.

Рабочее место оборудовали у окна: письменный стол с тремя ящиками и перфопанель для регулируемых полок.

➡️Товары бренда divan.ru

Ванная и туалет

Раздельный санузел продолжает цветовую линию квартиры. Ярко-желтый потолок перекликается с мебельными фасадами и экраном, а стены выполнены в сложном темно-синем.

В туалете предусмотрен встроенный шкаф для маскировки стиральной машины. Зона над инсталляцией оформлена овальной плиткой, а на стене размещен постер с морской тематикой.

Прихожая

Главным визуальным элементом прихожей является трехметровый шкаф, фасады которого декорированы поп-арт портретами хозяев.

☀️ Природа ждет тепла, а ваш дом — ярких красок и уюта. Все для солнечного настроения ждет в подборке со скидками до 45% на divan.ru >>

-13

============================

Оцените интерьер в комментариях, а если материал понравился — не забудьте поставить лайк👍

🖤divan.ru — не только блог про интерьеры, но и производитель доступной дизайнерской мебели. Ищите новые идеи и переходите на сайт, чтобы воплотить их в жизнь.