Найти в Дзене

↪ PROJECT FOREST — изнутри

Планировка организована вокруг открытых и закрытых пространств, плавно перетекающих друг в друга. Гостиная и кухня выходят на просторную террасу с зоной отдыха и бассейном, а приватные комнаты скрыты в глубине дома. Такое решение создает баланс: здесь легко быть наедине с природой, сохраняя все удобства современного жилья. Проект: #forest_archdepo

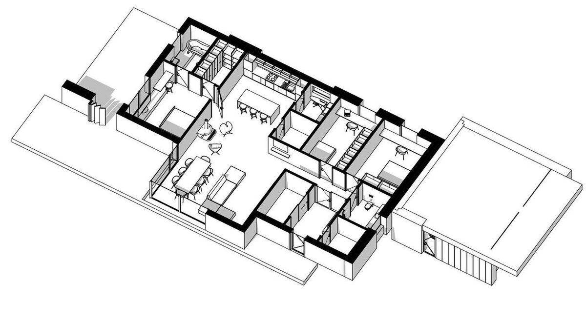
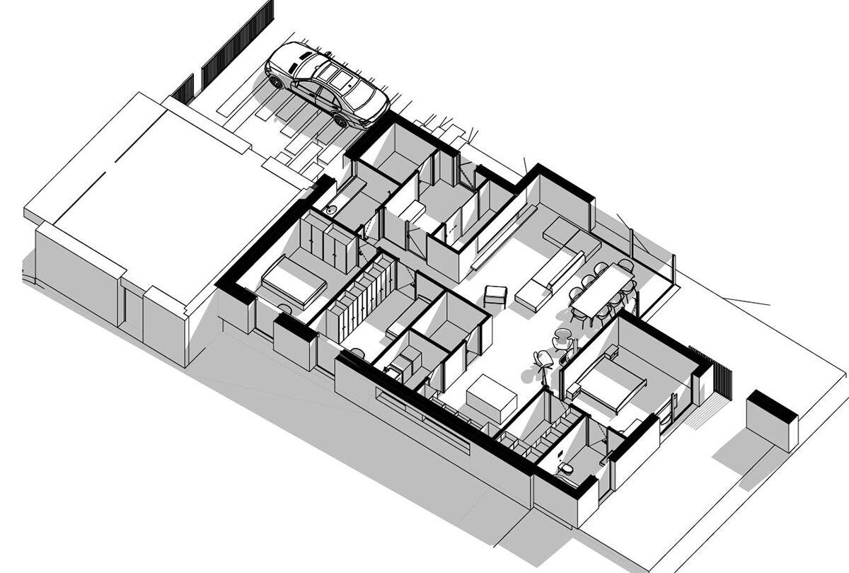
↪ PROJECT FOREST — изнутри

Планировка организована вокруг открытых и закрытых пространств, плавно перетекающих друг в друга.

Гостиная и кухня выходят на просторную террасу с зоной отдыха и бассейном, а приватные комнаты скрыты в глубине дома.

Такое решение создает баланс: здесь легко быть наедине с природой, сохраняя все удобства современного жилья.

Проект: #forest_archdepo

-2