Найти в Дзене
Лживый мир.

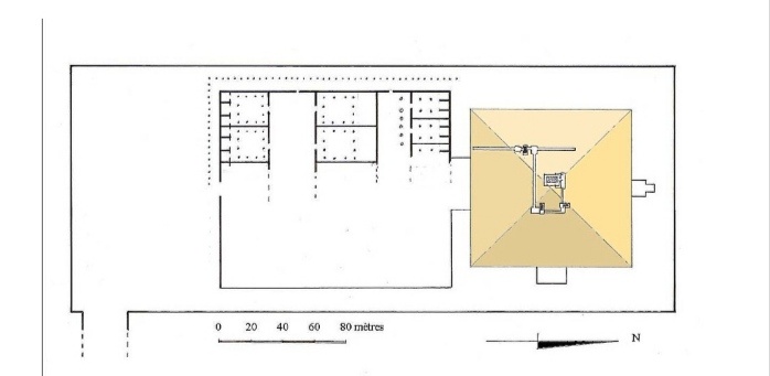
Лабиринт Хавара.

Египетский «лабиринт» представлял собой сооружение сложной планировки, о его назначении ничего не известно.
Хавара — это археологический памятник расположенный к югу от Крокодилополя (Арсинои, также известного как Мединет-эль-Файюм) у входа в котловину Файюмского оазиса.
Поскольку сооружение было разрушено в глубокой древности, его вид можно восстановить лишь частично.
Весь комплекс

Египетский «лабиринт» представлял собой сооружение сложной планировки, о его назначении ничего не известно.

Хавара — это археологический памятник расположенный к югу от Крокодилополя (Арсинои, также известного как Мединет-эль-Файюм) у входа в котловину Файюмского оазиса.

Поскольку сооружение было разрушено в глубокой древности, его вид можно восстановить лишь частично. 

-2

Весь комплекс предположительно был окружен стеной, ориентированной с севера на юг, длина которой составляла 385 метров, а ширина — 158 метров, а площадь самого лабиринта — около 28 000 метров в квадрате.

Классические описания, сделанные разными авторами, не согласуются друг с другом, из-за того, очень давно сооружение пришло в упадок.

Ошибки связаны с тем, что авторы не видели сооружение своими глазами.

Никто не знает в какой-то момент в древности «лабиринт» был разобран.

Через предполагаемое место расположения «лабиринта» в Хаваре был прорыт канал (Бахр-Шаркийя, также известный как Бахр-Сейлах).

 В 1900–1907 годах поверх Бахр-Шаркийи был построен новый канал (Бахр-Абдул-Вахби), что нанесло дополнительный ущерб этому месту.

Последним, кто провел официальное исследование лабиринта в Хаваре, был британский египтолог Флиндерс Петри.

-3

Сэр Уи́льям Мэ́ттью Фли́ндерс Пи́три (3 июня 1853,Чарлтон, Кент —

 28 июля 1942, Иерусалим, 

Подмандатная Палестина) — британский археолог, считается одиним из основоположников современной египтологии, профессор археологии Лондонского университетского колледжа (в 1892—1933), член Лондонского королевского общества (1902) и Британской академии (1904),

 рыцарь-бакалавр (1923).

Необоснованно связывал археологические культуры и «расы», борьбой которых объяснял ход исторического прогресса.

Не имевший даже школьного образования Флиндерс Питри известен огромным количеством «открытий».

Слабым местом Флиндерса Питри всю жизнь оставалось отсутствие хоть каких-то языковых навыков.

Он опираться опыт лжеца Генриха Шлимана.

Человек с лопатой Генрих Шлиман - «герой научного аферизма».
Лживый мир.16 июня 2023

Питт-Риверс был богат, поэтому вопросы финансирования публикаций его не беспокоили.

Флиндерс Питри находится у истоков создания лживой хронологии древнеегипетской цивилизации.

Критическая оценка деятельности Ф. Питри как полевого археолога и лживого интерпретатора находок запоздала из-за многолетнего прославления.

По имеющимся сведениям, во время раскопок Петри удалось обнаружить то немногое, что осталось от фундамента, среди «огромного слоя щебня», хотя его исследования, говорят, в итоге были прерваны из-за нехватки ресурсов?

После исследования, проведенного Петри в начале XX века, масштабных раскопок в лабиринте не проводилось. 

Высокий уровень грунтовых вод поставил под угрозу сохранность этого места и помешал дальнейшим исследованиям.

После исследования, проведенного Петри в начале XX века, масштабных раскопок в лабиринте не проводилось. 

Однако в некоторых проектах для изучения этого места использовались неразрушающие методы, в том числе геофизическая визуализация. 

Используя метод сверхнизкочастотного электромагнитного сканирования.

Исследования обнаружили возможные свидетельства наличия «подземных археологических остатков» на месте, где когда-то находился лабиринт, хотя исследователи отметили, что необходимы дальнейшие раскопки для подтверждения.

В общем одни домыслы.

Явление Египта внезапно.
Лживый мир.8 декабря 2022

Отцы Египтологии.
Лживый мир.14 мая 2024