Найти в Дзене

Планируем новые заезды

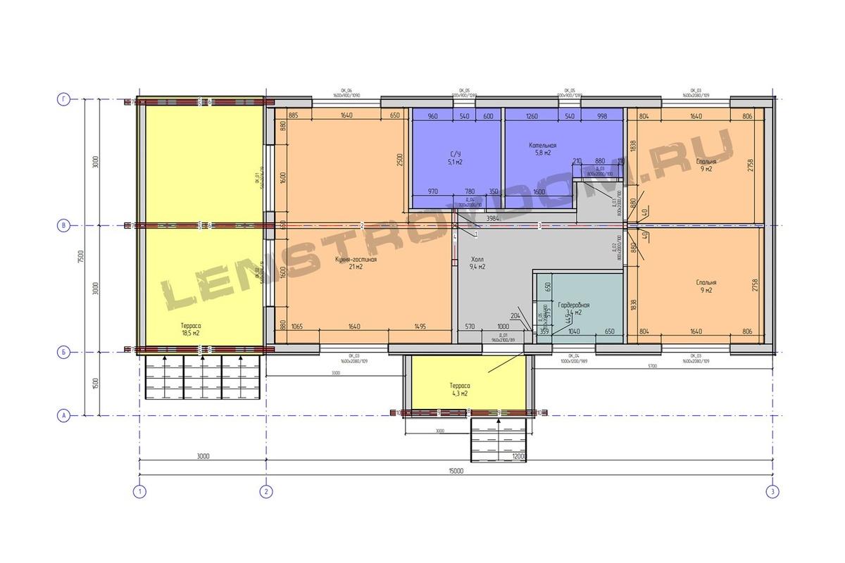
На строительство такого шикарного дома по проекту Scandi M планируем заезжать в ближайшее время в СНТ «Радуга», Ленинградская область. Общий размер дома 15х6 м, жилая основа 12х6 м + терраса 3х6 м. Из помещений в доме предусмотрены кухня-гостиная, две спальни, совмещенный СУ, котельная, гардеробная и холл. За процессом строительства можно следить по тегу #радуга_scandi #ленстройдом #каркасныедома #радуга_scandi lenstroydom.ru +7 (812) 408-30-08 скандимини.рф +7 (812) 504-80-80 clck.ru/3Q8fnK

Планируем новые заезды. На строительство такого шикарного дома по проекту Scandi M планируем заезжать в ближайшее время в СНТ «Радуга», Ленинградская область.

Общий размер дома 15х6 м, жилая основа 12х6 м + терраса 3х6 м.

Из помещений в доме предусмотрены кухня-гостиная, две спальни, совмещенный СУ, котельная, гардеробная и холл.

За процессом строительства можно следить по тегу #радуга_scandi

#ленстройдом #каркасныедома #радуга_scandi

lenstroydom.ru

+7 (812) 408-30-08

скандимини.рф

+7 (812) 504-80-80

clck.ru/3Q8fnK

-2
-3
-4