Добавить в корзинуПозвонить
Найти в Дзене
Пикабу

Квартира Катерины Тихомировой тогда и сейчас

Читатели нередко просят рассказать о квартирах, которые показывают в известных фильмах. На моём канале вы можете найти статьи, посвященные кабинету Калугиной, её квартире, квартире Юрия Самохвалова, квартире Нади Шевелёвой, комнате Гоги, он же Гоши. И сегодня мы поговорим о квартире главной героини фильма "Москва слезам не верит" Катерины Тихомировой. Катя Тихомирова приехала в Москву в далёком 1958 году. В институт не поступила, пришлось устроиться на завод наладчицей. И не повезло ей встретиться с Рудольфом, забеременеть от него и стать матерью-одиночкой. Хотя как знать - вполне возможно, что если бы семейная жизнь Катерины складывалась бы удачно, как положено - институт, свадьба и только потом беременность и ребенок, то так и закисла бы она в каком-нибудь отделе лёгонькой промышленности. А тут вон, аж директором стала. К счастью для Катерины, её карьера была более удачной, чем личная жизнь. Она получила квартиру, видимо, сначала однушку, а позднее, по мере служебного роста, уже двух

Читатели нередко просят рассказать о квартирах, которые показывают в известных фильмах. На моём канале вы можете найти статьи, посвященные кабинету Калугиной, её квартире, квартире Юрия Самохвалова, квартире Нади Шевелёвой, комнате Гоги, он же Гоши. И сегодня мы поговорим о квартире главной героини фильма "Москва слезам не верит" Катерины Тихомировой.

Катя Тихомирова приехала в Москву в далёком 1958 году. В институт не поступила, пришлось устроиться на завод наладчицей. И не повезло ей встретиться с Рудольфом, забеременеть от него и стать матерью-одиночкой. Хотя как знать - вполне возможно, что если бы семейная жизнь Катерины складывалась бы удачно, как положено - институт, свадьба и только потом беременность и ребенок, то так и закисла бы она в каком-нибудь отделе лёгонькой промышленности. А тут вон, аж директором стала.

К счастью для Катерины, её карьера была более удачной, чем личная жизнь. Она получила квартиру, видимо, сначала однушку, а позднее, по мере служебного роста, уже двухкомнатную, причем не в обычной панельке, а в престижном доме на Мосфильмовской улице. Это дом 11 корпус 2. Он стоит по этому адресу до сих пор, фанаты фильма частенько приезжают сюда, чтобы прикоснуться, так сказать, к истории и сфотографироваться на фоне дома. Вот об этой квартире мы и поговорим.

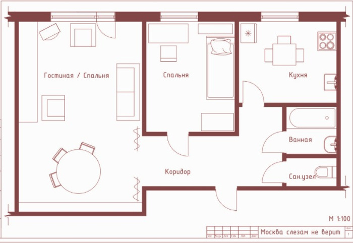
Эта квартира не то чтобы элитная в то время, но и не рядовая. Нечто среднее. Мы практически такую же получили в 1987-м в обычном панельном доме, и она считалась квартирой улучшенной планировки. Только у нас была угловая и в большой комнате на длинной стене было еще одно окно+балконная дверь. Вот её планировка:

.
.

Планировка, в общем-то, традиционная для советских квартир: длинный коридор-пенал буквой Г, справа кухня, а на подходе к ней - как водится, санузлы. Вообще это, конечно, прекрасная советская традиция - размещать санузлы в непосредственной близи от кухни. Ну ванная комната ещё куда не шло, а вот туалет... Многие же на кухне не только готовили, но и питались. Сидишь, борщ хлебаешь, а из-за стенки различные специфические звуки раздаются и ароматы совсем не кухонные. Ну ничего не попишешь.

Общая площадь этой квартиры 41-42 квадратных метра. Маленькая комната 12 метров, большая 17, кухня примерно 8. Для 80-х годов роскошь, ведь многие тогда получали микроскопические квартирки с кухней 4 метра. Это при Горбачеве эта планировка стала доступна простым гражданам.

Что же интересного есть в квартире Катерины? Начнём с кухни. В ней стоит самый обычный кухонный гарнитур отечественного производства. Ничего фантастического. Но, возможно, Катерина получила квартиру недавно и ещё не успела приобрести что-то более престижное.

-3

Шторки бледно-апельсинового цвета страшненькие. Лично мне напоминают фартуки советских продавщиц. Какой-нибудь нейлон. Подобраны, кстати, в цвет обоев. Зато, если присмотреться, то на стене справа от входа, там, где рабочая зона, можно заметить цветной кафель:

-4

Это дорогущий чешский кафель. У моей соседки был точно такой же. Доставала она его в 1987 году по очень большому блату и за очень большие деньги. Зато потом было чем похвастаться перед соседями. Над плитой мы видим крутую по тем (да и по этим) временам вытяжку с подсветкой. А вот чайник на плите самый обычный эмалированный, какой имелся в каждой советской семье. Дань современной моде - маленький телевизор "Юность" на столешнице. Это старая модель, у которой каналы переключались круглой "вертушкой", а не кнопками. Был символом состоятельности и продвинутости, этакий кусочек Западной жизни. Позволить себе второй телевизор могли далеко не все. И старинное кресло в углу. Кажется, Катерине передалась от дядюшки любовь к антиквариату.

-5

Неизменно, в основном благодаря супнице, обращает на себя снимание столовый сервиз. Это супница, тарелки, чашки с блюдцами и большой чайник. Очевидно, что покупка недешёвая. Это вам не Дулёво какое-то и даже не ЛФЗ. Боюсь ошибиться, но по-моему, что гдровское. А может даже и ещё круче. Я нашла в сети чайник точно такой же формы и с очень похожим рисунком. Было написано, что он японского производства. Сервиз в любом случае не дешёвый, но он не стоит за стеклом в качестве показателя уровня достатка хозяйки. Им пользуются. В 70-е и 80-е годы была такая фишечка: вся посуда на столе должна быть одномастной. Из одного набора. Это сейчас мы хватаем первую попавшуюся кружку. А в СССР очень ценились цельные сервизы, чайные пары. Это был советский идеал сервировки. Это считалось правильно и круто.

В прихожей тоже ничего особенного. Разве что обои "под плетеночку" - такие были редкостью. В СССР обои в основном имели геометрический рисунок. Видны двери в туалет и ванную, тоже самые примитивные, без изысков. Напротив входной двери зеркало с ящичком, рядом светильник с красно-оранжевым абажуром, красный телефон на ящичке, а на входной двери в большую комнату по старинке висят портьеры, тоже красно-оранжевого цвета. Хозяйка квартиры питает слабость к ярким теплым "апельсиновым" тонам, в её квартире много оранжевых и красных предметов. Вот и в авоське у неё апельсины. Возможно, это подсознательная попытка ослабить стресс, в котором она находится.

-6

Комната дочери. Саша живёт в отдельной комнате, где есть всё, что необходимо юной девушке, живущей в самом конце 70-х годов. Само по себе то, что у неё отдельная комната - большая удача. Единицам так везло. Обои у неё светлые "под мрамор", и это верное решение - светлые обои зрительно увеличивают комнату. Справа от двери кровать, в изголовье которой стоит стеллаж с самыми необходимыми предметами: большим катушечным магнитофоном и книгами - чтобы было можно дотянуться, не вставая с кровати. Две лампы - одна на кронштейне над кроватью, вторая настольная, обе - та-дам! - в красных тонах. И даже свой собственный телефон для личной болтовни - тоже красный. У окна письменный стол.

-7

У противоположной стены полированная светлая стенка, в которой юное дарование хранит одежду и личные вещи. На полу старенький паркет - он замтено истерт. И обратите внимание на директорское кресло, в котором покоится тушка Александры. Солидное кресло. Уж не маменька ли списанное с работы приволокла? Но в целом обстановка в комнате довольно простая, без выпендрёжа, хотя вещи качественные.

-8

Гостиная, она же комната Катерины.

-9

Опять же бросается в глаза большое количество предметов в красно-оранжевых тонах: торшер, занавески, подушка на кресле, что-то оранжевое на столе справа. У стены слева дефицитная югославская стенка, в которой видна недешевая и наикрутейшая радиола "Эстония-стерео", совмещавшая в себе радиоприемник и проигрыватель для виниловых пластинок. Стоила такая "игрушка" около 600 рублей. Такая же стояла в квартире Людмилы Прокофьевны Калугиной. Гарнитур мягкой мебели - раскладной двуспальный диван и два кресла. Их расцветка и рисунок удивительным образом перекликаются с обоями из Гошиной комнатухи.

-10

На столе у дивана стоит портативный транзисторный приемник "Сокол", в просторечии транзистор. Он выпускался в кожаном чехле черного и коричневого цветов. У нас был точно такой же. Работал от батареек и от сети.

А вот телевизор у Катерины новый, дорогой. Это полупроводниковый-полуламповый цветной "Горизонт-723". Его фишечка - акустическая система под самим телевизором. И ближе к зрителю - раскладной круглый стол. Такие были в каждой семье на случай гостей.

И последний и очень интересный момент. Катерина так любит творчество Михаила Врубеля, особенно его картину "Демон сидящий", что у неё в квартире их аж 2 штуки: одна в прихожей на циновке:

-11

А вторая в большой комнате рядом с книжным шкафом:

-12

Вот это я понимаю - любовь к искусству!)))

Квартира Катерины Тихомировой представляет собой некое переходное состояние от статуса рядового советского гражданина к статусу элиты. В её квартире много обычных вещей, но имеются и статусные, дорогие и дефицитные. Это пока она директорствует только пару месяцев и ещё не использовала все открывшиеся возможности своего положения.

Как уже было сказано выше, этот дом стоит на Мосфильмовской и сейчас. В 2019 году квартира, в которой проходили съемки, была выставлена на продажу. Новый владелец сделал в ней ремонт в соответствии с требованиями современной моды: использовал современные материалы и современную мебель. Но самое главное - автор проекта снёс большую часть перегородок, объединив маленькую комнату с кухней. Вот так выглядит эта квартира сейчас:

-13

Вид от кухни.

Вот так сейчас выглядит большая комната:

-15

Окно с выходом на балкон на месте и увеличено до пола, рама заменена на пластиковую, лоджия застеклена тоже пластиковой рамой. Из комнаты исчез большой круглый стол, вся мебель заменена на современную, лично мне очень понравилась прикроватная тумбочка, выполненная "под старину" - напоминает старинный сундук или фанерный, обшитый кожей чемодан - такие были в ходу годов до 60-х, этакий привет истории и фильму - ведь с таким чемоданом Катерина приехала в Москву искать счастья.

Полагаю, что и той старой югославской стенки тоже нет, там, видимо, что-то более современное, соответствующее дизайну всего помещения.

Впечатляет огромная кровать, думаю, что 2х2 метра.

Какой вариант вам больше нравится?

Другие статьи о фильме "Москва слезам не верит" вы можете почитать здесь.

П.С. Сердечное вам мерси за донатики от моих котикофф!

Пост автора Kinodom.

Читать комментарии на Пикабу.