Найти в Дзене
ЗАХОДИ ЕСЛИ СТРОИШЬ

Сколько СТОИТ монолитная фундаментная ПЛИТА? Подсчёт материалов. ЦЕНЫ 2026 года.

Фундаментная плита имеет ряд преимуществ. Во-первых, это надежное основание для капитального дома, которое, в основном, не зависит от типа грунтов на участке. Во-вторых, это готовые “черновые” полы сразу. ЗАДАЧА: определить количество и стоимость материалов монолитной фундаментной плиты. ИСХОДНЫЕ ДАННЫЕ: а) Жилой дом из газобетона с отделкой из облицовочного кирпича б) Размеры плиты 12 200 х 9 375 мм или 12,2 х 9,375 м. в) Подстилающие слои из щебня/песка, гидроизоляция, теплоизоляция, и вводы воды, электричества, канализации не учитываются. Только плита. г) Доставка материалов не учитывается. д) Взяты усредненные цены на материалы, актуальные для Новосибирской области на момент весны 2026 года. РЕШЕНИЕ: Итак, есть дом из газобетонных блоков, и спроектирована монолитная плита в качестве фундамента. На схеме расположения плиты указаны ее габаритные размеры, места ввода инженерных коммуникаций, слой теплоизоляции. О том, в каких местах следует уложить утеплитель в каменном доме, я писал

Фундаментная плита имеет ряд преимуществ. Во-первых, это надежное основание для капитального дома, которое, в основном, не зависит от типа грунтов на участке. Во-вторых, это готовые “черновые” полы сразу.

ЗАДАЧА: определить количество и стоимость материалов монолитной фундаментной плиты.

ИСХОДНЫЕ ДАННЫЕ:

а) Жилой дом из газобетона с отделкой из облицовочного кирпича

б) Размеры плиты 12 200 х 9 375 мм или 12,2 х 9,375 м.

в) Подстилающие слои из щебня/песка, гидроизоляция, теплоизоляция, и вводы воды, электричества, канализации не учитываются. Только плита.

г) Доставка материалов не учитывается.

д) Взяты усредненные цены на материалы, актуальные для Новосибирской области на момент весны 2026 года.

РЕШЕНИЕ:

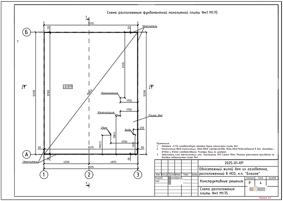
Итак, есть дом из газобетонных блоков, и спроектирована монолитная плита в качестве фундамента. На схеме расположения плиты указаны ее габаритные размеры, места ввода инженерных коммуникаций, слой теплоизоляции. О том, в каких местах следует уложить утеплитель в каменном доме, я писал здесь.

Рис.1 - Схема расположения фундаментной плиты
Рис.1 - Схема расположения фундаментной плиты

Проектом предусмотрено применение арматуры А500 диаметром 12 мм. Принят арматурный пространственный каркас с шагом 200 х 200 мм.

Рис.2 - Фрагмент арматурного каркаса
Рис.2 - Фрагмент арматурного каркаса

Также, согласно расчёта, высота монолитной плиты составляет 350 мм. Защитные слои бетона по 50 мм. Расстояние между первым и вторым слоями арматурного каркаса – 250 мм. Бетон В20 W4 F100. Как это расшифровывается, можно прочитать в одной из моих предыдущих статей.

Рис.3 - Разрез монолитной плиты
Рис.3 - Разрез монолитной плиты

Помимо, основных слоев арматуры, необходимо установить П-образные элементы или “П-эшки” по периметру для укрепления торцов плиты. Они изготавливаются на месте из арматуры диаметром 12 мм.

Рис. 4 - Эскиз П-эшки
Рис. 4 - Эскиз П-эшки

Исходя из спецификации монолитных элементов дома, объем требуемой бетонной смеси для заливки данного фундамента – 39,4 м3.

Рис. 5 - Спецификация монолитных элементов (на что обратить внимание выделено красным)
Рис. 5 - Спецификация монолитных элементов (на что обратить внимание выделено красным)

Следует еще учесть опалубку из доски 50х150 мм и 50х200 мм. Размеры подобраны, исходя из высоты фундаментной железобетонной плиты.

ПОДСЧЕТ И СТОИМОСТЬ МАТЕРИАЛОВ:

1. Бетон В20 W4 F100: 39,4 м3 х 7600 руб. = 299 440 рублей.

2. Рабочая арматура диаметром 12 мм: 1996 кг или 1,996 тонн х 80 000 руб. = 159 680 рублей.

3. Проволока вязальная Вр-I: 20 кг х 125 руб. = 2500 рублей.

4. П-образные элементы из арматуры диаметром 12 мм: 135 кг или 0, 135 тонн х 80 000 руб. = 10 800 рублей.

5. Доска обрезная 50х150 мм: 0,5 м3 х 19 900 руб. = 9950 рублей.

6. Доска обрезная 50х200 мм: 0,7 м3 х 19 900 руб. = 13 930 рублей.

7. Расходники (бруски, крепеж, правило, лопаты, вёдра и т.п.): 35 000 рублей

Итого по стоимости материалов: 531 300 рублей.

Фундаментная монолитная железобетонная плита
Фундаментная монолитная железобетонная плита

Надеюсь, что эта статья будет для Вас полезной! Подписывайтесь на мой канал. Дальше ещё больше интересной инфы о строительстве и проектировании домов.