Найти в Дзене

Проект одноэтажного дома их бруса 150-200-081

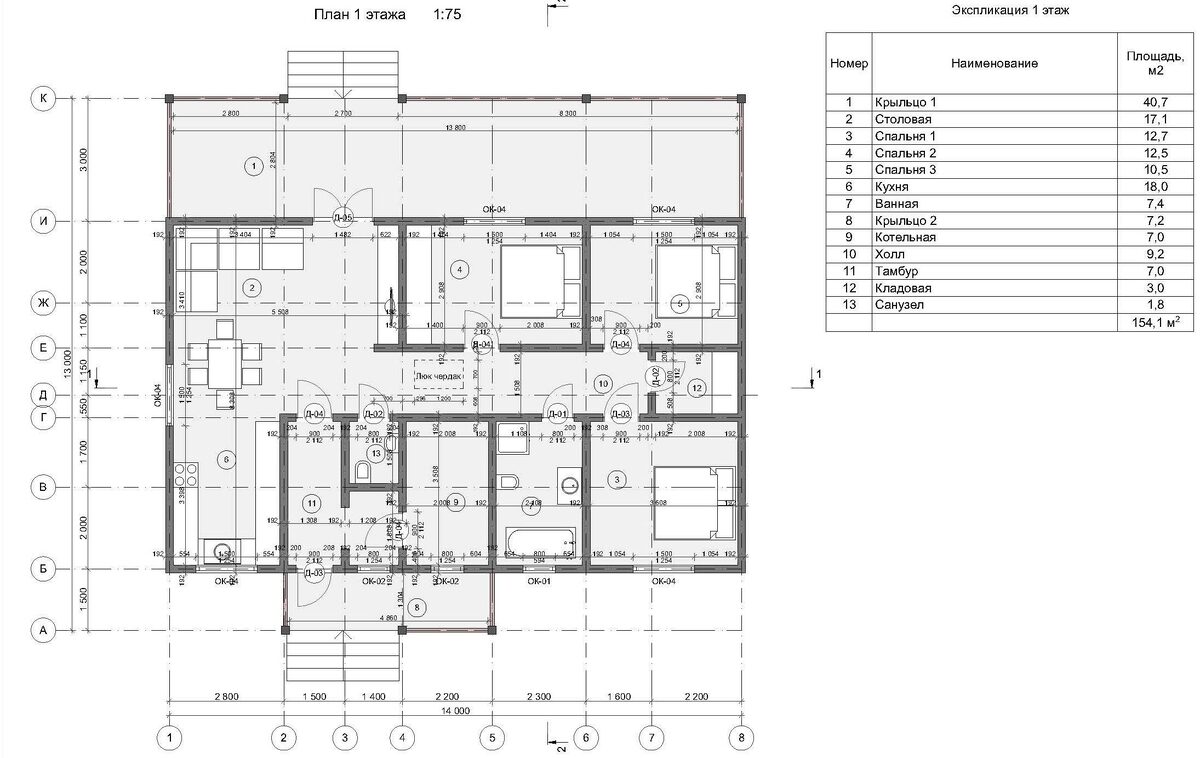
Дом из бруса сечением 195х14 мм. Построен в КП "Софрины пруды". Имеет 3 спальни, два санузла, и просторную гостинную. В процессе строительства крыльцо несколько видоизменилось. Отличительной особенностью является наличие большой террасы выходящей вглубь участка. Впоследствии терраса была застеклена.

Дом из бруса сечением 195х14 мм. Построен в КП "Софрины пруды". Имеет 3 спальни, два санузла, и просторную гостинную.

Дом из бруса
Дом из бруса

План помещений.
План помещений.

Дом из бруса.
Дом из бруса.
Дом из бруса.
Дом из бруса.

В процессе строительства крыльцо несколько видоизменилось.

Отличительной особенностью является наличие большой террасы выходящей вглубь участка. Впоследствии терраса была застеклена.

-5