Найти в Дзене

Ольга Осипенко - участница первого потока курса по нейросетям

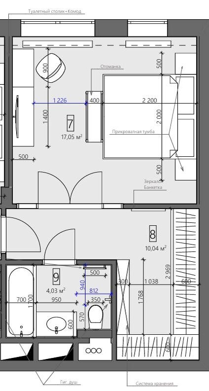
Один из её экспериментов - перевод 2D-планировки в 3D-визуализацию с помощью Nano Banana. Это как раз тот случай, когда ИИ используется, чтобы: ✨ быстро проверить идею ✨ увидеть объём и пространство ✨ оценить композицию ✨ поработать с восприятием интерьера Нейросеть здесь - не замена дизайнеру, а инструмент, который помогает думать быстрее и видеть шире. Именно этому мы и уделяли внимание на курсе: не «как сделать красивую картинку», а как встроить ИИ в реальный процесс работы дизайнера. Потому что сегодня важно понимать, как технологии усиливают специалиста. 💬 Как вам такой подход к работе с планировкой? 📩 Если вы дизайнер и хотите разобраться в возможностях ИИ — напишите «ИИ».

Ольга Осипенко - участница первого потока курса по нейросетям. Один из её экспериментов - перевод 2D-планировки в 3D-визуализацию с помощью Nano Banana.

Это как раз тот случай, когда ИИ используется, чтобы:

✨ быстро проверить идею

✨ увидеть объём и пространство

✨ оценить композицию

✨ поработать с восприятием интерьера

Нейросеть здесь - не замена дизайнеру,

а инструмент, который помогает думать быстрее и видеть шире.

Именно этому мы и уделяли внимание на курсе:

не «как сделать красивую картинку», а как встроить ИИ в реальный процесс работы дизайнера.

Потому что сегодня важно понимать, как технологии усиливают специалиста.

💬 Как вам такой подход к работе с планировкой?

📩 Если вы дизайнер и хотите разобраться в возможностях ИИ — напишите «ИИ».

-2
-3