Добавить в корзинуПозвонить
Найти в Дзене
Реконструкция

Бюджетный одноэтажный дом на наклонном участке.

Ровный участок земли для строительства дома — это почти идеальные условия, при которых затраты на работы сводятся к минимуму. Но так бывает не всегда, иногда к нам приходят клиенты, у которых участки имеют ярко выраженный уклон. Как быть в таких ситуациях? Участок с наклоном — это не обязательно проблема. Да, работать с ним сложнее и есть некоторые неудобства, но у него есть и свои плюсы. Перепад высот даёт простор для творчества в ландшафтном дизайне и позволяет создать уникальные пейзажи. На примере одного бюджетного проекта я покажу, как можно добиться отличных результатов. Клиент приобрёл участок с выраженным рельефом, включающим значительные перепады высот. Перед нами стояла задача построить на этой территории доступный по цене жилой дом. Мы провели высотные измерения на участке и разработали проект дома, согласно пожеланиям клиента. Планировка дома Расположение дома на участке Альбом - Эскизы дома на склоне Конструктивные решения: Клиент хотел построить дом недорого, но это не
Оглавление

Ровный участок земли для строительства дома — это почти идеальные условия, при которых затраты на работы сводятся к минимуму.

Но так бывает не всегда, иногда к нам приходят клиенты, у которых участки имеют ярко выраженный уклон. Как быть в таких ситуациях?

Участок с наклоном — это не обязательно проблема. Да, работать с ним сложнее и есть некоторые неудобства, но у него есть и свои плюсы. Перепад высот даёт простор для творчества в ландшафтном дизайне и позволяет создать уникальные пейзажи.

Дом на склоне
Дом на склоне

На примере одного бюджетного проекта я покажу, как можно добиться отличных результатов.

Дом на склоне

Клиент приобрёл участок с выраженным рельефом, включающим значительные перепады высот. Перед нами стояла задача построить на этой территории доступный по цене жилой дом.

Мы провели высотные измерения на участке и разработали проект дома, согласно пожеланиям клиента.

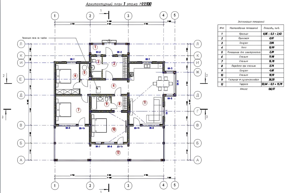
Планировка дома

Планировка дома
Планировка дома

Расположение дома на участке

Расположение дома на участке
Расположение дома на участке

Альбом - Эскизы дома на склоне

Конструктивные решения:

  • Фундамент выполняется из двух частей, под основной частью дома на винтовых сваях с устройством обвязки из стального швеллера. Под задней террасой ленточный монолитный железобетонный.
  • Наружные и внутренние несущие стены каркасные (канадский каркас, технология Балун) из сухой доски хвойных пород с внутренним утеплением и звукоизоляцией минераловатным утеплителем с устройством паро и гидроизоляции.
  • Внутренние ненесущие перегородки из гипсокартона на металлическом каркасе с устройством звукоизоляции из минераловатных плит.
  • Наружная отделка фасадов фиброцементными панелями устройством вентзазора.
  • Внутренняя отделка стен и потолков гипсокартоном на металлическом. каркасе.
  • Горизонтальная гидроизоляция по верху обвязки фундаментов из двух слоев рубероида.
  • Перекрытия по деревянным балкам.
  • Крыша стропильная система из обрезной доски с устройством обрешетки и контробрешетки карнизные свесы подшивка софитом.
  • Окна двухкамерные пластиковые стеклопакеты.
  • Кровля композитная металлочерепица.

Дом на склоне

Клиент хотел построить дом недорого, но это не означало, что качество должно пострадать. Речь шла о том, чтобы использовать простые и доступные материалы и решения. Что собственно и было сделано.

Срок строительства - 3 месяца.

Альбом - Дом на склоне

Резюмируя

Участок с неровным рельефом, безусловно, сложнее и дороже в строительстве по сравнению с ровной территорией. Однако он предоставляет уникальные возможности для создания более разнообразных и интересных форм и пространств.

Один из наших заказчиков приобрёл похожий участок, да ещё с бункером управления, который принадлежал системе противовоздушной обороны СССР. Этот бункер, выполненный из высокопрочного бетона, было бы сложно и дорого демонтировать. Мы предложили нестандартный подход: мы встроили бункер в фундамент и первый этаж будущего жилого дома.

Если вам нужно что-либо спроектировать или построить, обращайтесь — мы поможем воплотить ваши планы в реальность. Компания «ДОМ» — работаем с 1995 года.

Задача моего блога — не пытаться переубедить читателей или навязать им своё мнение. Я делюсь здесь своим опытом в области строительства и размышлениями. Благодарю за понимание.

Всем добра и до скорых встреч.