Добавить в корзинуПозвонить
Найти в Дзене
Мастерская дизайнера

Выбор современных светильников для квартиры в минималистичном стиле: проект в Remplanner.

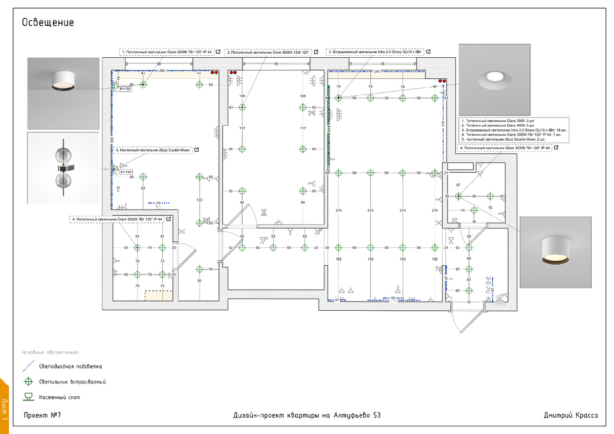
Для квартиры в новостройке, где черновые работы уже близки к завершению, я сегодня уточнил подборку освещения. Она оформлена в Remplanner в рамках проекта. Подборка материалов к дизайну этой квартиры: Итак, вот план освещения со спецификациями светильников, который я подготовил в Remplanner: Это квартира с минималистичным дизайном, и освещение соответствует этому стилю. Встроенные и накладные светильники выполнены в современном стиле, без декора. Скрытая подсветка также играет важную роль и обозначена на плане. Я расскажу о моделях светильников, которые здесь используются. Все описанные ниже светильники от компании Maytoni. Этот светильник создает мягкое, рассеянное и не раздражающее освещение в спальне и кабинете. В спальне он излучает теплый свет, а в кабинете — нейтральный. Отличная цветопередача идеально подходит для жилых помещений. Стильный дизайн усложняет потолок, придавая ему ритмичность. Этот светильник с утопленной формой идеально подходит для натяжных потолков, не занимая м

Для квартиры в новостройке, где черновые работы уже близки к завершению, я сегодня уточнил подборку освещения. Она оформлена в Remplanner в рамках проекта.

Подборка материалов к дизайну этой квартиры:

Трехкомнатная квартира в новостройке на Алтуфьево | Мастерская дизайнера | Дзен

Итак, вот план освещения со спецификациями светильников, который я подготовил в Remplanner:

План освещения квартиры
План освещения квартиры

Это квартира с минималистичным дизайном, и освещение соответствует этому стилю. Встроенные и накладные светильники выполнены в современном стиле, без декора. Скрытая подсветка также играет важную роль и обозначена на плане. Я расскажу о моделях светильников, которые здесь используются. Все описанные ниже светильники от компании Maytoni.

Потолочный светильник Glare 4000K 12W 120°
Потолочный светильник Glare 4000K 12W 120°

Этот светильник создает мягкое, рассеянное и не раздражающее освещение в спальне и кабинете. В спальне он излучает теплый свет, а в кабинете — нейтральный. Отличная цветопередача идеально подходит для жилых помещений. Стильный дизайн усложняет потолок, придавая ему ритмичность.

Встраиваемый светильник Intro 2.0 Sharp GU10 x 9Вт
Встраиваемый светильник Intro 2.0 Sharp GU10 x 9Вт

Этот светильник с утопленной формой идеально подходит для натяжных потолков, не занимая много места. У него нет видимой рамки, он словно сливается с потолком. Обеспечивает качественное освещение, не утомляет глаза. Рекомендую его как основной светильник для кухни-гостиной, прихожей и коридоров.

Потолочный светильник Glare 3000К 7Вт 120° IP 44
Потолочный светильник Glare 3000К 7Вт 120° IP 44

Этот светильник для санузлов устойчив к влаге и обеспечивает приятное мягкое освещение. Я советую его для ванных комнат.

Настенный светильник (бра) Double Moon
Настенный светильник (бра) Double Moon

Это бра создает стильный декоративный акцент в спальне.

Эта продуманная и простая схема освещения идеально вписывается в стиль минимализма. Светильники создают как общее, так и местное освещение, а декоративные подсветки потолка, ниш и зеркал добавляют эмоциональности в дизайн интерьера.

Своим заказчикам я предоставил план в PDF. Он создан в Remplanner и снабжен работающими ссылками и иллюстрациями, что повышает информативность чертежа, созданного в этой программе.

p.s.

Услуги дизайна:

Дмитрий Красса - отзывы, фото проектов, сайт, Архитекторы, Гардеробные и кладовые комнаты, Декораторы и стилисты интерьера, Детские и пеленальные, Дизайнеры интерьера, Корпусная мебель, Лестницы и перила, Освещение, Проектирование и строительство, Производство и установка кухонь, Ремонт и отделка квартир и домов, Специалисты по ремонту кухни, Москва, graphproject52

Уроки Remplanner:

Дизайн интерьера в Remplanner + Планоплан