Найти в Дзене
Берег Песочной

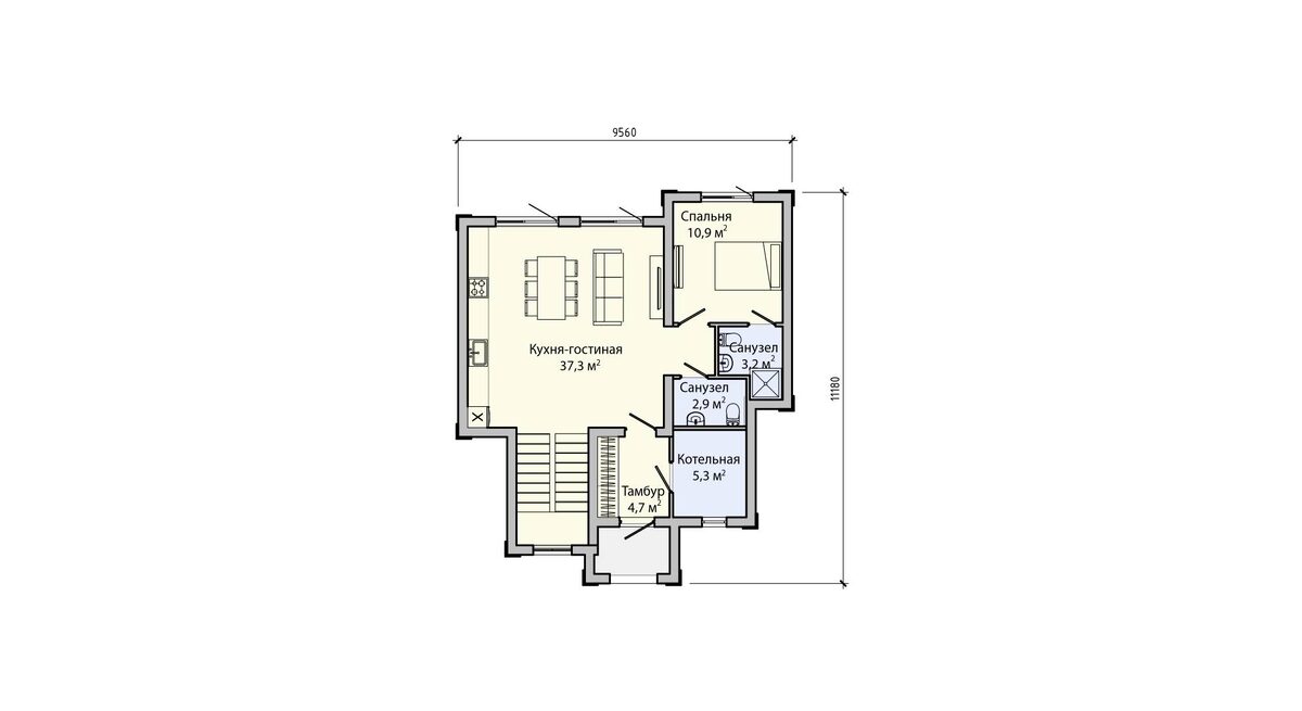
Индивидуальный проект жилого дома ПБ-134 общей площадью 132,4 м²

🏡 Представляем наш проект — ПБ-134! 🎉 Индивидуальный проект жилого дома ПБ-134 общей площадью 132,4 м². Этот уютный двухэтажный коттедж с вальмовой кровлей выполнен из современных панелей БЭНПАН Премиум и Апекс. Он идеально подойдет для комфортного проживания 5-6 человек. 🌟 На первом этаже вас ждут:🔹 Тамбур🔹 Санузел🔹 Котельная🔹 Просторная кухня-гостиная с открытой лестницей🔹 Спальня с отдельным санузлом На втором этаже расположены:🔸3 спальни, включая мастер-спальню 🔸 Еще один санузел 🔸 Кладовая ✨ Хотите узнать больше? Детали проекта здесь: https://beregpesochnoy.ru/construction/lot-no12-0/?utm_source=dzen
📞 Интересуетесь этим проектом? Пишите или звоните: +7 (495) 241-50-64 🤔 Что для вас важнее в доме: просторная кухня или уютные спальни? Поделитесь в комментариях! #жилье #строительство #коттедж #доммечты #ПБ134 #индивидуальныйпроект #новостройки #домыснадежде #комфортныйдом

🏡 Представляем наш проект — ПБ-134! 🎉

Индивидуальный проект жилого дома ПБ-134 общей площадью 132,4 м². Этот уютный двухэтажный коттедж с вальмовой кровлей выполнен из современных панелей БЭНПАН Премиум и Апекс. Он идеально подойдет для комфортного проживания 5-6 человек. 🌟

-2
-3
-4
-5
-6
-7

На первом этаже вас ждут:🔹 Тамбур🔹 Санузел🔹 Котельная🔹 Просторная кухня-гостиная с открытой лестницей🔹 Спальня с отдельным санузлом

На втором этаже расположены:🔸3 спальни, включая мастер-спальню 🔸 Еще один санузел 🔸 Кладовая

✨ Хотите узнать больше?

Детали проекта здесь: https://beregpesochnoy.ru/construction/lot-no12-0/?utm_source=dzen

📞 Интересуетесь этим проектом? Пишите или звоните: +7 (495) 241-50-64

🤔 Что для вас важнее в доме: просторная кухня или уютные спальни? Поделитесь в комментариях!

#жилье #строительство #коттедж #доммечты #ПБ134 #индивидуальныйпроект #новостройки #домыснадежде #комфортныйдом