Добавить в корзинуПозвонить
Найти в Дзене

Расчет количества кирпича в кладке

Чтобы понять, сколько кирпича потребуется для возведения несущих стен, перегородок и отделки фасада, нужно знать их размеры. Также необходимо учитывать параметры всех элементов, которые будут выполнены из кирпича. Расчет количества кирпича, например, для возведения облицовочной кладки здания, сводится к определению площадей фасадов, подлежащих облицовке. Имея на руках проектную документацию или иные образмеренные чертежи, мы сможем просчитать площадь стен под облицовку кирпичом. Для начала необходимо определить периметр здания, это можно сделать по кладочным планам этажей. Если кладочные планы в проекте отсутствуют, то подойдут и обычные планы этажей, где присутствует осевая разбивка с указанием размеров между ними или другие определяющие размеры. Важно, чтобы чертеж был выполнен в масштабе. После нахождения периметра здания, необходимо определиться с высотой кирпичной кладки. Как правило, фасады здания не могут в полной мере отражать действительной высоты кладки, даже при наличии высо

Чтобы понять, сколько кирпича потребуется для возведения несущих стен, перегородок и отделки фасада, нужно знать их размеры. Также необходимо учитывать параметры всех элементов, которые будут выполнены из кирпича.

Расчет количества кирпича, например, для возведения облицовочной кладки здания, сводится к определению площадей фасадов, подлежащих облицовке. Имея на руках проектную документацию или иные образмеренные чертежи, мы сможем просчитать площадь стен под облицовку кирпичом.

Кирпич облицовочный Тандем Нарма
Кирпич облицовочный Тандем Нарма

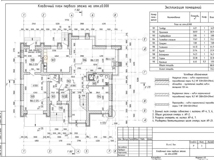
Для начала необходимо определить периметр здания, это можно сделать по кладочным планам этажей. Если кладочные планы в проекте отсутствуют, то подойдут и обычные планы этажей, где присутствует осевая разбивка с указанием размеров между ними или другие определяющие размеры.

Пример кладочного плана. Источник: Яндекс
Пример кладочного плана. Источник: Яндекс

Важно, чтобы чертеж был выполнен в масштабе.

После нахождения периметра здания, необходимо определиться с высотой кирпичной кладки. Как правило, фасады здания не могут в полной мере отражать действительной высоты кладки, даже при наличии высотных отметок. По фасадам можно не понять действительную начальную (нижнюю) отметку облицовочной кладки и верхнюю (конечную).

Кирпич ригельный Сафоново Клинкер Модель №10
Кирпич ригельный Сафоново Клинкер Модель №10

О чем же идет речь? Дело в том, что ответ на данный вопрос можно будет получить, ознакомившись с одним из разрезов по зданию. Из разреза в проекте будет видно, что облицовочный кирпич поднимается выше уровня подшивки кровли и идет практически до самих стропил. Это может быть и 2 ряда кирпича, а может быть и все 10(!), как правило, все зависит от угла наклона стропил (уклона кровли).

Всего один неучтенный ряд кладки при периметре здания, к примеру, 200 м.п., составит 200/0,25+0,01 = 770шт. (при длине кирпича 250мм и ширине шва в 10мм).

Если кирпич носит заказную позицию с длительными сроками поставками, то временные издержки и простои будут просто неизбежны!

Конечно, можно довести кладку до уровня горизонтальной подшивки карнизных свесов кровли, сэкономив тем самым на материале, но стоит обязательно учитывать требования проекта в целом. Отметка начала кладки также будет очевидна из разреза. Как правило, кирпич на разрезах указывается штриховкой двойной линией согласно ГОСТ 2.306-68 ЕСКД. Всегда лучше ориентироваться на конструкцию пирога стены, вынесенную отдельным узлом, сведенную в таблицу или обозначенную «флажком» на самом разрезе.

Стеновой «пирог». Источник: Яндекс
Стеновой «пирог». Источник: Яндекс

Итак, мы выяснили отметки низа и верха кладки, а значит, знаем ее высоту. Из найденной искомой площади фасадов необходимо обязательно вычесть все проемы. Размеры проемов можно взять как с фасадов, так и с планов этажей (ширина проема) + из разрезов (высота проема). А также в проекте можно найти спецификацию по размерам проемов или ведомость окон и дверей с указанием их размеров.

Оконные и дверные проемы довольно часто обрамляют декоративными элементами, которые наклеиваются на фасадный клей поверх облицовочного кирпича. Следует учитывать кирпичную кладку и за всеми элементами.

Оконные и дверные проемы довольно часто обрамляют декоративными элементами, которые наклеиваются на фасадный клей поверх облицовочного кирпича
Оконные и дверные проемы довольно часто обрамляют декоративными элементами, которые наклеиваются на фасадный клей поверх облицовочного кирпича

Однако здесь следует акцентировать внимание на том, что фасадный декор может быть выполнен и из навесных тяжелых элементов, которые крепятся только к несущим стенам, монолитным поясам и прочим конструкциям. В таком случае за такими элементами облицовочного кирпича не может быть по определению.

Если мы имеем дело на строительной площадке, то достаточным будет просто произвести необходимые замеры с помощью лазерного дальномера или рулетки.

Если кирпич носит заказную позицию с длительными сроками поставками, то временные издержки и простои будут просто неизбежны
Если кирпич носит заказную позицию с длительными сроками поставками, то временные издержки и простои будут просто неизбежны

Поскольку форматов кирпича на сегодняшнее время существует достаточно большое количество, то расход на 1 м2 для каждого типа свой. Например для формата 1НФ (250х120х65) по данным разных производителей расход составляет около 50шт./м2.

Расход кирпича указывается весьма усредненно. Если разобраться поближе, то все расходы указываются только для традиционной кладки «Дорожка», т.е. для варианта кладки, при котором абсолютно все кирпичные слои выложены только из длинных его сторон. При этом в каждом ряду осуществляется смещение на половину или на четверть кирпича.

Пример кладки  «Дорожка»
Пример кладки «Дорожка»
Давайте самостоятельно определим геометрический расход кирпича формата:
1НФ (250х120х65) на 1м² при кладочном шве 10 мм:
1м²/ (0,26м х 0,075м) = 1м²/0,0195м² = 51,3 шт./м²,
а теперь при шве 8мм:
1м²/ (0,258м х 0,073м) = 1м²/0,018834м² = 53,1 шт./м²

Как видите, разница в 1,8 шт. на 1 м² имеет место быть. Если рассматривать кирпич ручной формовки, то он не имеет строгой прямолинейной геометрии и ширина шва в кладке будет неравномерной и может достигать 20-25мм.

Облицовочный кирпич Faber Jar Нарвский на фасаде частного дома
Облицовочный кирпич Faber Jar Нарвский на фасаде частного дома

Учитывая большие объемы работ по возведению облицовочной кладки, допустимые отклонения от номинальных размеров самого кирпича(согласно ГОСТ-530-2012), добросовестность каменщиков и т.д., можно сделать вывод, что рассчитать кирпич с точностью до единицы не представляется возможным. Свести погрешность расчета к минимуму возможно, руководствуясь описанными в данной статье способами.

Обязательно следует учитывать и возможный бой кирпича при транспортировке, погрузке/разгрузке и т.п. Количество половняка должно составлять не более 5% от общего количества материала (согласно ГОСТ-530-2012, п. 5.1.6). А также, принимая во внимание подрезку кирпича при ведении кладочных работ в трудных местах, возможные нехватки материала рекомендуется компенсировать технологическим запасом, который необходимо принимать в зависимости от сложности архитектуры здания, но не менее 5%.

Для расчета кирпичной кладки несущих стен необходим несколько другой подход. Поскольку, в отличии от облицовочной кладки, несущие стены имеют в несколько раз превосходящую толщину, то расчет следует производить с учетом данной толщины. Расчет кирпича сводится к определению объема стен.

Для определения объема стены необходимо применить простую формулу стереометрии:
V = S х h, где «S» – площадь стены по фасаду, а «h» – ее толщина.
Например, имеем стену длиной 10м, высотой 3м и толщиной 38см (толщина в полтора кирпича); ее объем составит:
V = 10,0 х 3,0 х 0,38 = 11,4м³.
Количество кирпичей формата 1НФ (250х120х65) на данный объем (с учетом шва в кладке 10мм): 11,4м³ / (0,26м х 0,13м х 0,075м) = 11,4м³ / 0,002535м³ = 4498шт.

При расчете кирпича на внешние несущие стены, стоит учитывать объем материала пересечения стен. Иными словами, умножив общий периметр стен дома на их высоту и толщину, мы получим кол-во материала с излишком. Лучше всего производить расчет именно по кладочным планам и рассматривать каждую стену/фрагмент стены отдельно. Любые объемные тела при пересечении образуют некую пространственную область, которая принадлежит обоим телам.

Чем насыщеннее будет конструктив здания, тем сложнее осуществлять расчет. При наличии разноуровневой кладки, эркеров, полукруглых элементов, множества изломов на фасаде, навесных частей, колонн и других архитектурных форм расчет становится весьма занимательным и требует значительного количества времени.

________________________________________

Поможем рассчитать все материалы, представленные в нашем каталоге, а также окажем консультации по ассортименту, подберем подходящие материалы и сформируем предложение с необходимыми комплектующими (системы крепления, аксессуары и прочие).

Подписывайтесь на наш telegram-канал, чтобы вдохновляться готовыми объектами и первыми узнавать новости компании.