Добавить в корзинуПозвонить
Найти в Дзене

Карта глушения. Часть 1

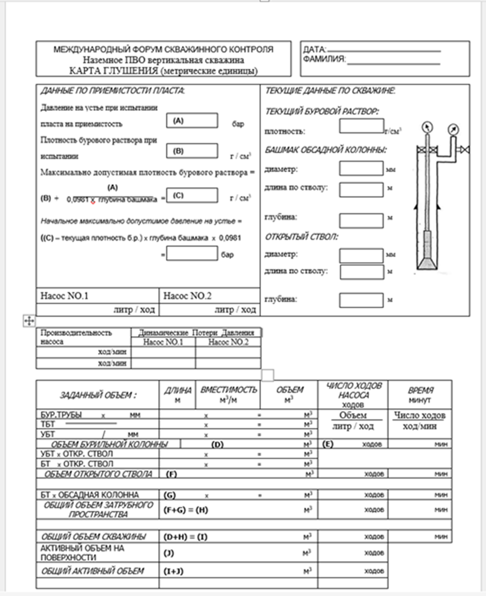
Карта глушения В предыдущей публикации, были проведены расчеты необходимые для ликвидации ГНВП одностадийным способом. Для удобства, все расчеты сведены в единый документ под названием «Карта глушения». Если хотите, карта глушения – это руководство по ликвидации ГНВП одностадийным способом. Я предлагаю, на этом документе остановиться более подробно. Итак, в современном виде, карта глушения пришла в Россию вместе с иностранными компаниями. По сути, этот документ был скопирован и адаптирован под наши условия. Почему я сделал такой вывод, вы поймете чуть позже. Карта глушения представляет из себя лист формата А-4, заполненного с двух сторон. Первая сторона Вторая сторона Эта рабочая карта, которая используется при строительстве скважин, была любезно предоставлена мне одной из нефтяных компаний. Первая сторона документа представляет из себя, по сути, исходные данные по скважине и заполняется до проявления. С этой части карты глушения и начнем. МЕЖДУНАРОДНЫЙ ФОРУМ СКВАЖИННОГО КОНТРОЛЯ Наз

Карта глушения

В предыдущей публикации, были проведены расчеты необходимые для ликвидации ГНВП одностадийным способом.

Для удобства, все расчеты сведены в единый документ под названием «Карта глушения». Если хотите, карта глушения – это руководство по ликвидации ГНВП одностадийным способом.

Я предлагаю, на этом документе остановиться более подробно.

Итак, в современном виде, карта глушения пришла в Россию вместе с иностранными компаниями. По сути, этот документ был скопирован и адаптирован под наши условия. Почему я сделал такой вывод, вы поймете чуть позже.

Карта глушения представляет из себя лист формата А-4, заполненного с двух сторон.

Первая сторона

Вторая сторона

-2

Эта рабочая карта, которая используется при строительстве скважин, была любезно предоставлена мне одной из нефтяных компаний. Первая сторона документа представляет из себя, по сути, исходные данные по скважине и заполняется до проявления.

С этой части карты глушения и начнем.

МЕЖДУНАРОДНЫЙ ФОРУМ СКВАЖИННОГО КОНТРОЛЯ

Наземное ПВО вертикальная скважина

КАРТА ГЛУШЕНИЯ (метрические единицы)

ДАТА:

ФАМИЛИЯ:

Теперь, я думаю, понятно, что этот документ имеет иностранное происхождение. Я настойчиво об этом говорю не потому, что не доверяю иностранным специалистом, по моему мнению, в карте глушения присутствуют неточности, связанные с трудностью перевода. Вот, например, «Наземное ПВО вертикальная скважина». Многие считают, что это карта глушения предназначена для вертикальных скважин. Тогда посмотрите вот сюда.

-3

Это верхний правый угол, данные по скважине. Обратите внимание, указывается и длина участка по стволу и глубина того же участка по вертикали. Согласитесь, что это не очень характерно для вертикальной скважины.

Я прекрасно понимаю, что перевод с технического английского, это очень трудная задача. Наверное, поэтому в данном виде, карта глушения так сложна для понимания, особенно среди студентов. Давайте попробуем разобраться совместными усилиями. Мне было бы проще записать видео на канале (и я обязательно это сделаю), чем объяснять на «бумаге», мешает отсутствие опыта изложения текста в письменном виде и не профессиональное владение компьютерной техникой.

Я уже говорил, что некоторым студентам приходится готовиться к экзаменам при помощи интернета, отсутствуют квалифицированные преподаватели. Так вот, именно эти молодые люди дали мне ссылку на один популярный интернет-канал, с помощью которого они учатся заполнять карту глушения. Я его посмотрел. Вывод – не всегда следует верить тому, что написано на заборе.

Итак, начнем, пожалуй, с самого сложного. Верхний левый угол.

-4

Давление на устье при испытании пласта на приемистость – это показание манометра, которое было зафиксировано при испытании скважины на приемистость при закрытом устье и на определенной плотности бурового раствора. Хочу еще раз напомнить, показание манометра и давление в скважине – это разные вещи.

Давление в скважине во время испытания = показание манометра + гидростатическое давление столба бурового раствора.

-5

Так вот, под словосочетанием давление на устье, нужно понимать именно показание манометра.

Теперь давайте разберемся, в какой момент было прекращено испытание и зафиксировано данное показание манометра.

Для чего проводится испытание скважины на приемистость?

Чаще всего, это испытание проводят после установки кондуктора. Разбурили башмак кондуктора, углубились примерно на пять, шесть метров, закрыли скважину и при помощи насоса начинают поднимать давление в скважине. Цель – определить давление начала поглощения горных пород. Давление в скважине растет, стрелка на манометре движется в право. В какой-то момент, стрелка на манометре замирает и начинает отклоняться в лево. Останавливают насос, фиксируют показание манометра и определяют приемистость пласта за определенный промежуток времени.

Но, ни в коем случае нельзя допустить, чтобы давление в скважине во время испытания превысило давление опрессовки кондуктора или последней обсадной колонны, при условии, что устьевое оборудование опрессовывалось на такое же давление.

Хочу напомнить, что каждая обсадная колонна, после завершения цементажа, проходит испытание на герметичность, т.е. опрессовку. Давление опрессовки должно быть больше предполагаемого рабочего давления (примерно на 50%), но меньше, чем предел прочности колонны. Также проводят опрессовку устьевого оборудования после монтажа.

Представьте себе, что во время испытании скважины на приемистость открытого ствола, давление в скважине достигает величины давления опрессовки колонны, но при этом не происходит поглощения бурового раствора. Поднимать давление в скважине дальше нельзя, это противоречит здравому смыслу, согласитесь. Нужно остановить испытание и сделать вывод о том, что давление опрессовки обсадной колонны меньше, чем давление начала поглощения. Зафиксировать показание манометра, которое и будет в дальнейшем записано в карте глушения, как «давление на устье при испытании пласта на приемистость». Обратите внимание, обязательно указывается плотность жидкости при испытании. Я уже говорил, что давление в скважине будет определяться, как сумма показания манометра и гидростатики раствора. Если в дальнейшем плотность раствора изменится, то предельное показание манометра нужно будет пересчитать, что и сделано в карте глушения в пункте «Начальное максимально допустимое давление на устье».

Начальное максимально допустимое давление на устье = (максимально допустимая плотность раствора – текущая плотность раствора) × глубина башмака обсадной колонны по вертикали × ускорение свободного падения.

Максимально допустимая плотность раствора – это такая плотность, при которой буровой раствор своим гидростатическим давлением (ρḡН) создает в скважине предельно допустимое давление.

Максимально допустимая плотность = плотность раствора при испытании скважины на приемистость + (показание манометра при испытании / глубина башмака обсадной колонны по вертикали × ускорение свободного падения).

Вывод: максимально допустимое показание манометра на устье определяется от давления начала поглощения раствора или от давления опрессовки обсадной колонны, в зависимости от того, какая из этих величин окажется меньше во время испытания открытого ствола скважины на приемистость с учетом плотности бурового раствора.

Но, максимально допустимое показание манометра на устье – это 80 процентов от показания манометра при испытании скважины на приемистость. Вот про это в карте глушения нет ни слова.

Давайте вспомним про документ формата А-4, которой должен находиться на дроссельной установке. В этом документе как раз и указывают показание манометра при испытании скважины на приемистость и плотность жидкости испытания.

Показание манометра не должно превышать 80 процентов от этого значения. Если во время стабилизации скважины показание затрубного манометра начинает зашкаливать, необходимо при помощи дросселя попытаться сбить пиковое давление в скважине. Если проявление произошло при плотности раствора, которая отличается от плотности испытания, предельное показание манометра надо пересчитать.

Возможно, я отстал от жизни и эту норму уже отменили. Но, согласитесь, поддерживать давление в скважине равное давлению опрессовки или давлению начала поглощения, слишком рискованно. Для этого и вводили предел в 80 процентов.

Возможно, вы знаете почему так, напишите пожалуйста в комментариях.

Мало того, учителя в интернете предлагают определять давление на устье при испытании пласта на приемистость по давлению гидроразрыва горных пород под башмаком обсадной колонны. Так и говорят, «если нет информации о давлении на устье при испытании на приемистость, найдите градиент давления гидроразрыва и определите давление гидроразрыва в необходимой точке скважины». Просто жесть какая-то. Да, теоретически по давлению гидроразрыва можно определить давление начала поглощения, примерно 70 процентов, но почему они все уверены, что давление начала поглощения раствора будет всегда меньше, чем давление опрессовки обсадной колонны – это большой вопрос.

Мы с вами обязательно проведем все расчеты карты глушения на конкретном примере, но уже в следующей статье.

Продолжение следует.