Добавить в корзинуПозвонить
Найти в Дзене

Проект "Теремок" 85 м2 одноэтажного дома с 3 спальнями из газосиликата

Самый востребованный из всех готовых проектов домов - оказывается вот этот домик. Чем же он подкупает? Ответ на поверхности - небольшая оптимальная общая площадь, в придачу понятный конструктив и доступные недорогие строительные материалы. Самое лучшее от одноэтажных домов - это маленькая второстепенная площадь коридора. Симметричный главный фасад нравится всем. Вальмовая крыша с покрытием металлочерепицей - лучший выбор. Терраса - радость для всех жителей.
3D Визуализация №1
3D Визуализация №1

Самый востребованный из всех готовых проектов домов - оказывается вот этот домик.

Чем же он подкупает? Ответ на поверхности - небольшая оптимальная общая площадь, в придачу понятный конструктив и доступные недорогие строительные материалы.

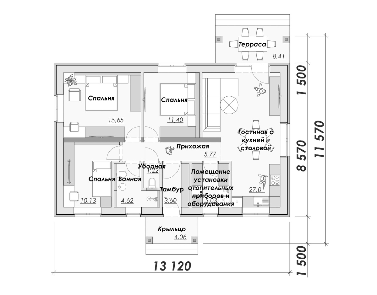
Планировка
Планировка

Самое лучшее от одноэтажных домов - это маленькая второстепенная площадь коридора.

3D Визуализация №2
3D Визуализация №2

Симметричный главный фасад нравится всем.

3D Визуализация №3
3D Визуализация №3

Вальмовая крыша с покрытием металлочерепицей - лучший выбор.

3D Визуализация №4
3D Визуализация №4

Терраса - радость для всех жителей.

3D Визуализация №5
3D Визуализация №5

Ну а этот, как и прочие готовые проекты по скромным ценам можно купить у нас в магазине OZON и WB, по ссылкам в комментариях.