Найти в Дзене
Designum Sochi

3 ВАЖНЫХ ВЫКЛЮЧАТЕЛЯ

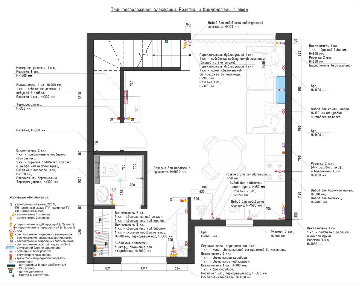
, которые нужно учесть в дизайн-проекте для комфорта. 1️⃣ Мастер-выключатель - это устройство (обычно клавиша у входной двери), позволяющее одним нажатием обесточить всё освещение и часть розеток в доме или квартире, оставляя всегда включенными холодильник, сигнализацию, интернет-роутер, газовый котел или другое, по своему усмотрению. Главная прелесть этой системы — спокойствие: вы никогда не будете переживать, выключили ли утюг или свет в ванной. 2️⃣ Проходной выключатель. Он позволяет включать освещение с двух точек. Например, центральную люстру спальни можно включить у входа в комнату, а выключить, улёгшись в кровать, нажав клавишу над тумбочкой. 3️⃣ Перекрёстный выключатель. Позволяет включать освещение с трёх и более точек. Например, ту же люстру в спальне можно включить: 1) у входа, 2) с одной стороны кровати, 3) с другой стороны кровати. Кстати, сейчас эти и другие выключатели могут быть и беспроводными, т.е. работать с помощью интернета или радиоволн, без привязки к электр

3 ВАЖНЫХ ВЫКЛЮЧАТЕЛЯ,

которые нужно учесть в дизайн-проекте для комфорта.

1️⃣ Мастер-выключатель - это устройство (обычно клавиша у входной двери), позволяющее одним нажатием обесточить всё освещение и часть розеток в доме или квартире, оставляя всегда включенными холодильник, сигнализацию, интернет-роутер, газовый котел или другое, по своему усмотрению.

Главная прелесть этой системы — спокойствие: вы никогда не будете переживать, выключили ли утюг или свет в ванной.

2️⃣ Проходной выключатель. Он позволяет включать освещение с двух точек. Например, центральную люстру спальни можно включить у входа в комнату, а выключить, улёгшись в кровать, нажав клавишу над тумбочкой.

3️⃣ Перекрёстный выключатель. Позволяет включать освещение с трёх и более точек. Например, ту же люстру в спальне можно включить:

1) у входа,

2) с одной стороны кровати,

3) с другой стороны кровати.

Кстати, сейчас эти и другие выключатели могут быть и беспроводными, т.е. работать с помощью интернета или радиоволн, без привязки к электросети.