Добавить в корзинуПозвонить
Найти в Дзене
Instairs

Как мы построили бетонную лестницу в частном доме в Нижнем Новгороде за 9 дней — разбор объекта на Александровской Слободе

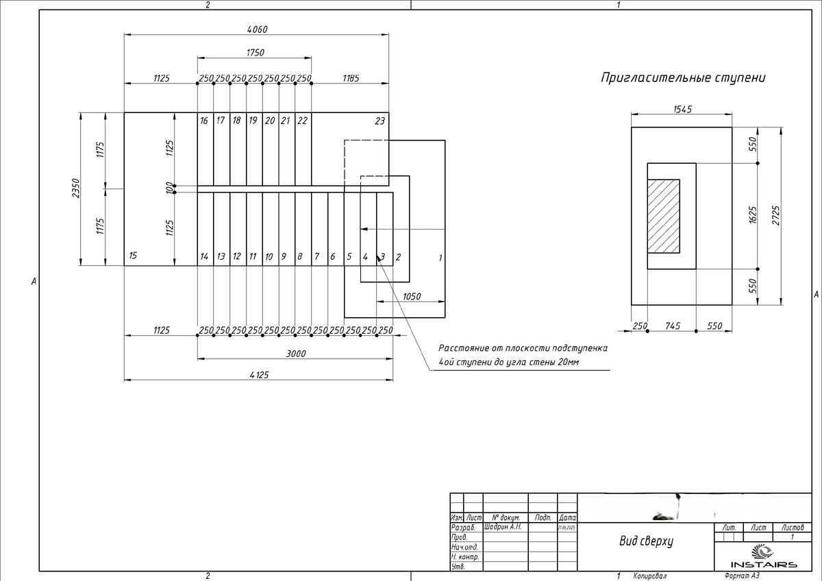
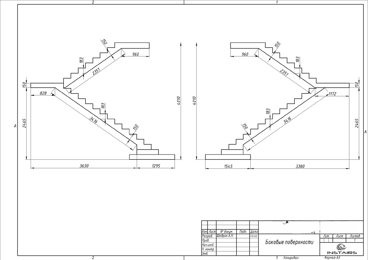
На этом объекте в Нижнем Новгороде заказчик сразу решил делать монолитную бетонную лестницу под ключ, чтобы один раз и навсегда. Покажу весь процесс по шагам. Заявка нам пришла от дизайнера - нужно было реализовать проект с точностью до миллиметра. Задача была сделать промежуточную площадку выше окна, но при этом не удлинять нижний марш, чтобы оставить место для прохода. На замер я попал в начале июня 2025. Познакомился с клиентом, снял все размеры проема под лестницу. Так как проект уже был подготовлен дизайнером, мы лишь уточнили размеры лестницы: Высота лестницы - 4010 мм Ширина марша - 1125 мм Количество ступеней - 23 шт Высота ступеньки - 174 мм Ширина проступи - 250 мм Угол подъема - 35,7 град Дополнительно - 2 подиумные ступени и монолитный участок наверху ⠀ Из-за окна, которое нужно было обойти пришлось увеличить высоту ступеней до 174мм и сделать минимальную ширину проступи 250мм, чтобы нижний марш не сильно выпирал за грань нижней стены Перед вами проект лестницы с 3Д модель
Оглавление

Лестница №385

На этом объекте в Нижнем Новгороде заказчик сразу решил делать монолитную бетонную лестницу под ключ, чтобы один раз и навсегда.

Покажу весь процесс по шагам.

Заявка нам пришла от дизайнера - нужно было реализовать проект с точностью до миллиметра.

Задача была сделать промежуточную площадку выше окна, но при этом не удлинять нижний марш, чтобы оставить место для прохода.

📸 Замер и расчёт

Временная лестница из досок
Временная лестница из досок

На замер я попал в начале июня 2025. Познакомился с клиентом, снял все размеры проема под лестницу.

Так как проект уже был подготовлен дизайнером, мы лишь уточнили размеры лестницы:

Высота лестницы - 4010 мм
Ширина марша - 1125 мм
Количество ступеней - 23 шт
Высота ступеньки - 174 мм
Ширина проступи - 250 мм
Угол подъема - 35,7 град
Дополнительно - 2 подиумные ступени и монолитный участок наверху ⠀

Из-за окна, которое нужно было обойти пришлось увеличить высоту ступеней до 174мм и сделать минимальную ширину проступи 250мм, чтобы нижний марш не сильно выпирал за грань нижней стены

📸 Проектирование

Перед вами проект лестницы с 3Д моделью для лучшего понимания ситуации.

Проект согласовывали очень долго из-за 2ух подиумных ступеней - клиенту постоянно не нравились их габариты и форма.

Так как на объекте шли другие работы, мы согласовали проект и вышли на объект только в октябре 2025 года.

Решено было разделить заливку на 2 этапа: сначала отливаем подиумные ступени, а затем саму лестницу.

Опалубку выполняли из досок 1го сорта разной толщины, ОСП листов. Армирование 10ой арматурой в 2 сетки с шагом не более 200х250мм + армирование ступеней Г-шками из 8ой арматуры, бетон привозной марки М300. Общий объем на всю лестницу - порядка 3,5м3

Всегда делайте проект дома и лестницы в частности! Он экономит и время, и деньги — без сюрпризов на стройке.

📸 Опалубка и армирование

1ый этап - подиумные ступени:

На 1ом этапе собрали 2 подиумные ступени, раскрепили их по всем сторонам, чтобы нигде не выдавило, сделали выпуски арматуры под будущий нижний марш.

Срок сборки - 2 дня

2ой этап - сборка лестницы:

2ой этап занял у нас 7 рабочих дней вместе с заливкой.

Сложности были при сборки опалубки из-за большой высоты в 4м.

📸 Заливка бетона

Заливка прошла за один раз с обязательным вибрированием каждой ступени. Промежуточную площадку выглаживали по лазеру. Погрешность на готовое изделие не больше 3мм.

На следующий день приехали проверить лестницу, пролить и накрыть пленкой:

Через 28 дней сняли опалубку.

📸 Результат

Результат готовой лестницы вы можете увидеть на фото

Получилось:

✔ ровные ступени
✔ ничего не скрипит
✔ готово под отделку плиткой
✔ срок исполнения — 9 дней
✔ стоимость — 400 000 ₽ под ключ

Такая бетонная лестница в частном доме спокойно прослужит десятилетия.

Если вы строите дом в Нижнем Новгороде или Нижегородской области и нужна лестница из бетона под ключ, показываю все объекты и процессы здесь:

👉 сайт: https://instairs.ru/
👉 телеграм:
t.me/instairs

Видеоверсия: