Добавить в корзинуПозвонить
Найти в Дзене
РБКСтрой

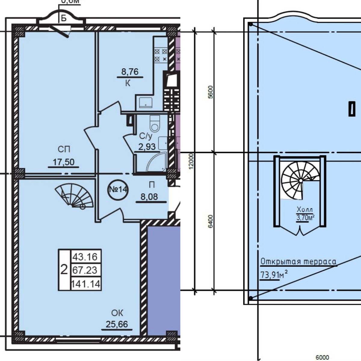
Двухкомнатная квартира с собственной террасой

👍 📍Дом №8 «Фрегат», ЖК «Скифия» Эта квартира — про пространство и возможность жить шире обычных метров. Угловое расположение даёт сразу несколько ракурсов и ощущение свободы. Окна квартиры выходят на внутренний двор и соседние дома комплекса — спокойный, закрытый от внешнего шума вид. А уже выше, с террасы, открывается панорама на двор, море и горизонт — тот самый вид, ради которого хочется подняться наверх. 🤩Планировка продумана и функциональна. Спальня с французским балконом — тихая и уютная, с видом на внутреннюю территорию комплекса. Рядом удобно расположены кухня и санузел — всё компактно и логично, без лишних переходов. Просторная гостиная — центральное пространство квартиры. Здесь легко организовать комфортную зону отдыха, обеденную зону и при этом сохранить ощущение свободы. Здесь же находится лестница, ведущая на террасу. 🤩 Открытая терраса площадью 73,91 м² — это полноценное продолжение квартиры. С неё открывается вид на внутренний двор дома, общую территорию компл

Двухкомнатная квартира с собственной террасой 👍

📍Дом №8 «Фрегат», ЖК «Скифия»

Эта квартира — про пространство и возможность жить шире обычных метров. Угловое расположение даёт сразу несколько ракурсов и ощущение свободы.

Окна квартиры выходят на внутренний двор и соседние дома комплекса — спокойный, закрытый от внешнего шума вид. А уже выше, с террасы, открывается панорама на двор, море и горизонт — тот самый вид, ради которого хочется подняться наверх.

🤩Планировка продумана и функциональна.

Спальня с французским балконом — тихая и уютная, с видом на внутреннюю территорию комплекса. Рядом удобно расположены кухня и санузел — всё компактно и логично, без лишних переходов.

Просторная гостиная — центральное пространство квартиры. Здесь легко организовать комфортную зону отдыха, обеденную зону и при этом сохранить ощущение свободы.

Здесь же находится лестница, ведущая на террасу.

🤩 Открытая терраса площадью 73,91 м² — это полноценное продолжение квартиры.

С неё открывается вид на внутренний двор дома, общую территорию комплекса, на море и линию горизонта.

Пространство террасы позволяет создать сразу несколько зон:

— место для отдыха с креслами и столиком,

— зону для загара или спокойного чтения,

— лаунж-зону для встреч с друзьями.

Часть террасы рядом с холлом можно использовать под фитнес-зону, зелёный сад или уединённое пространство для отдыха.

Как можно обустроить квартиру и террасу, мы показали в визуализациях.

✨ Звоните, если вас заинтересовала эта квартира:

8-800-777-22-88 | 8-8692-77-70-92

-2
-3
-4
-5
-6
-7
-8
-9
-10