Добавить в корзинуПозвонить
Найти в Дзене

Формула спокойствия: строгий интерьер в евротрешке 51,6 м²

Преображение этой квартиры площадью 51,6 м² в ЖК «Михайловский парк» началось с предельно ясного и сформулированного запроса. Владелец хотел получить спокойное, строгое пространство для жизни, где доминируют серые и коричневые тона, а каждая зона продумана до мелочей. Задача для дизайнера Ольги Мирзабаевой и хоумстейджера Ирины заключалась в том, чтобы наполнить эту лаконичную формулу содержанием. Помимо общего преображения пространства, требовалась замена всех дверей и сантехники, а главный вызов ждал в санузле — там предстояло организовать полноценную гардеробную, не пожертвовав комфортом. Основной задачей при работе с планировкой стало создание визуального порядка и минимизация «информационного шума». Пространство прихожей и кухни было решено объединить в единую горизонталь для ощущения целостности пространства.
Главная техническая сложность заключалась в том, что систему кондиционирования пришлось прокладывать с нуля — со вскрытием потолка и выводом отдельного кабеля к щитку.
Оглавление

Преображение этой квартиры площадью 51,6 м² в ЖК «Михайловский парк» началось с предельно ясного и сформулированного запроса. Владелец хотел получить спокойное, строгое пространство для жизни, где доминируют серые и коричневые тона, а каждая зона продумана до мелочей.

Диван — Divan.ru. Хоумстейджинг — Ирина Белякова, дизайн — Ольга Мирзабаева.
Диван — Divan.ru. Хоумстейджинг — Ирина Белякова, дизайн — Ольга Мирзабаева.

Задача для дизайнера Ольги Мирзабаевой и хоумстейджера Ирины заключалась в том, чтобы наполнить эту лаконичную формулу содержанием. Помимо общего преображения пространства, требовалась замена всех дверей и сантехники, а главный вызов ждал в санузле — там предстояло организовать полноценную гардеробную, не пожертвовав комфортом.

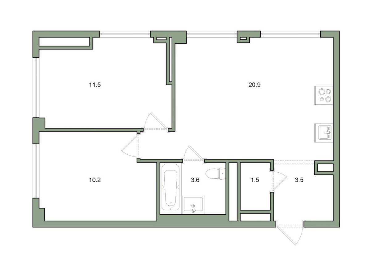
Планировка

Квартира 51,6 м² в ЖК «Михайловский парк»
Квартира 51,6 м² в ЖК «Михайловский парк»

Основной задачей при работе с планировкой стало создание визуального порядка и минимизация «информационного шума». Пространство прихожей и кухни было решено объединить в единую горизонталь для ощущения целостности пространства.

Главная техническая сложность заключалась в том, что систему кондиционирования пришлось прокладывать с нуля — со вскрытием потолка и выводом отдельного кабеля к щитку.

Кухня-гостиная

Объединённая кухня-гостиная стала композиционным центром квартиры.

Контрастное сочетание — глубокий, почти графитовый цвет нижних фасадов и теплый оттенок натурального ореха верхних ярусов — создает сложную, насыщенную глубину. Этот приём разбивает монотонность, не нарушая общую строгость палитры.

Зона отдыха в гостиной сознательно освобождена от перегруза. Её композиция строится вокруг компактного, но выразительного дивана, который определяет камерную атмосферу. Обеденная группа и ТВ-тумба подобраны в той же лаконичной, геометричной манере.

Спальня

Зона спальни — уединённая, камерная территория. Пространство освобождено от всего лишнего, а такие материалы, как дерево, фактурная ткань и матовые поверхности, работают на тактильный комфорт и расслабление.

Кабинет

Здесь важно было создать атмосферу концентрации, спокойствия и продуктивности. Четкие контуры мебели, эргономичная форма стула, сдержанность деталей — каждый элемент подчинен общей логике порядка.

Ванная, гардероб, прихожая

Самым нестандартным решением проекта стала гардеробная, смонтированная в санузле. Система хранения спроектирована так, что теснота не ощущается. В отделке использованы влагостойкие панели, объединённые с фасадами шкафчика в единый ансамбль.


В прихожей тот же принцип: встроенные шкафы и узкая полка сливаются со стеной.

Шкаф, полка — Mebelin. Пуф — Divan.ru. Хоумстейджинг — Ирина Белякова, дизайн — Ольга Мирзабаева.
Шкаф, полка — Mebelin. Пуф — Divan.ru. Хоумстейджинг — Ирина Белякова, дизайн — Ольга Мирзабаева.

Команда проекта:
Дизайнер
Ольга Мирзабаева и хоумстейджер Ирина Белякова.

Вдохновились атмосферой? Воплотить похожие решения в своём доме помогут бренды, которые были использованы в проекте: кухни и системы хранения Mebelin, мягкая мебель и декор Divan.ru, авторская корпусная мебель SK Design. Всё это вы можете подобрать в мебельном центре Roomer 🧡