Найти в Дзене

Проект "Домашний очаг" 110 м2 дома с 3 спальнями по сельской ипотеке

Это проект разработан на основании "старого", только клиент попросил впереди дома сделать на крыльце себе ещё одно местечко для катания на кресле качалке с сигарой и бокальчиком красного. И всё это под пледом. Тем самым крыльцо увеличили вправую часть. Но гулять, так гулять. На другой стороне дома он тоже решил продлить террасу вдоль всего фасада. Видимо с его точки зрения в этом есть практичность. Разумная планировка с ядром мокрых зон. 3 спальни и единая кухня гостиная. А что ещё надо? Дом заказали в тёмной стильной гамме. Я люблю большие окна и тут видимо меня все тоже поддерживают. Даже не знаю что делать можно на такой террасе. В волейбол играть? Или огурцы под засолку подготавливать? Для тех кто ещё ни разу о нас не слышал.
3D Визуализация №1
3D Визуализация №1

Это проект разработан на основании "старого", только клиент попросил впереди дома сделать на крыльце себе ещё одно местечко для катания на кресле качалке с сигарой и бокальчиком красного. И всё это под пледом.

Тем самым крыльцо увеличили вправую часть.

Но гулять, так гулять. На другой стороне дома он тоже решил продлить террасу вдоль всего фасада. Видимо с его точки зрения в этом есть практичность.

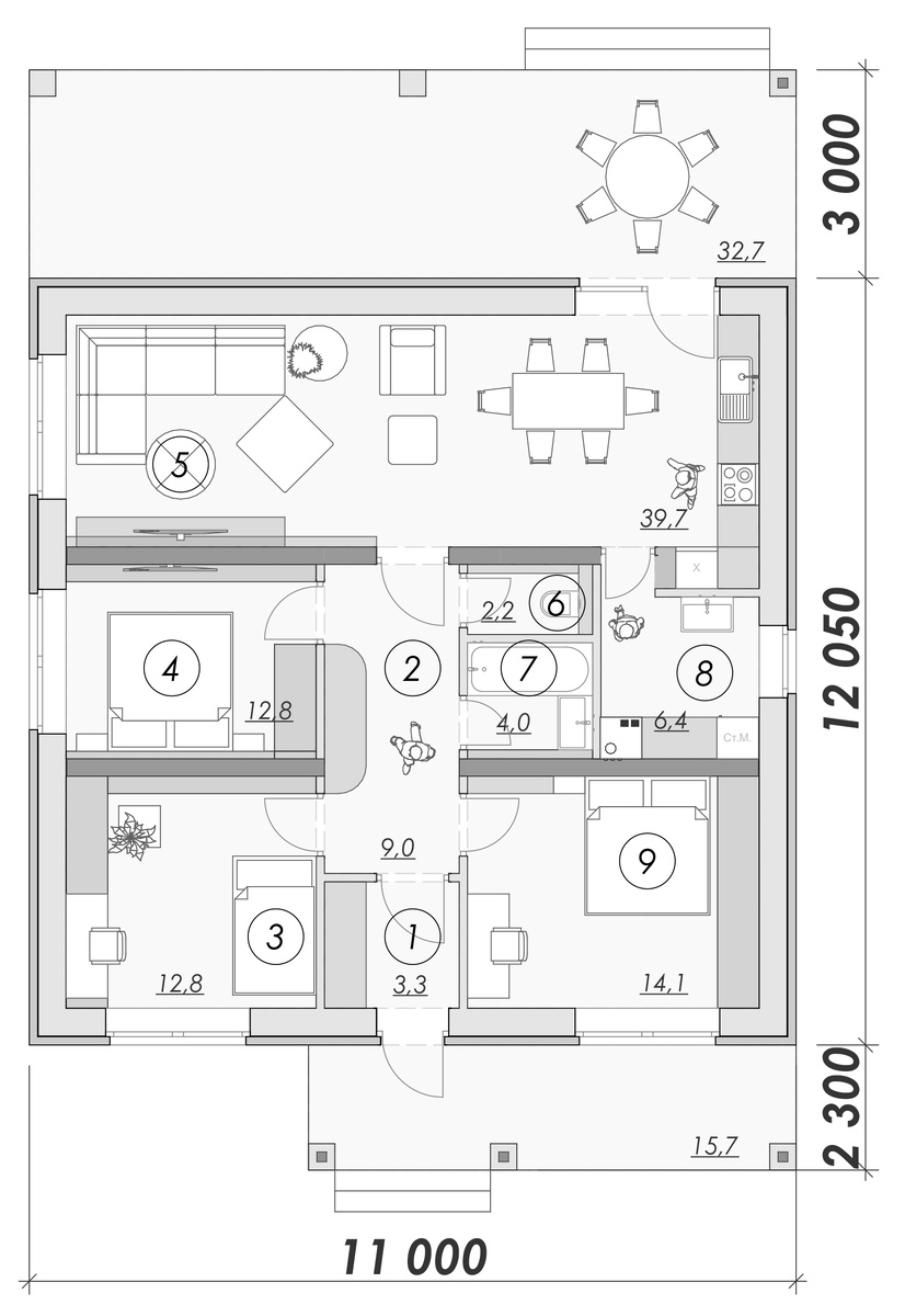
Планировка
Планировка

Разумная планировка с ядром мокрых зон. 3 спальни и единая кухня гостиная. А что ещё надо?

3D Визуализация №2
3D Визуализация №2

Дом заказали в тёмной стильной гамме.

3D Визуализация №3
3D Визуализация №3

Я люблю большие окна и тут видимо меня все тоже поддерживают.

3D Визуализация №4
3D Визуализация №4

Даже не знаю что делать можно на такой террасе. В волейбол играть? Или огурцы под засолку подготавливать?

3D Визуализация №5
3D Визуализация №5

Для тех кто ещё ни разу о нас не слышал.

Халява! Распечатанный цветной альбом проекта дома на формате А3 по цене чашки кофе. Ссылки ниже в комментариях оставляю на Озон и ВБ.