Найти в Дзене

Преображение евродвушки в функциональную евротрешку

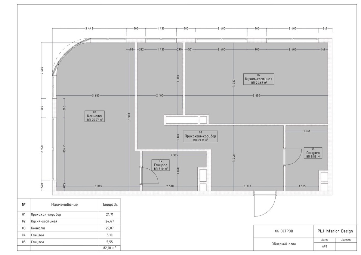
🔥 #ЖКОстров, квартира 84 кв.м. (по замерам 82🥲) ✅ Границы кухни-гостиной и основного санузла сохранены без нарушений ✅ Гостевой санузел разделен на с/у и постирочную, увеличен за счет коридора Таким образом, планировка абсолютно законная и без проблем получает одобрение в БТИ 👌🏼 ✅ В постирочной - колонна стиральной+сушильной машины, шкаф для хранения + техническая мойка, робот-пылесос ✅ Выделена большая гардеробная при входе ✅ Создан приватный блок спален и основного санузла, отгорожен дверью и коридором ✅ Комфортная комната для юноши ✅ Спальня с выделенной большой гардеробной комнатой и зоной для макияжа/ работы ✅ Обособленные зоны кухни-столовой и гостиной Как вам преображение? Оставьте ❤️, если получилось функционально! И как вам новый формат планировки? 3д вид сверху 🫶 За него тоже можно поставить ❤️, красиво же 🥰 #планировка #проекты

Преображение евродвушки в функциональную евротрешку🔥

#ЖКОстров, квартира 84 кв.м. (по замерам 82🥲)

✅ Границы кухни-гостиной и основного санузла сохранены без нарушений

✅ Гостевой санузел разделен на с/у и постирочную, увеличен за счет коридора

Таким образом, планировка абсолютно законная и без проблем получает одобрение в БТИ 👌🏼

✅ В постирочной - колонна стиральной+сушильной машины, шкаф для хранения + техническая мойка, робот-пылесос

✅ Выделена большая гардеробная при входе

✅ Создан приватный блок спален и основного санузла, отгорожен дверью и коридором

✅ Комфортная комната для юноши

✅ Спальня с выделенной большой гардеробной комнатой и зоной для макияжа/ работы

✅ Обособленные зоны кухни-столовой и гостиной

Как вам преображение?

Оставьте ❤️, если получилось функционально!

И как вам новый формат планировки? 3д вид сверху 🫶 За него тоже можно поставить ❤️, красиво же 🥰

#планировка #проекты

-2