Найти в Дзене
ЭВАстрой

Проект индивидуального дома с эксплуатируемой кровлей - 107-99 (П82)

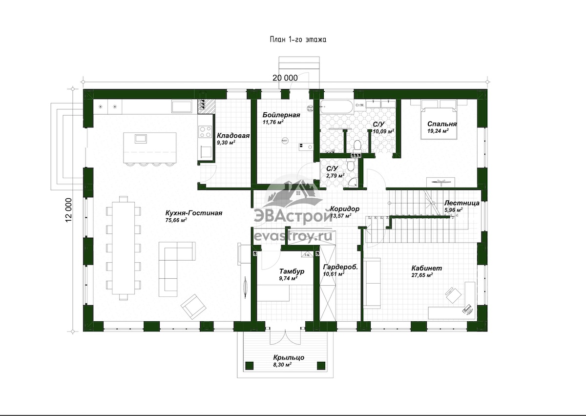
Номер проекта: 107-99 (П82) Разделы проекта: Архитектурный и Конструктивный разделы Узнать о проекте больше можно на сайте evastroy.ru или по телефону +7 (495) 175-30-40 Проект просторного 3-этажного дома (426 м2) — это вдохновение, четкость линий и функциональность; покоряющее очарование европейского стиля с легким привкусом классики. Данное предложение от «Эвастрой» адресовано большой разновозрастной семье; упор сделан на комфорт проживающих. Особенности проекта: 6 отдельных спален, эксплуатируемая кровля, огромная кухня-гостиная, большой кабинет, 7 санузлов, роскошная мастер-спальня, спальня на 1-м этаже. На первом этаже вас гостеприимно встречает просторная кухня-гостиная (75 м2). В гостиную, кроме зоны отдыха, войдет большой обеденный стол на 12 человек. Кухня дополнена островом с мойкой и посадочными местами, вместительной кладовой и выходом на крыльцо. Спальня первого этажа (19 м2) рассчитана на двоих, в ней предусмотрен санузел с ванной, двойной раковиной и стиральной машиной.
Оглавление
Номер проекта: 107-99 (П82)
Разделы проекта: Архитектурный и Конструктивный разделы
Узнать о проекте больше можно на сайте evastroy.ru или по телефону
+7 (495) 175-30-40
  • Общая площадь: 425.72 м2;
  • Габариты дома: 20 x 12 м;
  • Этажность: 3;
  • Фундамент: монолитная ж/б плита-250 мм;
  • Материал стен: газобетонные блоки 500 мм;
  • Перекрытия: монолитное ж/б -200 мм;
  • Крыша: плоская эксплуатируемая;
  • Кровля: наплавляемая кровля;
  • Фасад: фасадная штукатурка, декоративное обрамление рустами;
  • Стиль: европейский.

Проект просторного 3-этажного дома (426 м2) — это вдохновение, четкость линий и функциональность; покоряющее очарование европейского стиля с легким привкусом классики. Данное предложение от «Эвастрой» адресовано большой разновозрастной семье; упор сделан на комфорт проживающих.

Особенности проекта: 6 отдельных спален, эксплуатируемая кровля, огромная кухня-гостиная, большой кабинет, 7 санузлов, роскошная мастер-спальня, спальня на 1-м этаже.

-2

На первом этаже вас гостеприимно встречает просторная кухня-гостиная (75 м2). В гостиную, кроме зоны отдыха, войдет большой обеденный стол на 12 человек. Кухня дополнена островом с мойкой и посадочными местами, вместительной кладовой и выходом на крыльцо. Спальня первого этажа (19 м2) рассчитана на двоих, в ней предусмотрен санузел с ванной, двойной раковиной и стиральной машиной. Здесь может проживать родственная семья или гости. Еще внизу расположен просторный кабинет 27 м2, гардеробная 10 м2, вместительный тамбур 10 м2, бойлерная и санузел.

-3

Пять спален второго этажа отличаются вместимостью и набором удобств. Так, в состав мастер-спальни входит 20-метровый санузел и гардеробная с рабочей зоной. Кроме того, имеется спальня для одного человека (17 м2) с гардеробной и санузлом, спальня для двоих (19 м2) с санузлом, спальня с балконом и большая светлая комната 21 м2. Завершают обстановку постирочная и санузел.

-4

Третий этаж состоит из двух объемов; в одном находится кладовая 23 м2, во втором — душевая и выход на кровлю.

ТЕХНИЧЕСКИЕ РЕШЕНИЯ, ДИЗАЙН

  • Стены: газобетонные блоки 500 + наружная отделка (фасадная штукатурка, рустовый декор);
  • Плоская эксплуатируемая крыша с наплавляемой кровлей;
  • Плитно-монолитный фундамент 250 мм;
  • Монолитное ж/б перекрытие 200 мм;
  • Габариты — 20×12 м.

ДИЗАЙН

Здание выполнено в форме простого прямоугольника, с множеством окон и спокойной отделкой, включающей светло-кремовую штукатурку и русты на углах. Оконные профили выделены контрастным темно-коричневым. Входное крыльцо 8 м2 обрамляют две квадратные колонны, которые тянутся до крыши, поддерживая площадку балкона и широкий портик над ним. С бокового и заднего входов можно попасть, соответственно, в кухню и бойлерную.

проект дома с эксплуатируемой кровлей

Подробнее с проектом можно ознакомиться на сайте evastroy.ru