Найти в Дзене

Планировка евродвушки для молодой семьи с ребёнком.

У домов, как у людей, есть своя душа и своё лицо, на котором отражается их внутренняя сущность. Александр Дюма-отец Итак, дано: Еврооднушка или однокомнатная квартира с увеличенной зоной кухни. Общая площадь с лоджией - 54,5 кв.м. Н потолка = 3.30 м. Кухня - электричество Молодые родители и маленькая дочка 9 месяцев от роду) Задача: Общие пристрастия - кофе, просмотр сериалов, кулинария, воспитание дочки и кошки. В принципе, я бы сказала, что всё почти возможно! Только необходимо расставить приоритеты) главное, понять чему отдаём предпочтение - общей зоне кухни-гостиной или детской. Потому как метраж этих зон зависит только от этого. Планировочное решение - это всегда компромисс! Вариант 1: В данном варианте я предложила организовать второй санузел на площади коридора, оставить большую ванную комнату с банкеткой или комодом - очень удобно, когда есть маленький ребёнок. Уменьшить спальню и за счет этого организовать постирочную-кладовую. Рабочее место может находится как в спальне,
Оглавление
Источник: Пинтрест
Источник: Пинтрест
«У домов, как у людей, есть своя душа и своё лицо, на котором отражается их внутренняя сущность.»
Александр Дюма-отец

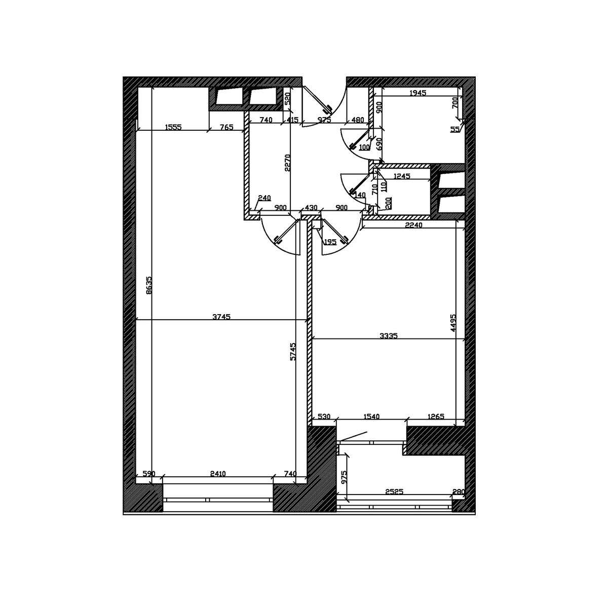
ИСХОДНЫЙ ПЛАН

Исходная планировка однокомнатной квартиры (евродвушка) в МЖК Резиденции Архитекторов
Исходная планировка однокомнатной квартиры (евродвушка) в МЖК Резиденции Архитекторов

ТЕХЗАДАНИЕ

Итак, дано:

Евродвушка или однокомнатная квартира с увеличенной зоной кухни.

Общая площадь с лоджией — 54,5 кв.м.

Н потолка = 3.30 м.
Кухня — электричество
Заказчики — молодые родители и маленькая дочка 9 месяцев от роду)

Задача:

  • организовать спальню для родителей и детскую
  • общую зону кухни-гостиной
  • санузел и ванную комнату с унитазом
  • выделить рабочие места
  • обязательные приспособления для кошки)

Общие пристрастия — кофе, просмотр сериалов, кулинария, воспитание дочки и кошки.

В принципе, я бы сказала, что всё почти возможно! Только необходимо расставить приоритеты) главное, понять чему отдаём предпочтение — общей зоне кухни-гостиной или детской. Потому как метраж этих зон зависит только от этого.

Планировочное решение — это всегда компромисс!

ПЛАНИРОВКА

Вариант 1:

  • В данном варианте я предложила организовать второй санузел на площади коридора, оставить большую ванную комнату с банкеткой или комодом — очень удобно, когда есть маленький ребёнок. Уменьшить спальню и за счет этого организовать постирочную-кладовую. Рабочее место может находится как в спальне, так и на лоджии. Детская в этом варианте увеличенная.

Вариант 2:

  • Здесь детская комната остаётся, как в предыдущем варианте. За счет части кухни-гостиной делаем постирочную-кладовую при входе в квартиру. Ванная комната и санузел остаются, как в исходной планировке. А в спальне я выделила место для гардеробной)

Вариант 3:

  • Спальня остаётся, как в предыдущем варианте) При входе предлагаю разместить большой встроенный шкаф. Уменьшаем детскую комнату и увеличиваем общую зону кухни-гостиной. Ванная комната и санузел, как в исходной планировке.

Вариант 4:

  • В этом варианте — я чуть увеличила детскую и в спальне родителей спрятала кровать за выступ, лишила их гардеробной, зато поставила большой глубокий встроенный шкаф) кладовка тоже исчезла и, соответственно, стиральная машина переехала на кухню.

Вариант 5:

  • Ооо, здесь решила поменять местами детскую и спальню родителей) и, если с детской не было вопросов, даже прикинула расстановку мебели на вырост, то в спальне родителей пришлось покрутить кровать)

Как думаете, други — какой вариант был согласован?😉

Чур, не подсматривать)

Согласованный вариант
Согласованный вариант

Для тех, кто хочет улучшить качество жизни — пишите мне, разберёмся)

Присоединяйтесь ко мне здесь и в Телеграм, чтобы не пропустить интересные проекты!