Найти в Дзене

Любите современный стиль домов? Посмотрите этот проект

Двухэтажный дом из теплой керамики в стиле хай-тек. Чёткие геометрические формы и прямые линии. Обилие стекла, эксплуатируемая крыша. Этот проект не только современен, но и, на наш взгляд, удобен. Площадь 311м2; Площадь застройки: 15Х19 М Монолитная фундаментная ж/б плита 250(Н) мм. 4 спальни и 3 санузла. Первый этаж: пристроенный гараж, большая гостиная с панорамными окнами и выходом на террасу (~40м2), спальня на первом этаже - все это очень удобно. Второй этаж: большая мастер-спальня с гардеробной и ванной комнатой, две спальни, еще одна общая ванная комната, отдельная постирочная и две просторных террасы. Террасы в загородном доме - приятный бонус времяпрепровождения. Мы написали несколько статей о террасах. Их можно почитать здесь: https://dzen.ru/a/ZznbH0Qx8EJxeM1X и здесь https://dzen.ru/a/Z3lKzU2WARlx0ZS0. Подробнее об этом проекте, комплектации, цене строительства вы можете посмотреть на нашем сайте Планистрой по этой ссылке https://planistroy.ru/project/303-a209-2. Еще 9

Двухэтажный дом из теплой керамики в стиле хай-тек. Чёткие геометрические формы и прямые линии. Обилие стекла, эксплуатируемая крыша.

Этот проект не только современен, но и, на наш взгляд, удобен.

Площадь 311м2;

Площадь застройки: 15Х19 М

Монолитная фундаментная ж/б плита 250(Н) мм.

4 спальни и 3 санузла.

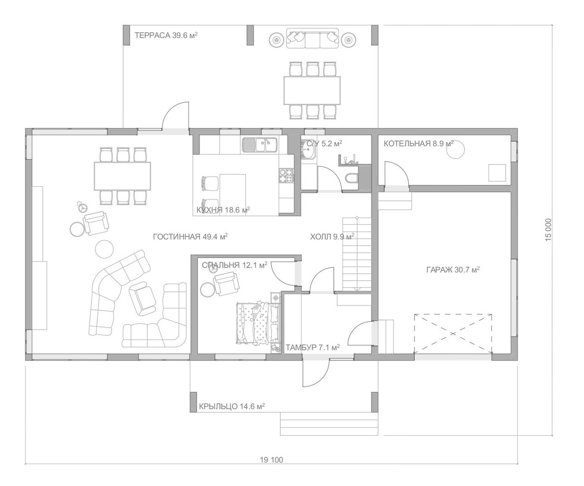
Первый этаж: пристроенный гараж, большая гостиная с панорамными окнами и выходом на террасу (~40м2), спальня на первом этаже - все это очень удобно.

План 1-го этажа
План 1-го этажа

Второй этаж: большая мастер-спальня с гардеробной и ванной комнатой, две спальни, еще одна общая ванная комната, отдельная постирочная и две просторных террасы.

План 2-го этажа
План 2-го этажа

Террасы в загородном доме - приятный бонус времяпрепровождения.

Мы написали несколько статей о террасах. Их можно почитать здесь: https://dzen.ru/a/ZznbH0Qx8EJxeM1X и здесь https://dzen.ru/a/Z3lKzU2WARlx0ZS0.

Подробнее об этом проекте, комплектации, цене строительства вы можете посмотреть на нашем сайте Планистрой по этой ссылке https://planistroy.ru/project/303-a209-2.

Еще 900 разных проектов можно увидеть на нашем сайте Планистрой, выставив свои критерии поиска, пройдя по этой ссылке www.planistroy.ru

Спасибо за ваши лайки!