Найти в Дзене
Все о ремонте квартир

Приятный интерьер «хрущевки» 44 м2, фото до и после

Типичная «двушка» в доме старого фонда находится в одном из спальных районов Москвы. Ее владелицей стала взрослая самодостаточная женщина, которой удалось купить жилье по «вкусной» цене – ниже рыночной, но квартира требовала немаленьких вложений, так как капитального ремонта здесь не было никогда. Сразу использовать большую сумму для полного обновления «новой» недвижимости женщина не могла, поэтому ремонт длился целых четыре года – поэтапно. Первым делом требовался дизайн-проект с перепланировкой и оформлением интерьера, за его созданием, хозяйка квартиры обратилась к дизайнеру Ольге Цуриковой. По проекту которой и был сделан ремонт, Ольга контролировала строительные работы, чтобы все шло по проекту, принимала активное участие в закупке материалов, мебели и т. д., а также украшала квартиру искусством, текстилем, декором… Главные пожелания заказчицы: сохранить аутентичность и историю дома, объединить кухню с гостиной, спальню оставить в исходных пределах, входную дверь сдела
Оглавление

Типичная «двушка» в доме старого фонда находится в одном из спальных районов Москвы. Ее владелицей стала взрослая самодостаточная женщина, которой удалось купить жилье по «вкусной» цене – ниже рыночной, но квартира требовала немаленьких вложений, так как капитального ремонта здесь не было никогда.

Сразу использовать большую сумму для полного обновления «новой» недвижимости женщина не могла, поэтому ремонт длился целых четыре года – поэтапно.

Первым делом требовался дизайн-проект с перепланировкой и оформлением интерьера, за его созданием, хозяйка квартиры обратилась к дизайнеру Ольге Цуриковой. По проекту которой и был сделан ремонт, Ольга контролировала строительные работы, чтобы все шло по проекту, принимала активное участие в закупке материалов, мебели и т. д., а также украшала квартиру искусством, текстилем, декором…

Главные пожелания заказчицы: сохранить аутентичность и историю дома, объединить кухню с гостиной, спальню оставить в исходных пределах, входную дверь сделать красного цвета, а мебель в кухне яро-синего.

Планировка

Чтобы объединить кухню с гостиной в газифицированном доме нужно поменять газовую плиту на электрическую, для этого необходимо узнать в управляющей компании возможно ли увеличить мощность. Если это возможно, то обращаетесь в Мосгаз для оформления всех документов на отключение газа. Увеличения мощности электричества можно получить в организациях, которые этим занимаются.

В данном случае, то есть в этом доме был проведен капитальный ремонт и соседи сверху отказались от газа, соответственно в этой квартире убрали даже транзитную трубу. После получения документов и разрешения на перепланировку – дизайн-проект согласовали с заказчицей.

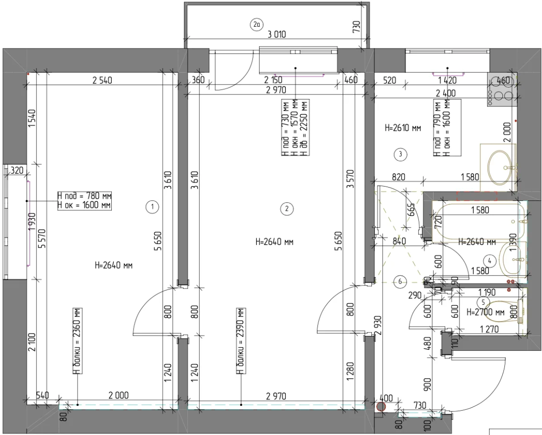
Типичная планировка «хрущевской двушки» до перепланировки

Исходный план
Исходный план

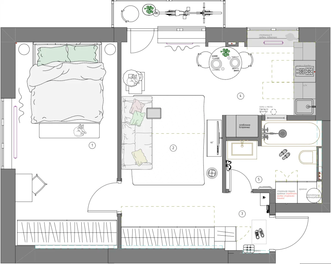
В процессе создания новой планировки, рассматривали несколько вариантов – согласовали вот этот план.

План квартиры после перепланировки и установки мебели
План квартиры после перепланировки и установки мебели

В принципе – это популярное планировочное решение для таких квартир: за счет узкого коридора, ведущего в кухню, увеличили площадь санузла, со стороны кухни в нише установили холодильник; кухню объединили с комнатой.

Прихожая

Так выглядела прихожая до демонтажа старых покрытий со стен, потолка и пола.

Фото прихожей до ремонта
Фото прихожей до ремонта

Сейчас, когда ремонт завершен, квартира полностью обставлена мебелью, наполнена декором, текстилем, искусством - кажется, что это совершенно другое жилье! Кстати, входную дверь сделали красного цвета, как и хотела заказчица, и она красиво вписалась в светлый интерьер с нотками классического стиля.

Вид из спальни на входную зону
Вид из спальни на входную зону
Прихожая
Прихожая

Кухня-гостиная

Стандартная картина, примерно так выглядит жилье старого фонда, если в нем не делали кап. ремонт.

-6

Что было сделано в процессе ремонта:

демонтаж всех старых покрытий и ненесущих перегородок;
заменили: окна, радиаторы, системы отопления и водоснабжения, электрику;
установили новые перегородки из пазогребневых плит;
стены выровняли по маякам, зашпатлевали, наклеили молдинги и окрасили краской приятных оттенков бежевого цвета;
потолки после выравнивания, шпаклевки и установки карниза окрасили в белый цвет;
паркет в спальне и гостиной сохранили и отреставрировали;
пол в кухне и прихожей оформили плиткой;
полный ремонт ванной комнаты.

Сейчас кухня выглядит совсем иначе! Яркая стильная и функциональная

На фото дизайнер Ольга Цурикова
На фото дизайнер Ольга Цурикова
Пожелание заказчицы - кухонная мебель синего цвета
Пожелание заказчицы - кухонная мебель синего цвета

Гостиная

Такой была гостиная до полной переделки.

Единственный плюс - это хороший паркет на полу
Единственный плюс - это хороший паркет на полу

Сейчас - это светлая красивая комната с нотками классики, атмосферой тепла и уюта.

Интерьер построен на контрасте светлой нейтральной базы и выразительных цветовых акцентов
Интерьер построен на контрасте светлой нейтральной базы и выразительных цветовых акцентов
Балкон оставили незастекленным, там можно выпить чашешку утреннего кофе
Балкон оставили незастекленным, там можно выпить чашешку утреннего кофе
Вид из кухни в гостиную
Вид из кухни в гостиную

Спальня

Комната выглядела примерно также, как и предыдущие

Фото до ремонта
Фото до ремонта

В процессе отделочных работ: при использовании молдингов и светлого цвета стен, создали визуальное ощущение объёма и расширения комнаты.

Кадр в процессе ремонта
Кадр в процессе ремонта

Спальня получилась приятная, светлая и комфортная

-15

Мне очень нравится эта спальня:

Такие теплые цвета, мягкие фактуры, винтаж, дерево, акценты в маленьких деталях. Здесь все говорит о том, что можно расслабиться и отдохнуть.
-16

Кстати, здесь был потрясающий старинный шкаф, который оставили и органично вписали в новый интерьер.

Небольшой столик, который можно использовать для вечерней работы дома.
Небольшой столик, который можно использовать для вечерней работы дома.

Вот его полное фото, ну - красота же! Люблю, когда старое мебели "дают новую жизнь", а не выбрасывают как хлам.

Старинный шкаф, которому дали шанс на новую жизнь
Старинный шкаф, которому дали шанс на новую жизнь

Мне очень понравились картины в этом проекте, яркие и вполне уместные - сочетают все оттенки интерьера, добавляют изюминки и индивидуальности.

Вид при входе в спальню
Вид при входе в спальню

Ванная комната

Изначально - это было два маленьких раздельных помещения со старой отделкой: краска и плитка от застройщика.

Ванная комната до ремонта
Ванная комната до ремонта
Санузел до ремонта
Санузел до ремонта

Сейчас - это просторная комната с качественной отделкой и красивыми элементами классики.

Фото ванной комнаты
Фото ванной комнаты
Фото после ремонта
Фото после ремонта

Хозяйка квартиры в полном восторге от проделанной работы и, конечно, результатом, которого пришлось ждать четыре года. Зато сейчас, она может наслаждаться теплом и уютом своей "новой-старой" квартиры и, жить в ней с комфортом!

На этом небольшая экскурсия по "хрущевской двушке" завершена. Понравилось ли вам такое преображение!?

Спасибо, что заглянули в мою студию! Всем желаю Добра и Удачи!