Найти в Дзене

Ваш дизайнер прислал план, а там - ребус. Как читать чертежи и не сойти с ума

Короткий гид по самым важным условным обозначениям, который вернет вам спокойствие и понимание процесса.
Вы получили от дизайнера первый вариант планировки или рабочий чертеж, открыли файл и… почувствовали легкую панику. Стрелочки, пунктиры, прямоугольники с крестиками, непонятные буквы. Знакомо?
Поздравляю -вы увидели профессиональный язык дизайнера, его основной инструмент. Читать эти

Короткий гид по самым важным условным обозначениям, который вернет вам спокойствие и понимание процесса.

Вы получили от дизайнера первый вариант планировки или рабочий чертеж, открыли файл и… почувствовали легкую панику. Стрелочки, пунктиры, прямоугольники с крестиками, непонятные буквы. Знакомо?

Поздравляю -вы увидели профессиональный язык дизайнера, его основной инструмент. Читать эти «иероглифы» на самом деле просто, если знать ключ. Давайте расшифруем его вместе.

План - это не просто «где будет стоять диван». Это точная инструкция для СТРОИТЕЛЕЙ и дорожная карта для вас. Понимая его, вы перестаете быть сторонним наблюдателем и становитесь полноценным соучастником создания своего дома.

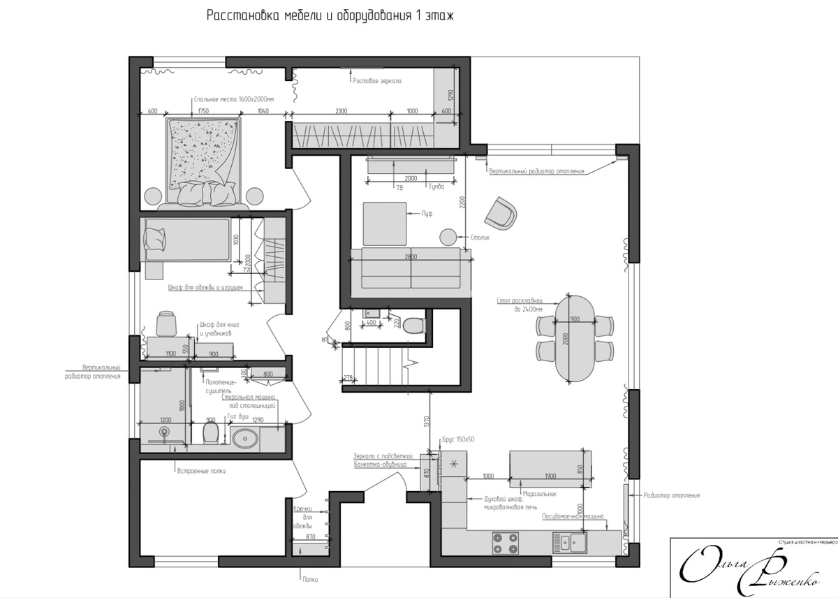
Азбука планировки: стены, дверь, окно

С этого начинается любой план.

Стены: Чаще всего это две параллельные линии. 

Толстая сплошная -несущая стена (ее нельзя сносить без специальных разрешений).

Тонкая -перегородка.

Двери: Изображаются в виде дуги, показывающей траекторию открывания. Это критически важно для расстановки мебели! Обратите внимание, куда она «распахивается».

Окна: Прямоугольник в стене (часто с двойной линией). Иногда штриховкой показывают материал (например, черным - оконный блок).

Электрика и свет: где живет розетка

Это самый «запутанный» слой, но и самый важный для комфорта.

Розетки: Обычно это полукруг, «приставленный» к стене, или прямоугольник с буквами внутри. 

Буквы - ключ к типу: 

Р — обычная розетка, 

РВ — влагозащищенная (для санузла, кухни), Т — телефонная, 

TV — телевизионная,  

Интернет — компьютерная.

Выключатели: 

Круг с галочкой или черточкой. Часто соединяются линией с тем элементом, которым управляют (например, с люстрой).

Осветительные приборы: 

Крестик в круге - точечный светильник. 

Круг побольше - люстра или потолочный светильник. 

Важно:На плане видно их точное расположение, что поможет избежать ситуации «люстра висит не над столом».

Мебель и сантехника: расстановка сил

Эти обозначения чаще всего интуитивно понятны, потому что повторяют форму предметов. Но есть нюансы:

Диваны, кровати, шкафы: Показываются упрощенно. Обратите внимание на габариты  масштаб соблюден, это помогает оценить, не будет ли тесно.

Кухня:

Прямоугольник с буквой Х —варочная поверхность. 

Два параллельных прямоугольника — духовой шкаф. 

Часто подписывается «мойка», «посудомоечная машина» (ПММ).

Сантехника:  Унитаз, раковина, душевая кабина или ванна имеют свои стандартные пиктограммы.

Высота и движение: что показывают линии?

Пунктирная линия: Может означать многое: нишу в потолке (если на плане потолка), элемент, расположенный на высоте (например, подвесную полку или TV), или зонирование пространства.

Размерные линии (цепочки цифр): Ваше главное оружие. Они показывают точное расстояние между стенами, проемами, объектами. Всегда проверяйте ключевые габариты.

Разрывы и отметки уровня: Стрелка с цифрой (например, +15) — это отметка высоты относительно уровня пола. Часто используется для обозначения подиумов или ступеней.

Что делать, если все равно непонятно?

Главное правило: Никогда не стесняйтесь спрашивать! Дизайнер заинтересован в том, чтобы вы всё понимали.

1.  Сверяйтесь с легендой. В углу каждого профессионального чертежа есть табличка с условными обозначениями конкретно этого проекта.

2.  Задавайте вопросы по пунктам. Не «мне ничего не понятно», а «объясните, пожалуйста, что значат вот эти пунктиры в гостиной и куда открывается эта дверь?».

3.  Просите визуализацию. План — это вид сверху. Чтобы понять объем, всегда полезно смотреть параллельно на 3D-картинки или эскизы.

Умение читать план - это сила на время ремонта. Вы перестаете слепо доверять и начинаете осознанно участвовать в процессе, предотвращаете ошибки и в итоге получаете именно тот результат, о котором мечтали. А можно упростить себе жизнь и делегировать своему дизайнеру интерьера. Авторский надзор экономит ваше время, силы и нервы на 100%. 

А вы как справлялись со сложными чертежами? Сразу было понятно или обращались за разъяснениями к своему дизайнеру ?

#дизайнпроект #ремонт #чтениечертежей #условныеобозначения #планировка #советыдизайнера #каксделатьремонт #интерьер #архитектура