Добавить в корзинуПозвонить
Найти в Дзене

Как рождается проект: от чертежей к пониманию

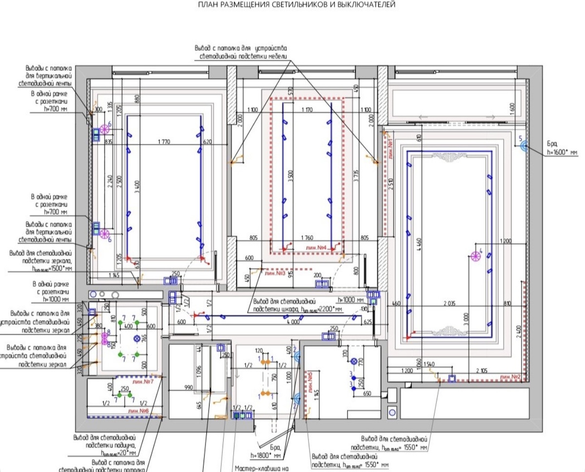
Радуюсь прогрессу! Стадия рабочих чертежей по проекту «Clever Park» уже на финишной прямой. Сейчас, например, согласовываю раздел электрики с заказчицей - это важно, чтобы все розетки и выключатели оказались именно там, где нужно.
Кстати, это ключевой момент в любой работе: полное взаимопонимание.Чертежи, схемы, планы - они могут быть сложными. Поэтому я всегда на связи и готова лично

Радуюсь прогрессу! Стадия рабочих чертежей по проекту «Clever Park» уже на финишной прямой. Сейчас, например, согласовываю раздел электрики с заказчицей - это важно, чтобы все розетки и выключатели оказались именно там, где нужно.

Кстати, это ключевой момент в любой работе: полное взаимопонимание.Чертежи, схемы, планы - они могут быть сложными. Поэтому я всегда на связи и готова лично встретиться, чтобы пройтись по каждому листу и спокойно все объяснить. Для меня важно, чтобы вы не просто видели линии на бумаге, а четко представляли будущий результат.

#дизайнпроект #ремонт #CleverPark #архитектура #интерьер #совместнаяработа #ясность #ольгарыженко #дизайнеринтерьера #авторскийнадзор