Найти в Дзене

Антресольный этаж в квартире: как построить, согласовать и использовать

Антресоль позволяет увеличить площадь квартиры почти в полтора раза. Это не полки для хранения, а полноценное пространство для спальни, кабинета или гардеробной. Рассказываем о требованиях к конструкции и согласовании в Санкт-Петербурге. Смотрите подробный разбор с примером проекта и схемами конструкций Антресоль — это площадка внутри квартиры, которая занимает не более 40% от площади помещения и не считается отдельным этажом. На площадку ведёт стационарная лестница. Подходит тем, у кого потолки от 4,4 м — для гардеробной, кабинета или холла. Для комнаты или кухни над и под площадкой нужна высота от 5,2 м. Такие квартиры в Петербурге встречаются в дореволюционных домах, сталинках и новостройках премиум-класса. Устройство антресоли — это перепланировка. В Санкт-Петербурге необходимо получить разрешение в МВК района, а изменения зафиксировать в ЕГРН. Высота помещения. Минимум 4,4 м: высота под и над площадкой — от 2,1 м (для вспомогательных помещений) плюс «пирог» площадки 20 см. Для кух
Оглавление

Антресольный этаж в квартире: как построить, согласовать и использовать

Антресоль позволяет увеличить площадь квартиры почти в полтора раза. Это не полки для хранения, а полноценное пространство для спальни, кабинета или гардеробной. Рассказываем о требованиях к конструкции и согласовании в Санкт-Петербурге.

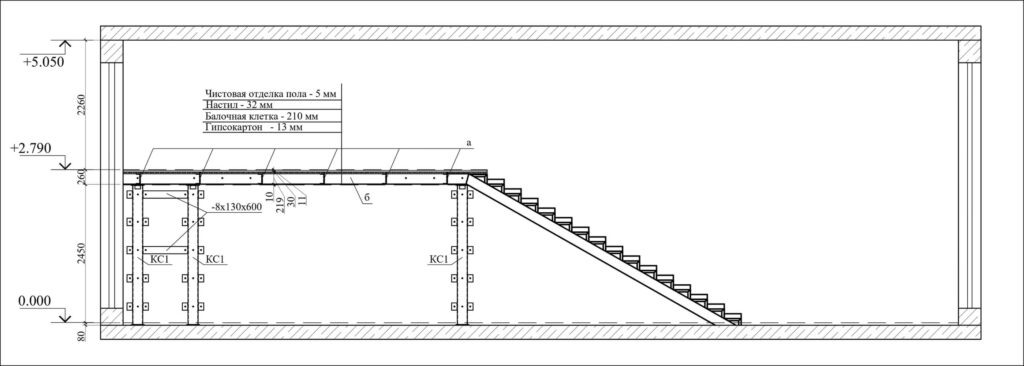
Смотрите подробный разбор с примером проекта и схемами конструкций

Что такое антресоль и кому подходит

Антресоль — это площадка внутри квартиры, которая занимает не более 40% от площади помещения и не считается отдельным этажом. На площадку ведёт стационарная лестница.

Подходит тем, у кого потолки от 4,4 м — для гардеробной, кабинета или холла. Для комнаты или кухни над и под площадкой нужна высота от 5,2 м. Такие квартиры в Петербурге встречаются в дореволюционных домах, сталинках и новостройках премиум-класса.

Устройство антресоли — это перепланировка. В Санкт-Петербурге необходимо получить разрешение в МВК района, а изменения зафиксировать в ЕГРН.

Технические требования к конструкции

Высота помещения. Минимум 4,4 м: высота под и над площадкой — от 2,1 м (для вспомогательных помещений) плюс «пирог» площадки 20 см. Для кухонь и комнат — от 2,5 м сверху и снизу, итого от 5,2 м.

Лестница. Только стационарная: угол наклона не более 38,7°, ступени высотой от 20 см и глубиной от 25 см. Ширина марша — 70 см для вспомогательных помещений, 90 см — если наверху комната или кухня.

Нагрузки. Железобетонные перекрытия новостроек выдерживают 600–800 кг/м². Деревянные балки старого фонда — всего 150–200 кг/м², поэтому перед проектированием требуется вскрытие участка пола и обследование балок.

Типы конструкций

  • Опорные — площадка на металлических стойках. Самый распространённый и надёжный вариант.
  • Безопорные — крепление к несущим стенам, эффект «парения». Подходит не для всех зданий.
  • Комбинированные — часть на стойках, часть на стенах. Баланс надёжности и эстетики.
Инженер-конструктор должен выполнить расчёты перед строительством — без них площадка может обрушиться и повредить несущие конструкции здания.

Стоимость проектирования и согласования

Минимальные расценки компании PEREPLAN:

  • Разработка проектной документации — от 80 000 руб.
  • Согласование перепланировки — от 100 000 руб.

Итоговая стоимость зависит от особенностей объекта и объёма работ.

-2

Как согласовать антресоль в Петербурге

  1. Обследование объекта — обмеры помещения, оценка возможности установки.
  2. Создание проекта — в организации с членством в СРО.
  3. Подача документов в МВК — через Госуслуги СПб и в бумажной форме в администрацию района.
  4. Получение разрешения — комиссия проверяет соответствие нормам и выдаёт решение.
  5. Акт ввода в эксплуатацию — кадастровый инженер составляет обмерный план, направляет в МВК.
  6. Регистрация в Росреестре — технический план передаётся в Росреестр для фиксации изменений в ЕГРН.

Не хотите проходить 6 этапов самостоятельно? Возьмём согласование на себя — от проекта до выписки ЕГРН

Плюсы и минусы

Плюсы: увеличение площади до полутора раз (новые метры фиксируются в ЕГРН), зонирование без глухих стен.

Минусы: жёсткие требования к высоте потолков (от 4,4 м), риски в старом фонде, ограничения по «мокрым» зонам.

Итог

Антресоль — способ получить дополнительные метры без переезда. Однако это перепланировка: в Санкт-Петербурге нужно разрешение МВК, а проект должна разработать организация с членством в СРО. Без расчётов инженера-конструктора строить площадку опасно — перекрытия могут не выдержать нагрузку.

Отправьте адрес — скажем, подойдёт ли квартира для антресоли. Это бесплатно