Найти в Дзене

Трёхкомнатная квартира с готовым ремонтом: комплектация.

Ещё актуальный вариант сотрудничества на сегодняшний момент - это комплектация объекта. Сама комплектация существует и в стандартном дизайн-проекте. Но там другое) В данном варианте я говорю о наполнении объекта, где уже есть ремонт. То есть, у вас есть квартира или дом с ремонтом от застройщика, или вы приобрели квартиру на вторичном рынке уже с ремонтом, или вы снимаете квартиру с отделкой, или вы сделали ремонт, но не знаете что делать дальше) И... она пустая... Без мебели и светильников, без текстиля, без декора и всяких разных мелочей. Вот об этом и пойдёт речь сегодня) Итак, есть трёхкомнатная квартира с ремонтом. Проживать будут: мама-папа, бабушка, двое детей: один совсем маленький и дочка-школьница. Исходя из состава семьи и была определена задача: сделать расстановку мебели и комплектовать объект, чтобы всем всё понравилось! Незыблемые данности: готовая кухня и сантехника. Не трогаем! Сначала моя любимая планировка, в данном случае - расстановка мебели. Листайте галерею, и
Оглавление
Всё начинается с вдохновения. Источник изображения: Пинтрест
Всё начинается с вдохновения. Источник изображения: Пинтрест

Техзадание.

Ещё актуальный вариант сотрудничества на сегодняшний момент — это комплектация объекта.

Сама комплектация существует и в стандартном дизайн-проекте. Но там другое)

В данном варианте я говорю о наполнении объекта, где уже есть ремонт. То есть, у вас есть квартира или дом с ремонтом от застройщика, или вы приобрели квартиру на вторичном рынке уже с ремонтом, или вы снимаете квартиру с отделкой, или вы сделали ремонт, но не знаете что делать дальше) И... она пустая... Без мебели и светильников, без текстиля, без декора и всяких разных мелочей. Вот об этом и пойдёт речь сегодня)

Итак, есть трёхкомнатная квартира с ремонтом. Проживать будут: мама-папа, бабушка, двое детей: один совсем маленький и дочка-школьница.
Исходя из состава семьи и была определена задача: сделать расстановку мебели и комплектовать объект, чтобы всем всё понравилось!

Незыблемые данности: готовая кухня и сантехника. Не трогаем!

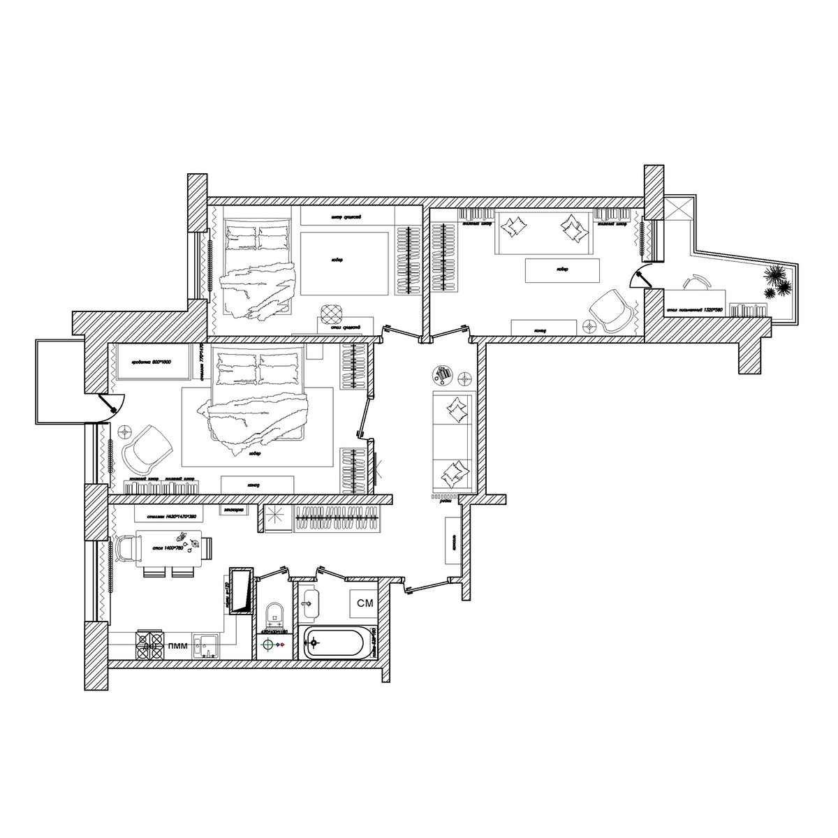
Сначала моя любимая планировка, в данном случае — расстановка мебели.

Планировка.

Листайте галерею, изучайте —спрашивайте, если что)

Деление по комнатам мы определили сразу, поэтому задача состояла в том, чтобы для каждого сделать свой маленький уютный мир! И удобный)

Покрутив и примерив варианты, мы согласовали расстановку.

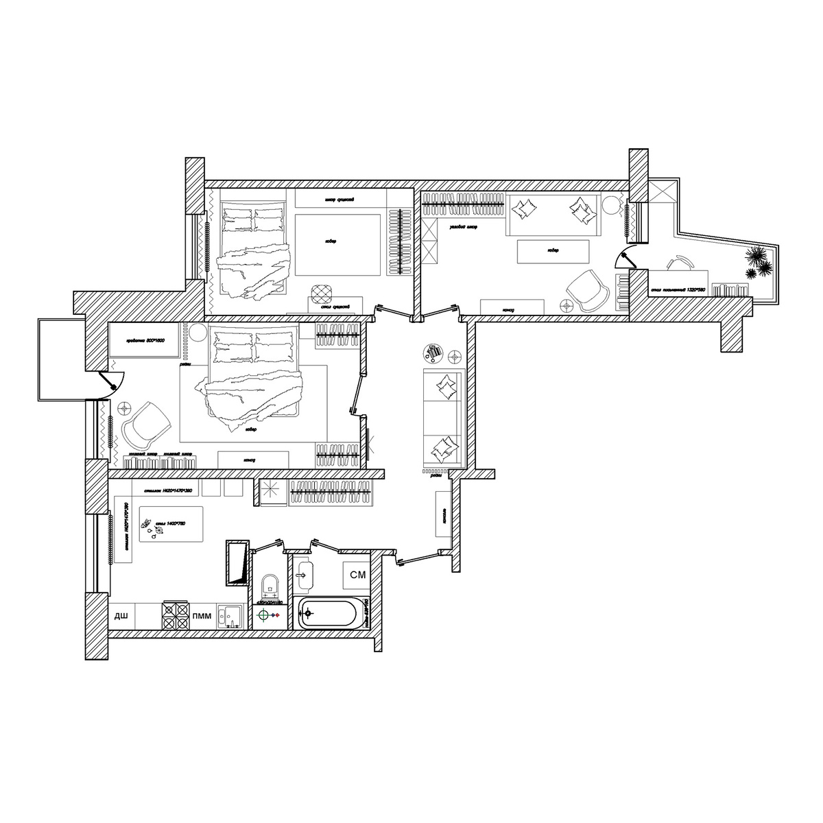
Согласованный вариант.
Согласованный вариант.

Коллаж.

И, конечно, самое приятное — это комплектация. Заказчику всегда интересно — что ему предложат) тем более не надо мучиться и искать самому, пытаясь параллельно всё связать или прийти к общей стилистике.

Коллаж.
Коллаж.

Как вам такое сотрудничество?

Я всегда рекомендовала бы обращаться к специалистам, чтобы не тратить своё время и деньги зря. И иметь предсказуемый результат!

Для тех, кто хочет улучшить качество своей жизни — пишите мне, разберемся!

Присоединяйтесь ко мне здесь и в Телеграм!