Найти в Дзене
Business Class

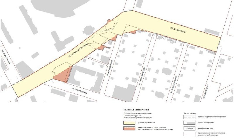
Министерство по управлению имуществом и градостроительной деятельности Пермского края утвердило документацию по планировке и межеванию

территории для реконструкции ул. Космонавта Беляева. Речь идет о строительстве нового участка дороги от ул. Комбайнеров до ул. Шахтерской и соединении ул. Космонавта Беляева с проспектом Декабристов. Предполагается устройство проезжей части шириной от 39 до 60 метров и протяженностью ориентировочно 657 метров, а также пешеходных тротуаров. Рассматривается возможность организации на участке четырех полос для движения автотранспорта. Это мероприятие по развитию дорожной сети включено во вторую очередь реализации Генерального плана Перми (до 2034 года). Строительство нового участка дороги за спорткомплексом «Олимпия», по предварительной оценке, потребует изъятия 12 земельных участков. Схема в тексте: проект планировки

Министерство по управлению имуществом и градостроительной деятельности Пермского края утвердило документацию по планировке и межеванию территории для реконструкции ул. Космонавта Беляева. Речь идет о строительстве нового участка дороги от ул. Комбайнеров до ул. Шахтерской и соединении ул. Космонавта Беляева с проспектом Декабристов.

Предполагается устройство проезжей части шириной от 39 до 60 метров и протяженностью ориентировочно 657 метров, а также пешеходных тротуаров. Рассматривается возможность организации на участке четырех полос для движения автотранспорта.

Это мероприятие по развитию дорожной сети включено во вторую очередь реализации Генерального плана Перми (до 2034 года).

Строительство нового участка дороги за спорткомплексом «Олимпия», по предварительной оценке, потребует изъятия 12 земельных участков.

Схема в тексте: проект планировки