Найти в Дзене

Заозерный Deluxe - это из тех домов, про которые говорят: «вот тут бы я жил(а

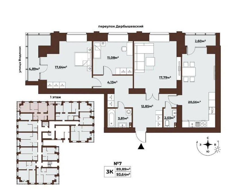
)». Дом уже сдан, люди заехали, жизнь идёт - никакого ожидания и стройки под окнами. Формат клубный, не муравейник: мало квартир, спокойные соседи, тишина и ощущение уюта. Для тех, кому важно качество жизни, а не просто квадратные метры. Что нравится клиентам больше всего: ✅ закрытая территория и безопасность ✅ подземный паркинг ✅ город рядом, но без городского шума ✅ квартиры в white box - делай под себя, как хочется, а не «как сделали за тебя» Всего 85 квартир, 8 этажей. Красивый вход, консьерж, колясочная, лапомойка (да, даже про собак подумали 🐶), зоны отдыха - всё аккуратно и по делу. Планировки классные: просторные кухни, лоджии, спальни нормального размера, есть варианты с перепланировкой и даже двухуровневые квартиры со вторым светом - очень эффектно вживую. Если хочется спокойный, качественный дом, а не просто «квартиру в городе» - это как раз тот самый вариант. Подобрать планировку, показать, рассказать все нюансы - пишите @am_anikina , с радостью помогу

Заозерный Deluxe - это из тех домов, про которые говорят: «вот тут бы я жил(а)».

Дом уже сдан, люди заехали, жизнь идёт - никакого ожидания и стройки под окнами.

Формат клубный, не муравейник: мало квартир, спокойные соседи, тишина и ощущение уюта. Для тех, кому важно качество жизни, а не просто квадратные метры.

Что нравится клиентам больше всего:

✅ закрытая территория и безопасность

✅ подземный паркинг

✅ город рядом, но без городского шума

✅ квартиры в white box - делай под себя, как хочется, а не «как сделали за тебя»

Всего 85 квартир, 8 этажей.

Красивый вход, консьерж, колясочная, лапомойка (да, даже про собак подумали 🐶), зоны отдыха - всё аккуратно и по делу.

Планировки классные:

просторные кухни, лоджии, спальни нормального размера,

есть варианты с перепланировкой и даже двухуровневые квартиры со вторым светом - очень эффектно вживую.

Если хочется спокойный, качественный дом, а не просто «квартиру в городе» - это как раз тот самый вариант.

Подобрать планировку, показать, рассказать все нюансы - пишите @am_anikina , с радостью помогу

-2
-3