Найти в Дзене

Детская комната для девочек: планировка и коллаж.

Очень часто приходит запрос на планировку и декорирование отдельных помещений, как офлайн, так и удалённо. Я практикую такое и всегда себе желаю доверия в сотрудничестве. Это важно, не устану это повторять - Дизайнеру с Заказчиком должно быть комфортно, как и наоборот. Обе стороны должны быть на одной волне, как говорится. В данном проекте была детская комната с готовым ремонтом, но для того, чтобы оптимально использовать площадь мама обратилась ко мне. Я предложила несколько вариантов расстановки мебели, был выбран самый подходящий и уже доработан до деталей) В галереи можно посмотреть варианты. Изучайте - задавайте вопросы! Может быть и вам пригодятся идеи по планированию детской! И согласованный вариант - это третий, чуть скорректированный) убрали реечные перегородки, но на кровати добавили легкие балдахины, чтобы создать ощущение уединённости. А для того, чтобы было понятно что покупать, я сделала коллаж с конкретными предметами интерьера и чек-листом где, что, почём) очень удоб
Оглавление

Цветовая гамма, как концепция для комнаты девочек. Источник: Пинтерест
Цветовая гамма, как концепция для комнаты девочек. Источник: Пинтерест

Очень часто приходит запрос на планировку и декорирование отдельных помещений, как офлайн, так и удалённо. Я практикую такое и всегда себе желаю доверия в сотрудничестве. Это важно, не устану это повторять - Дизайнеру с Заказчиком должно быть комфортно, как и наоборот. Обе стороны должны быть на одной волне, как говорится.

В данном проекте была детская комната с готовым ремонтом, но для того, чтобы оптимально использовать площадь мама обратилась ко мне.

Планировка.

Я предложила несколько вариантов расстановки мебели, был выбран самый подходящий и уже доработан до деталей)

В галереи можно посмотреть варианты. Изучайте - задавайте вопросы! Может быть и вам пригодятся идеи по планированию детской!

  • 1 вариант. Классическая расстановка мебели. Кровати ставим под углом к друг другу. Рабочую зону располагаем вдоль одной стены.
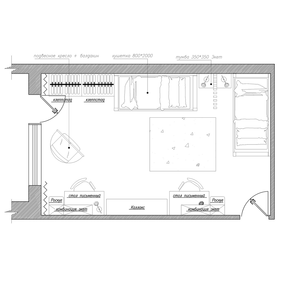
  • 2 вариант. Кровати со шкафами перемещаются на противоположные стены ближе к окну и отделяются реечной перегородкой от рабочей зоны и от входа.
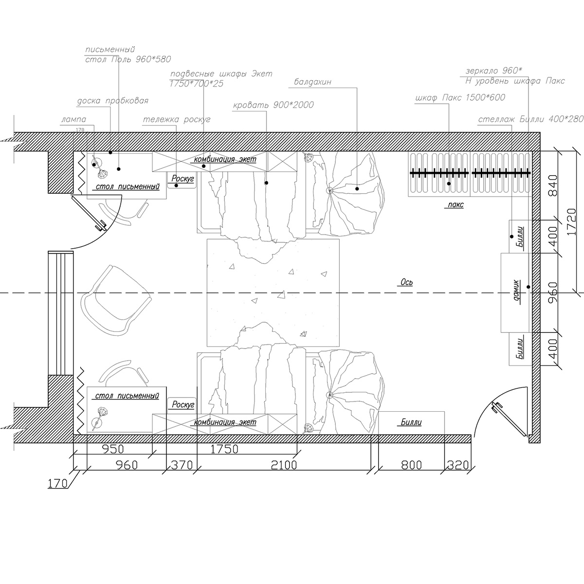
  • 3 вариант. При входе в комнату размещаем шкафы и зоны хранения, кровати с рабочими столами за реечной перегородкой, ближе к окну.
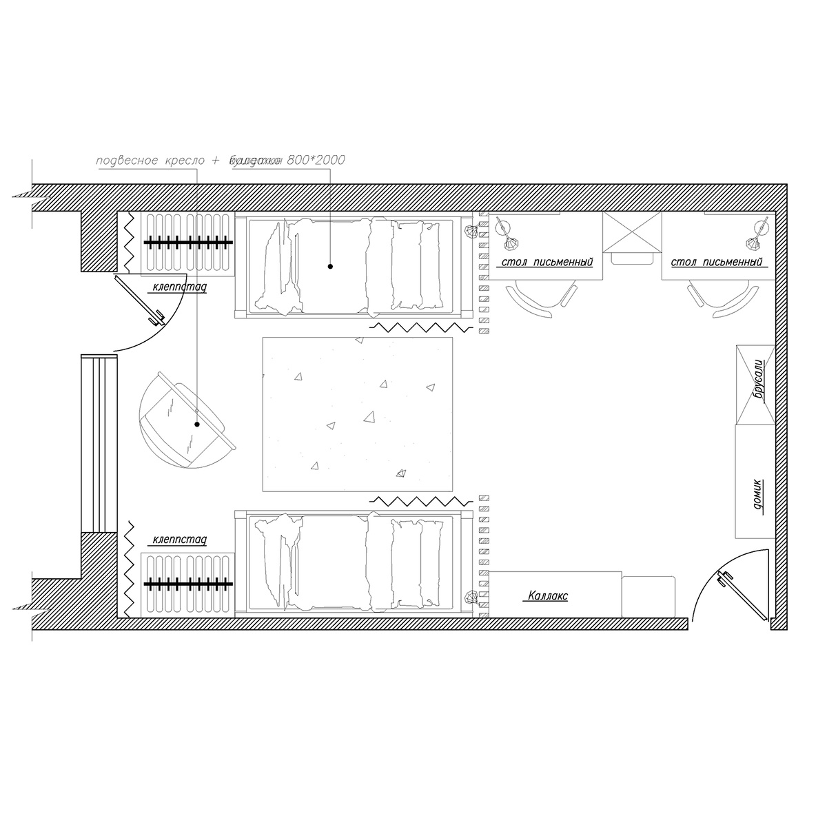
  • 4 вариант. Здесь кровати и рабочие столы на противоположных стенах, зона шкафов и хранения при входе в комнату.
И согласованный вариант - это третий, чуть скорректированный) убрали реечные перегородки, но на кровати добавили легкие балдахины, чтобы создать ощущение уединённости.

Коллаж.

А для того, чтобы было понятно что покупать, я сделала коллаж с конкретными предметами интерьера и чек-листом где, что, почём) очень удобная история.

Коллаж для детской с рекомендуемыми материалами и предметами обстановки.
Коллаж для детской с рекомендуемыми материалами и предметами обстановки.

В итоге, у мамы готовый план действий для преображения комнаты своим любимым дочкам) без заморочек, без поисков, готовое решение.

Вуаля!

А от меня благодарность за приятное сотрудничество)

Для тех, кто хочет улучшить качество своей жизни - пишите мне, разберемся!

Присоединяйтесь ко мне здесь и в Телеграм!