Добавить в корзинуПозвонить
Найти в Дзене
Мøнøмир 🌒

✍️ Затянувшийся вопрос с квартирой

Думал что к теме ремонта возвращаться не буду, так как при воспоминании об этом периоде, меня начинает мелко трясти, появляется непроизвольный смех, как у гиены, а рука тянется в поисках фантомной бутылки. Частично вся история описана в этой подборке. Супруга хотела просторную кухню гостинную, которую мы и реализовали, но не закончили с одним вопросом, а именно, с согласованием перепланировки. Устроив мозговой штурм и перебрав огромное количество вариантов, остановились на этом. Потыркавшись с согласованием, понял что там столько подводных камней, что сам не вывезу, я обратился к профессионалу, который занимается этими вопросами. Подписал договор с 2019, заплатил деньги. Мне отрисовали планы, всё сделали документально, получили решение, я подписал акты и пора было приступать к ремонту. Но вот случился ковид, глобальный локдаун, что освободило мне время для маневра, но все получили по шапке от губернатора с распоряжением прекращения шумных работ. Я же, тогда их даже не начал, ну а мне

Думал что к теме ремонта возвращаться не буду, так как при воспоминании об этом периоде, меня начинает мелко трясти, появляется непроизвольный смех, как у гиены, а рука тянется в поисках фантомной бутылки.

Частично вся история описана в этой подборке.

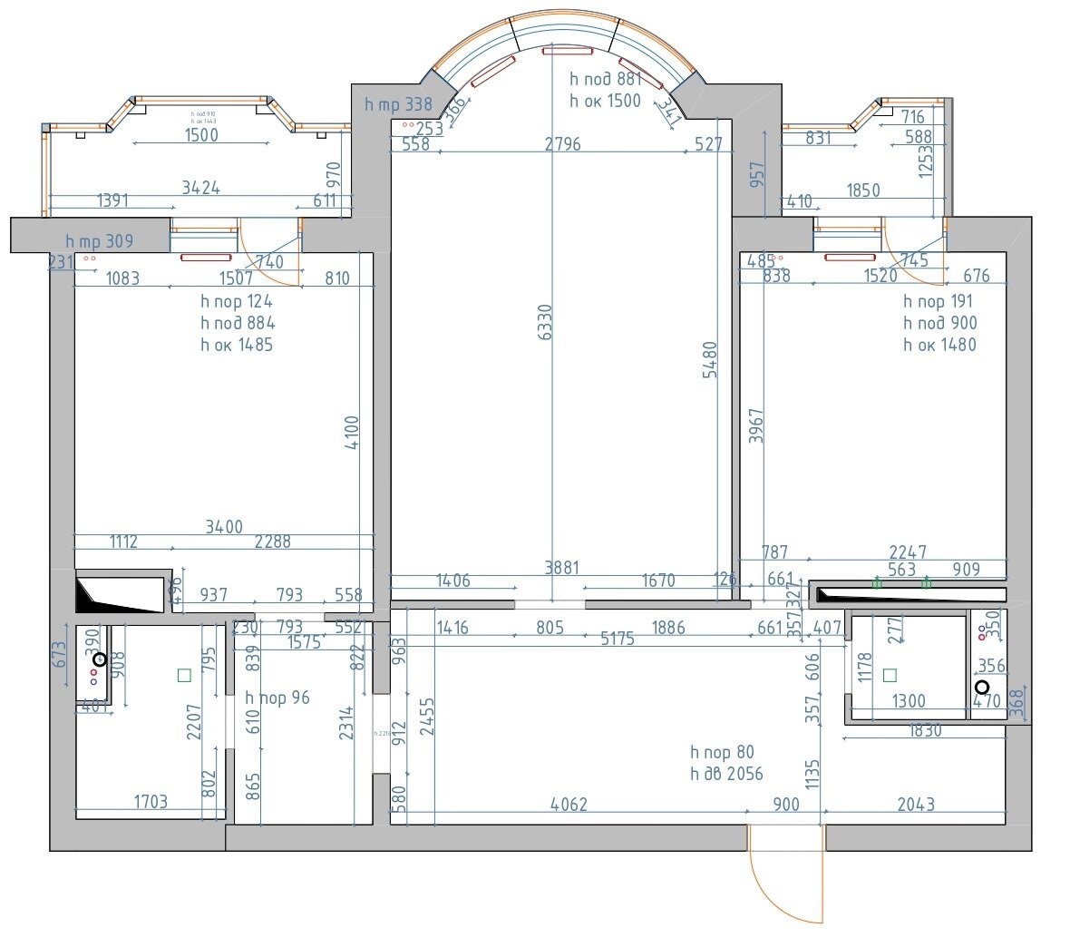
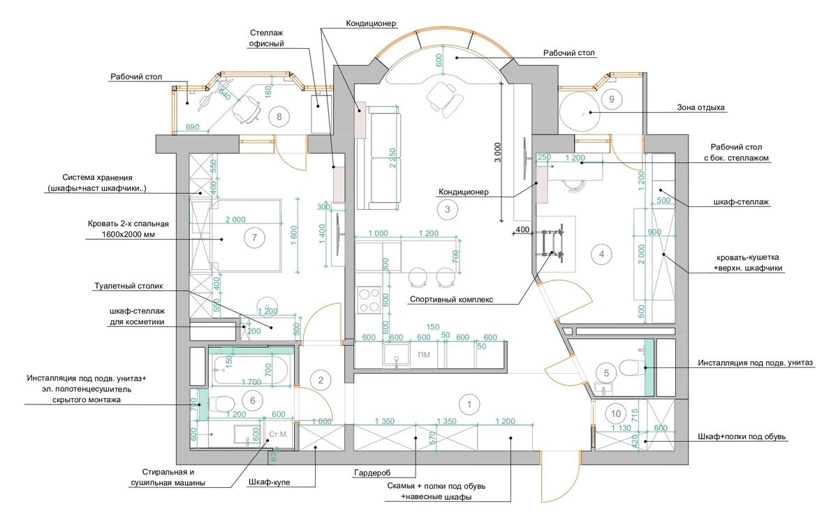
Супруга хотела просторную кухню гостинную, которую мы и реализовали, но не закончили с одним вопросом, а именно, с согласованием перепланировки. Устроив мозговой штурм и перебрав огромное количество вариантов, остановились на этом.

Потыркавшись с согласованием, понял что там столько подводных камней, что сам не вывезу, я обратился к профессионалу, который занимается этими вопросами. Подписал договор с 2019, заплатил деньги. Мне отрисовали планы, всё сделали документально, получили решение, я подписал акты и пора было приступать к ремонту. Но вот случился ковид, глобальный локдаун, что освободило мне время для маневра, но все получили по шапке от губернатора с распоряжением прекращения шумных работ. Я же, тогда их даже не начал, ну а мне предстоял снос стен... В общем пока пришло в относительную норму, пока я нанял ребят на снос стен и когда их демонтировали, я уехал, доверив жил площадь им. Сразу после сноса должен был зайти каменщик, но он слился и пришлось искать нового. Времени было потрачено уйма.

-3

О том, что я не закончил согласование, я вспомнил в конце 2023 года. Созвонился с человечком, который занимался моим вопросом, он удивился, что мы так и не закончили. Но так как решение выдаётся на год, а сроки мы все пропустили, нужно начинать почти с начала. Так как все работы уже выполнены, нужно как то извернуться, что бы согласовать. По деньгам это встанет тысяч в 100. Винтец... ну а куда деваться. Приступаем... сказал я, а спустя 20 минут перезвонил и сказал что пока по финансам не тяну. Супруга беременна, долги не погашенные и новый долг не хотел брать.

-4

Ну а в конце прошлого года, когда в очередной раз встал вопрос о смене управляющей компании, я был в числе активистов, которые отправились в новую ук, на встречу с генеральным директором. Пообщались, приятные ребята и самая старая ук на районе. Много плюсов, следят за коммуникациями, делают обходы, в том числе могут заглянуть в гости если вдруг кто-то им маякнёт о незаконной перепланировке... кольцо сжалось. Опять, у меня вылетело из головы довести до финального завершения этот вопрос.

После новогодних праздников, в очередной раз позвонил бтишнику. Напомнил о себе, спросил как бы более безболезненно завершить процесс. Ответ не утешительный. Сроки мы пропустили, человек дающий решение поменялся и он люто ненавидит панельки, заворачивает за малейшие отклонения. Ну а цена вопроса 150-200.

Здравству зверь пушной
Здравству зверь пушной

Мдэ... всему своё время, нужно было завершать раньше. Ну куда деваться, это менее печально, нежели полный снос и возвращение к изначальному состоянию + штраф.

Отправил свежую выписку из егрн, а он в свою очередь поднял документы из архива. Спустя пару дней перезвонил, сказал что видимо мы не правильно друг друга поняли, да и с 19го года времени утекло... мы же получали решение и акты подписывали, так что точно всё будет безболезненно, займёт пару недель, а не месяцев, ну и по цене встанет в 30к. Я прям выдохнул. Доки все передал прямо перед отпуском. Так что оставалось только ждать и надеяться, что документы примут. Если бы не приняли, пришлось бы их переделывать и снова подавать, но повезло. Документы приняли, выписка новая пришла, все хорошо, данный вопрос закрыт.

Хотелось бы закончить с моралью и посылом, что не нужно откладывать на завтра, то что можно отложить на послезавтра, то что можно сделать сегодня. Но не хочу лицемерить.