Добавить в корзинуПозвонить
Найти в Дзене
Берег Песочной

Это индивидуальный дом площадью 206,7 м², идеально подходящий для комфортного проживания 5-6 человек

🏡 Представляем наш проект — ПБ-217/1! 🎉 Это индивидуальный дом площадью 206,7 м², идеально подходящий для комфортного проживания 5-6 человек. Дом выполнен из панелей БЭНПАН премиум и БЭНПАН+, что обеспечивает отличную теплоизоляцию и долговечность. Для наружной отделки мы использовали штукатурку в сочетании с вертикальным планкеном и искусственным камнем — стильное и современное решение! ✨ Вход в дом осуществляется через небольшой тамбур, из которого есть доступ в техническую комнату и холл. Из холла с лестницей можно попасть в общий санузел, две спальни (одна из них с отдельным санузлом) и просторную гостиную, совмещенную с кухней. Из гостиной — выход на уютную террасу, где можно наслаждаться свежим воздухом. 🌳☀️ На втором этаже находится небольшой холл, ведущий к большой спальне с гардеробной и собственным санузлом. Также здесь есть выход на эксплуатируемую кровлю — отличное место для отдыха и летних вечеров! 🌅 Подробнее о проекте — по ссылке: https://beregpesochnoy.ru/construct

🏡 Представляем наш проект — ПБ-217/1! 🎉

Это индивидуальный дом площадью 206,7 м², идеально подходящий для комфортного проживания 5-6 человек. Дом выполнен из панелей БЭНПАН премиум и БЭНПАН+, что обеспечивает отличную теплоизоляцию и долговечность. Для наружной отделки мы использовали штукатурку в сочетании с вертикальным планкеном и искусственным камнем — стильное и современное решение! ✨

-2
-3
-4
-5

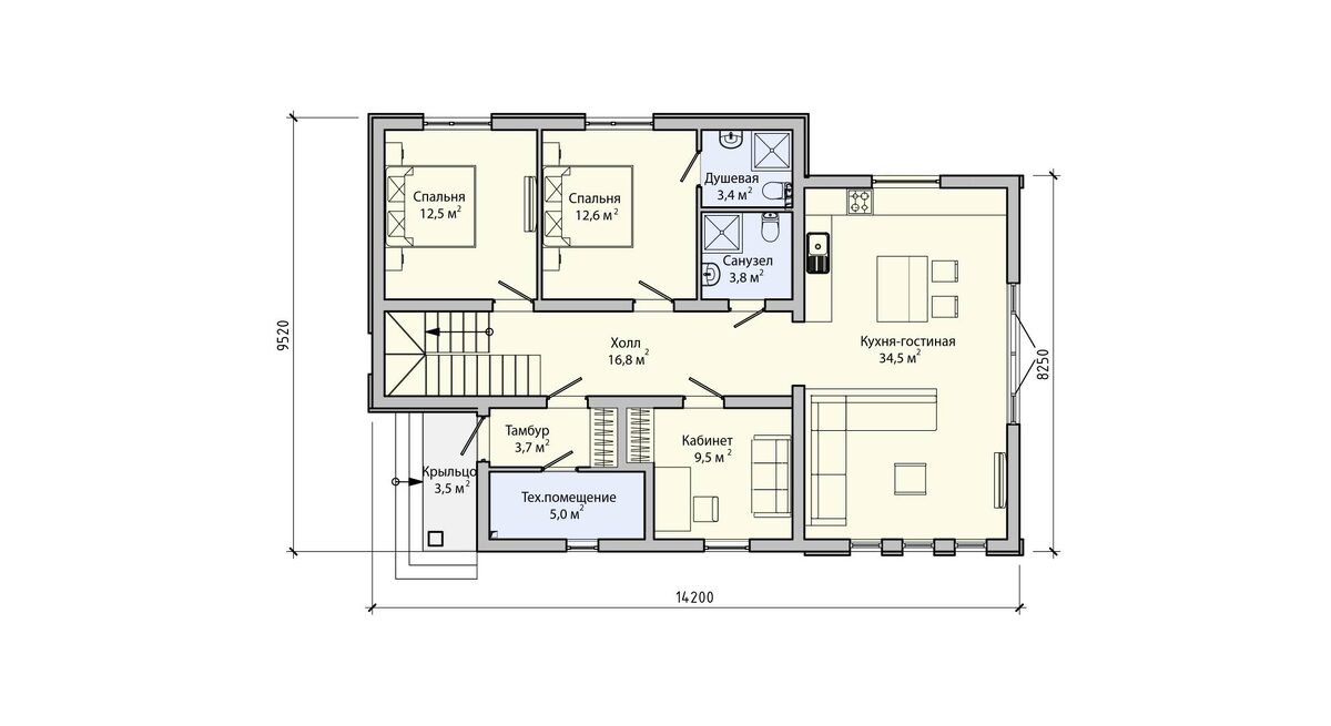
Вход в дом осуществляется через небольшой тамбур, из которого есть доступ в техническую комнату и холл. Из холла с лестницей можно попасть в общий санузел, две спальни (одна из них с отдельным санузлом) и просторную гостиную, совмещенную с кухней. Из гостиной — выход на уютную террасу, где можно наслаждаться свежим воздухом. 🌳☀️

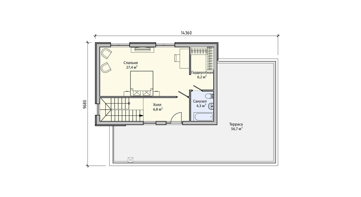
На втором этаже находится небольшой холл, ведущий к большой спальне с гардеробной и собственным санузлом. Также здесь есть выход на эксплуатируемую кровлю — отличное место для отдыха и летних вечеров! 🌅

Подробнее о проекте — по ссылке: https://beregpesochnoy.ru/construction/lot-no131/?utm_source=dzen

А вы мечтаете о доме с просторной террасой или эксплуатируемой кровлей? Делитесь в комментариях! 💬🏠

#ИндивидуальныйДом #ПроектПБ217/1 #ДомМечты #СтроительствоПодмосковье #СовременныйДом #ПанельноеСтроительство #КомфортныйДом #ПроектыНедвижимости